

























Built upon a rich heritage spanning three generations, Southeastern Building Corporation has been a driving force in the Middle Tennessee housing market since 1987. Under the guidance of President David Luckey, the company operates with a mission to create end...uring spaces where families can flourish, prioritizing both superior structural integrity and timeless design. Their portfolio encompasses a wide variety of architectural styles, ranging from low-maintenance villas to spacious custom estates, each featuring thoughtful layouts and artisanal finishes. By utilizing high-performance materials and modern construction techniques, the team ensures that every residence meets rigorous standards for quality and comfort. Known for a transparent, customer-focused approach, the builder has earned a reputation for reliability and excellence. Today, those searching for premium new construction homes can trust this experienced firm to deliver distinct value across their vibrant residential communities.

Need guidance?
Get expert help finding your perfect home
Select a location to see homes & communities by Southeastern Building Corporation
Communities
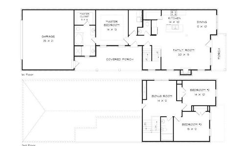
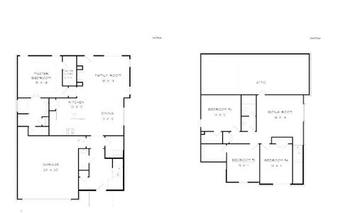
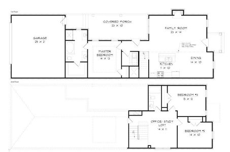
Plans
*Pricing and availability are subject to change.





























































































