



Book your tour. Save an average of $18,473. We'll handle the rest.
We collect exclusive builder offers, book your tours, and support you from start to housewarming.
- Confirmed tours
- Get matched & compare top deals
- Expert help, no pressure
- No added fees
Estimated value based on Jome data, T&C apply
- 3 bd
- 2.5 ba
- 2,178 sqft
Cumberland plan in Saundersville Station by Southeastern Building Corporation
Visit the community to experience this floor plan
Why tour with Jome?
- No pressure toursTour at your own pace with no sales pressure
- Expert guidanceGet insights from our home buying experts
- Exclusive accessSee homes and deals not available elsewhere
Jome is featured in
Plan description
May also be listed on the Southeastern Building Corporation website
Information last verified by Jome: Yesterday at 2:48 AM (April 17, 2026)
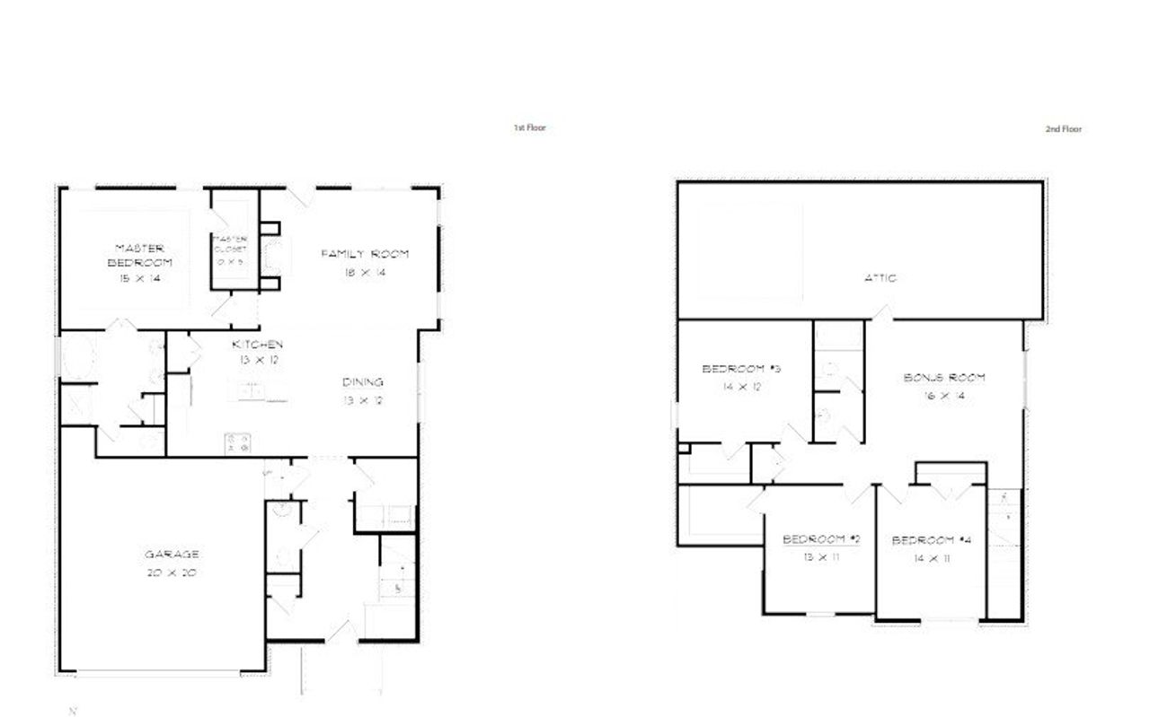
Plan details
- Name:
- Cumberland
- Property type:
- Floor plan
- Community:
- Saundersville Station
- Size:
- 2,178 sqft
- Stories:
- 2
- Beds:
- 3
- Baths:
- 2
- Half baths:
- 1
- Garage spaces:
- 2
Plan features & finishes
- Garage/Parking:
- GarageAttached Garage
- Interior Features:
- Walk-In Closet
- Laundry facilities:
- Utility/Laundry Room
- Rooms:
- AtticBonus RoomKitchenDining RoomFamily RoomPrimary Bedroom Downstairs

Get a consultation with our New Homes Expert
- See how your home builds wealth
- Plan your home-buying roadmap
- Discover hidden gems
See the full plan layout
Download the floor plan PDF with room dimensions and home design details.

Instant download, no cost

Community details
Saundersville Station
by Southeastern Building Corporation, Hendersonville, TN
- 8 plans
- 2,052 - 2,645 sqft
View Saundersville Station details
Want to know more about what's around here?
The Cumberland floor plan is part of Saundersville Station, a new home community by Southeastern Building Corporation, located in Hendersonville, TN. Visit the Saundersville Station community page for full neighborhood insights, including nearby schools, shopping, walk & bike-scores, commuting, air quality & natural hazards.

More floor plans in Saundersville Station

Considering this plan?
Our expert will guide your tour, in-person or virtual
Need more information?
Text or call (888) 545-5198
Financials
Estimated monthly payment
Let us help you find your dream home
How many bedrooms are you looking for?
Similar homes nearby
Recently added communities in this area
Nearby communities in Hendersonville
New homes in nearby cities
More New Homes in Hendersonville, TN
- Jome
- New homes search
- Tennessee
- Nashville-Memphis Area
- Sumner County
- Hendersonville
- Saundersville Station
- 1760 Saundersville Rd, Hendersonville, TN 37075































