

Book your tour. Save an average of $18,473. We'll handle the rest.
- Confirmed tours
- Get matched & compare top deals
- Expert help, no pressure
- No added fees
Estimated value based on Jome data, T&C apply
- 4 bd
- 3 ba
- 3,082 sqft
Bennett A plan in Watermill by Southeastern Building Corporation
Visit the community to experience this floor plan
Why tour with Jome?
- No pressure toursTour at your own pace with no sales pressure
- Expert guidanceGet insights from our home buying experts
- Exclusive accessSee homes and deals not available elsewhere
Jome is featured in
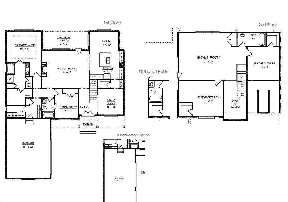
Plan description
May also be listed on the Southeastern Building Corporation website
Information last verified by Jome: Monday at 12:21 PM (January 5, 2026)
Plan details
- Name:
- Bennett A
- Property status:
- Floor plan
- Size:
- 3,082 sqft
- Stories:
- 2
- Beds:
- 4
- Baths:
- 3
- Garage spaces:
- 2
Plan features & finishes
- Garage/Parking:
- GarageAttached Garage
- Interior Features:
- Walk-In ClosetFoyer
- Laundry facilities:
- Utility/Laundry Room
- Property amenities:
- Porch
- Rooms:
- Bonus RoomKitchenNookDining RoomFamily RoomPrimary Bedroom Downstairs
- Upgrade Options:
- Extra Car Garage

Get a consultation with our New Homes Expert
- See how your home builds wealth
- Plan your home-buying roadmap
- Discover hidden gems
See the full plan layout
Download the floor plan PDF with room dimensions and home design details.

Instant download, no cost

Community details
Watermill
by Southeastern Building Corporation, Lebanon, TN
- 4 plans
- 2,511 - 3,082 sqft
View Watermill details
Want to know more about what's around here?
The Bennett A floor plan is part of Watermill, a new home community by Southeastern Building Corporation, located in Lebanon, TN. Visit the Watermill community page for full neighborhood insights, including nearby schools, shopping, walk & bike-scores, commuting, air quality & natural hazards.

More floor plans in Watermill

Considering this plan?
Our expert will guide your tour, in-person or virtual
Need more information?
Text or call (888) 486-2818
Financials
Estimated monthly payment
Let us help you find your dream home
How many bedrooms are you looking for?
Similar homes nearby
Recently added communities in this area
Nearby communities in Lebanon
New homes in nearby cities
More New Homes in Lebanon, TN
- Jome
- New homes search
- Tennessee
- Nashville-Memphis Area
- Wilson County
- Lebanon
- Watermill
- 104 Watermill Ln, Lebanon, TN 37087





















