



Book your tour. Save an average of $18,473. We'll handle the rest.
- Confirmed tours
- Get matched & compare top deals
- Expert help, no pressure
- No added fees
Estimated value based on Jome data, T&C apply
- 4 bd
- 3.5 ba
- 3,397 sqft
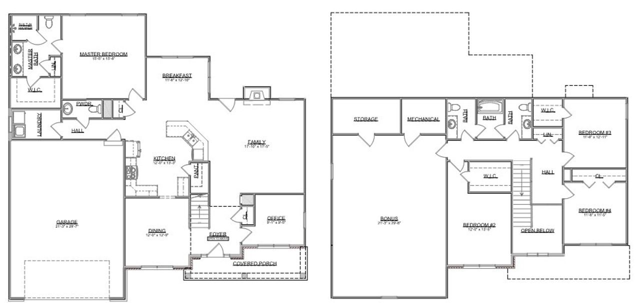
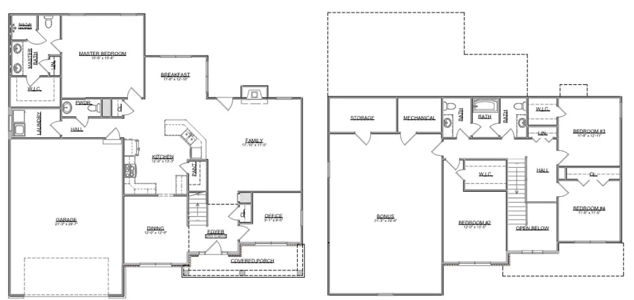
The Heartland plan in Manor in The Foothills by Smithbilt Homes
Visit the community to experience this floor plan
Why tour with Jome?
- No pressure toursTour at your own pace with no sales pressure
- Expert guidanceGet insights from our home buying experts
- Exclusive accessSee homes and deals not available elsewhere
Jome is featured in
Plan description
May also be listed on the Smithbilt Homes website
Information last verified by Jome: Thursday at 7:49 AM (November 27, 2025)
Plan details
- Name:
- The Heartland
- Property status:
- Floor plan
- Size:
- 3,397 sqft
- Stories:
- 2
- Beds:
- 4
- Baths:
- 3.5
- Garage spaces:
- 2
Plan features & finishes
- Garage/Parking:
- GarageAttached Garage
- Interior Features:
- Walk-In ClosetFoyerPantryStorage
- Laundry facilities:
- Utility/Laundry Room
- Property amenities:
- FireplacePorch
- Rooms:
- Bonus RoomPrimary Bedroom On MainKitchenPowder RoomOffice/StudyDining RoomFamily RoomBreakfast AreaOpen Concept FloorplanPrimary Bedroom Downstairs

Get a consultation with our New Homes Expert
- See how your home builds wealth
- Plan your home-buying roadmap
- Discover hidden gems
See the full plan layout
Download the floor plan PDF with room dimensions and home design details.

Instant download, no cost

Community details
Manor in The Foothills
by Smithbilt Homes, Maryville, TN
- 30 plans
- 1,772 - 2,711 sqft
View Manor in The Foothills details
Want to know more about what's around here?
The The Heartland floor plan is part of Manor in The Foothills, a new home community by Smithbilt Homes, located in Maryville, TN. Visit the Manor in The Foothills community page for full neighborhood insights, including nearby schools, shopping, walk & bike-scores, commuting, air quality & natural hazards.

More floor plans in Manor in The Foothills

Considering this plan?
Our expert will guide your tour, in-person or virtual
Need more information?
Text or call (888) 486-2818
Financials
Let us help you find your dream home
How many bedrooms are you looking for?

























