




Book your tour. Save an average of $18,473. We'll handle the rest.
- Confirmed tours
- Get matched & compare top deals
- Expert help, no pressure
- No added fees
Estimated value based on Jome data, T&C apply
- 5 bd
- 4.5 ba
- 4,358 sqft
The Signature Wallace 1A plan in Poplar Farms by Signature Homes
Visit the community to experience this floor plan
Why tour with Jome?
- No pressure toursTour at your own pace with no sales pressure
- Expert guidanceGet insights from our home buying experts
- Exclusive accessSee homes and deals not available elsewhere
Jome is featured in
Plan description
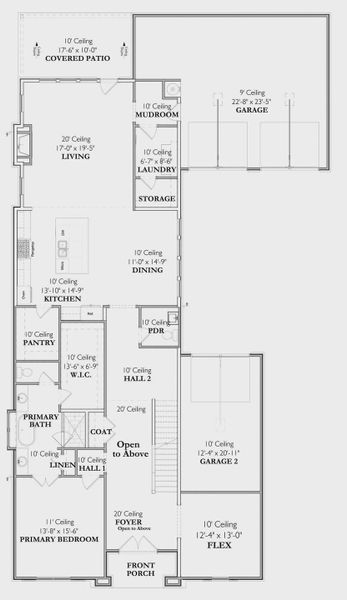
The Signature Wallace 1A (4358 sq. ft.) is a home with 5 bedrooms, 4.5 bathrooms and 2-car garage.
May also be listed on the Signature Homes website
Information last verified by Jome: Today at 11:47 AM (January 13, 2026)
Plan details
- Name:
- The Signature Wallace 1A
- Property status:
- Floor plan
- Neighborhood:
- Seward Hall
- Size:
- 4,358 sqft
- Stories:
- 2
- Beds:
- 5
- Baths:
- 4
- Half baths:
- 1
- Garage spaces:
- 2
Plan features & finishes
- Garage/Parking:
- GarageAttached Garage
- Interior Features:
- Walk-In ClosetFoyerPantry
- Laundry facilities:
- Utility/Laundry Room
- Property amenities:
- Covered PatioPorch
- Rooms:
- Bonus RoomKitchenDen RoomMudroomDining RoomLiving RoomPrimary Bedroom Downstairs

Get a consultation with our New Homes Expert
- See how your home builds wealth
- Plan your home-buying roadmap
- Discover hidden gems
See the full plan layout
Download the floor plan PDF with room dimensions and home design details.

Instant download, no cost

Community details
Poplar Farms
by Signature Homes, Franklin, TN
- 21 plans
- 2,624 - 4,602 sqft
View Poplar Farms details
Want to know more about what's around here?
The The Signature Wallace 1A floor plan is part of Poplar Farms, a new home community by Signature Homes, located in Franklin, TN. Visit the Poplar Farms community page for full neighborhood insights, including nearby schools, shopping, walk & bike-scores, commuting, air quality & natural hazards.

More floor plans in Poplar Farms

The Signature Patterson 1D
- 5 bd
- 4.5 ba
- 4,602 sqft

The Signature Patterson 1F
- 5 bd
- 4.5 ba
- 4,602 sqft

Considering this plan?
Our expert will guide your tour, in-person or virtual
Need more information?
Text or call (888) 486-2818
Financials
Estimated monthly payment
Let us help you find your dream home
How many bedrooms are you looking for?
Similar homes nearby
Recently added communities in this area
Nearby communities in Franklin
New homes in nearby cities
More New Homes in Franklin, TN
- Jome
- New homes search
- Tennessee
- Nashville-Memphis Area
- Williamson County
- Franklin
- Poplar Farms
- 2007 Poplar Farms Dr, Franklin, TN 37067



























