



Book your tour. Save an average of $18,473. We'll handle the rest.
We collect exclusive builder offers, book your tours, and support you from start to housewarming.
- Confirmed tours
- Get matched & compare top deals
- Expert help, no pressure
- No added fees
Estimated value based on Jome data, T&C apply

- 3 bd
- 2.5 ba
- 1,892 sqft
The Bay 1 A plan in June Lake by Signature Homes
Visit the community to experience this floor plan
Why tour with Jome?
- No pressure toursTour at your own pace with no sales pressure
- Expert guidanceGet insights from our home buying experts
- Exclusive accessSee homes and deals not available elsewhere
Jome is featured in
Plan description
May also be listed on the Signature Homes website
Information last verified by Jome: Today at 3:50 AM (March 20, 2026)
Plan details
- Name:
- The Bay 1 A
- Property type:
- Floor plan
- Community:
- June Lake
- Builder:
- Signature Homes
- Size:
- 1,892 sqft
- Stories:
- 2
- Beds:
- 3
- Baths:
- 2
- Half baths:
- 1
- Garage spaces:
- 2
Plan features & finishes
- Garage/Parking:
- GarageAttached Garage
- Interior Features:
- Walk-In Closet
- Laundry facilities:
- Utility/Laundry Room
- Property amenities:
- PatioPorch
- Rooms:
- Flex RoomKitchenDining RoomLiving RoomPrimary Bedroom Downstairs

Get a consultation with our New Homes Expert
- See how your home builds wealth
- Plan your home-buying roadmap
- Discover hidden gems
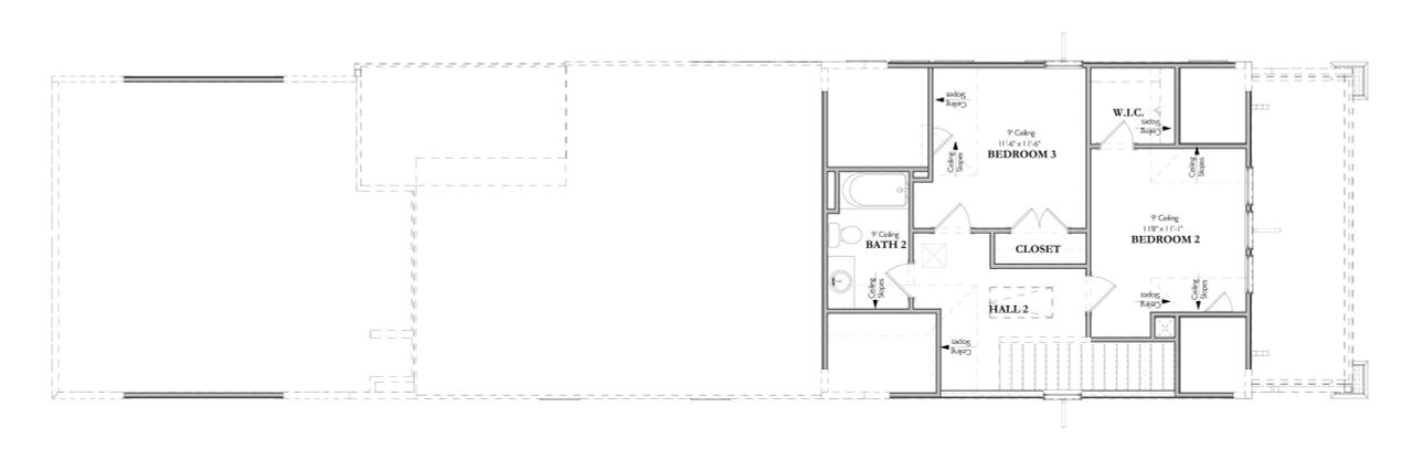
See the full plan layout
Download the floor plan PDF with room dimensions and home design details.

Instant download, no cost

Community details
June Lake
by Signature Homes, Thompson's Station, TN
- 25 plans
- 1,470 - 3,794 sqft
View June Lake details
Want to know more about what's around here?
The The Bay 1 A floor plan is part of June Lake, a new home community by Signature Homes, located in Spring Hill, TN. Visit the June Lake community page for full neighborhood insights, including nearby schools, shopping, walk & bike-scores, commuting, air quality & natural hazards.

More floor plans in June Lake

Considering this plan?
Our expert will guide your tour, in-person or virtual
Need more information?
Text or call (888) 545-5198
Financials
Estimated monthly payment
Let us help you find your dream home
How many bedrooms are you looking for?
Similar homes nearby
Recently added communities in this area
Nearby communities in Spring Hill
New homes in nearby cities
More New Homes in Spring Hill, TN
- Jome
- New homes search
- Tennessee
- Nashville-Memphis Area
- Williamson County
- Spring Hill
- June Lake
- 100 Saddlewalk Dr, Spring Hill, TN 37174




























