













Book your tour. Save an average of $18,473. We'll handle the rest.
- Confirmed tours
- Get matched & compare top deals
- Expert help, no pressure
- No added fees
Estimated value based on Jome data, T&C apply



































- 3 bd
- 2.5 ba
- 2,500 sqft
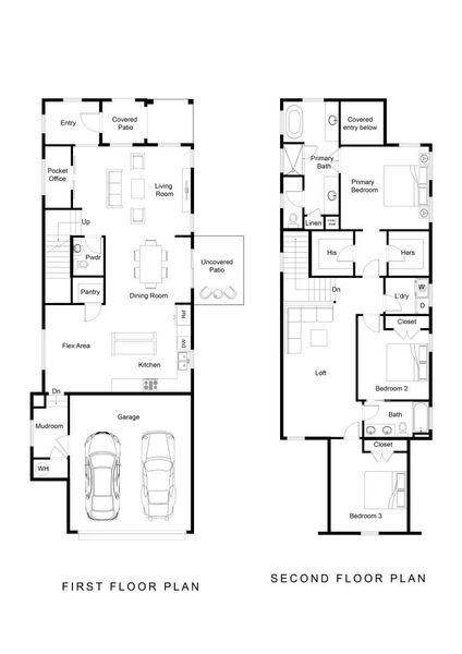
The Delaney plan in Heritage Walk by Greentech Homes LLC
Visit the community to experience this floor plan
Why tour with Jome?
- No pressure toursTour at your own pace with no sales pressure
- Expert guidanceGet insights from our home buying experts
- Exclusive accessSee homes and deals not available elsewhere
Jome is featured in
Plan description
May also be listed on the Greentech Homes LLC website
Information last verified by Jome: Monday at 1:16 AM (December 1, 2025)
Plan details
- Name:
- The Delaney
- Property status:
- Floor plan
- Size:
- 2,500 sqft
- Stories:
- 2
- Beds:
- 3
- Baths:
- 2
- Half baths:
- 1
- Garage spaces:
- 2
Plan features & finishes
- Garage/Parking:
- GarageAttached Garage
- Interior Features:
- Walk-In ClosetFoyerPantryLoft
- Laundry facilities:
- Utility/Laundry Room
- Property amenities:
- Covered PatioPatioFireplacePorch
- Rooms:
- Flex RoomKitchenPowder RoomMudroomDining RoomFamily RoomOpen Concept FloorplanPrimary Bedroom Upstairs

Get a consultation with our New Homes Expert
- See how your home builds wealth
- Plan your home-buying roadmap
- Discover hidden gems
See the full plan layout
Download the floor plan PDF with room dimensions and home design details.

Instant download, no cost

Community details
Heritage Walk
by Greentech Homes LLC, Chattanooga, TN
- 2 homes
- 18 plans
- 1,600 - 3,200 sqft
View Heritage Walk details
Want to know more about what's around here?
The The Delaney floor plan is part of Heritage Walk, a new home community by Greentech Homes LLC, located in Chattanooga, TN. Visit the Heritage Walk community page for full neighborhood insights, including nearby schools, shopping, walk & bike-scores, commuting, air quality & natural hazards.

Available homes in Heritage Walk
- Home at address 7841 Lemonade St, Chattanooga, TN 37421

The Beckham
$549,000
- 3 bd
- 2 ba
- 2,050 sqft
7841 Lemonade St, Chattanooga, TN 37421
- Home at address 7897 Honeycomb Ln, Chattanooga, TN 37421

The Cumberland
$629,900
- 4 bd
- 3 ba
- 2,600 sqft
7897 Honeycomb Ln, Chattanooga, TN 37421
More floor plans in Heritage Walk

Considering this plan?
Our expert will guide your tour, in-person or virtual
Need more information?
Text or call (888) 486-2818
Financials
Let us help you find your dream home
How many bedrooms are you looking for?
Similar homes nearby
Recently added communities in this area
Nearby communities in Chattanooga
New homes in nearby cities
More New Homes in Chattanooga, TN
- Jome
- New homes search
- Tennessee
- Chattanooga-Knoxville Area
- Hamilton County
- Chattanooga
- Heritage Walk
- 1516 Jenkins Rd, Chattanooga, TN 37421

































