








Book your tour. Save an average of $18,473. We'll handle the rest.
We collect exclusive builder offers, book your tours, and support you from start to housewarming.
- Confirmed tours
- Get matched & compare top deals
- Expert help, no pressure
- No added fees
Estimated value based on Jome data, T&C apply

















Why tour with Jome?
- No pressure toursTour at your own pace with no sales pressure
- Expert guidanceGet insights from our home buying experts
- Exclusive accessSee homes and deals not available elsewhere
Jome is featured in
- Single-Family
- Quick move-in
- $197.84/sqft
- 246 days on Jome
Home description
Home is not yet started - Still time to choose your own selections and finishes to make this your dream home. Build time is approximately 5 - 6 months from contract.
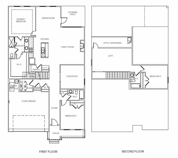
The Gardenia offers main-level living with space to grow. This home features an open kitchen, large island, walk-in pantry, and seamless living and dining areas leading to a covered patio. The private primary suite includes a tiled shower, dual vanities, and walk-in closet. A front bedroom, study (optional third bedroom), and full bath offer flexibility. Upstairs includes a loft, third bedroom, and full bath—ideal for guests or teens.
Life at Social Circle: Located in the heart of East Brainerd, and just minutes from downtown Chattanooga, Social Circle is more than a neighborhood—it’s a lifestyle. Designed to promote genuine connection and slower living, this community invites front porch conversations, spontaneous gatherings, and more unplugged moments that matter.
**DISCLAIMER: Kindly note, the provided photos are for representation purposes only to offer a glimpse into the forthcoming home to be built. Photos are for representational purposes only; fit and finish to be determined based on selections made at contract and design.
May also be listed on the Empire Homes website
Information last verified by Jome: Yesterday at 10:17 AM (April 20, 2026)
Book your tour. Save an average of $18,473. We'll handle the rest.
We collect exclusive builder offers, book your tours, and support you from start to housewarming.
- Confirmed tours
- Get matched & compare top deals
- Expert help, no pressure
- No added fees
Estimated value based on Jome data, T&C apply
Home details
- Property status:
- Move-in ready
- Size:
- 2,454 sqft
- Beds:
- 3
- Baths:
- 3
- Garage spaces:
- 2
Construction details
- Builder Name:
- Empire Homes
Home features & finishes
- Garage/Parking:
- Garage

Get a consultation with our New Homes Expert
- See how your home builds wealth
- Plan your home-buying roadmap
- Discover hidden gems

Community details
Social Circle
by Empire Homes, Chattanooga, TN
- 5 homes
- 5 plans
- 1,460 - 2,454 sqft
View Social Circle details
More homes in Social Circle
- Home at address 2592 Butlers Green Cir, Chattanooga, TN 37421

Magnolia K
$433,500
- 3 bd
- 2 ba
- 1,780 sqft
2592 Butlers Green Cir, Chattanooga, TN 37421
- Home at address 2576 Butlers Green Cir, Chattanooga, TN 37421

Aster K
$495,500
- 3 bd
- 3 ba
- 2,406 sqft
2576 Butlers Green Cir, Chattanooga, TN 37421
Floor plans in Social Circle
About the builder - Empire Homes
Neighborhood
Home address
- City:
- Chattanooga
- County:
- Hamilton
- Zip Code:
- 37421
Schools in Hamilton County School District
- Grades 01-12Privateparkridge valley academy1.5 mi2200 morris hill rdna
GreatSchools’ Summary Rating calculation is based on 4 of the school’s themed ratings, including test scores, student/academic progress, college readiness, and equity. This information should only be used as a reference. Jome is not affiliated with GreatSchools and does not endorse or guarantee this information. Please reach out to schools directly to verify all information and enrollment eligibility. Data provided by GreatSchools.org © 2025
Places of interest
Getting around
Air quality
Noise level
A Soundscore™ rating is a number between 50 (very loud) and 100 (very quiet) that tells you how loud a location is due to environmental noise.

Considering this home?
Our expert will guide your tour, in-person or virtual
Need more information?
Text or call (888) 545-5198
Financials
Estimated monthly payment
Let us help you find your dream home
How many bedrooms are you looking for?
Similar homes nearby
Recently added communities in this area
Nearby communities in Chattanooga
New homes in nearby cities
More New Homes in Chattanooga, TN
- Jome
- New homes search
- Tennessee
- Chattanooga-Knoxville Area
- Hamilton County
- Chattanooga
- Social Circle
- 2552 Butlers Green Cir, Chattanooga, TN 37421





























