





Book your tour. Save an average of $18,473. We'll handle the rest.
- Confirmed tours
- Get matched & compare top deals
- Expert help, no pressure
- No added fees
Estimated value based on Jome data, T&C apply
- 3 bd
- 2 ba
- 2,382 sqft
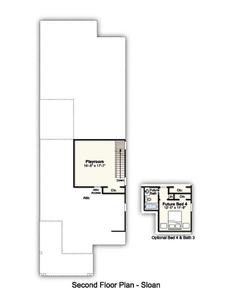
Sloan plan in Lockwood by Grant & Co
Visit the community to experience this floor plan
Why tour with Jome?
- No pressure toursTour at your own pace with no sales pressure
- Expert guidanceGet insights from our home buying experts
- Exclusive accessSee homes and deals not available elsewhere
Jome is featured in
Plan description
May also be listed on the Grant & Co website
Information last verified by Jome: Yesterday at 12:25 PM (January 12, 2026)
Book your tour. Save an average of $18,473. We'll handle the rest.
We collect exclusive builder offers, book your tours, and support you from start to housewarming.
- Confirmed tours
- Get matched & compare top deals
- Expert help, no pressure
- No added fees
Estimated value based on Jome data, T&C apply
Plan details
- Name:
- Sloan
- Property status:
- Floor plan
- Size:
- 2,382 sqft
- Stories:
- 2
- Beds:
- 3
- Baths:
- 2
- Garage spaces:
- 2
Plan features & finishes
- Garage/Parking:
- GarageAttached Garage
- Interior Features:
- Walk-In ClosetFoyerPantry
- Laundry facilities:
- Utility/Laundry Room
- Property amenities:
- FireplacePorch
- Rooms:
- AtticGreat RoomKitchenGame RoomPrimary Bedroom Downstairs

Get a consultation with our New Homes Expert
- See how your home builds wealth
- Plan your home-buying roadmap
- Discover hidden gems

Community details
Lockwood
by Grant & Co, Collierville, TN
- 5 homes
- 20 plans
- 2,000 - 3,278 sqft
View Lockwood details
Want to know more about what's around here?
The Sloan floor plan is part of Lockwood, a new home community by Grant & Co, located in Collierville, TN. Visit the Lockwood community page for full neighborhood insights, including nearby schools, shopping, walk & bike-scores, commuting, air quality & natural hazards.

Available homes in Lockwood
- Home at address 4849 Zander, Collierville, TN 38017

Manning
$499,035
- 4 bd
- 3 ba
4849 Zander, Collierville, TN 38017
- Home at address 10224 Louanne, Collierville, TN 38017

Asher
$508,080
- 4 bd
- 3 ba
10224 Louanne, Collierville, TN 38017
- Home at address 4844 Lyla Ln, Collierville, TN 38017

Asher
$509,950
- 4 bd
- 3 ba
- 2,400 sqft
4844 Lyla Ln, Collierville, TN 38017
- Home at address 4830 Annabell, Collierville, TN 38017

Webster
$528,795
- 4 bd
- 3 ba
4830 Annabell, Collierville, TN 38017
- Home at address 10217 Louanne Dr, Collierville, TN 38017

Hudson
$559,950
- 4 bd
- 3.5 ba
- 2,400 sqft
10217 Louanne Dr, Collierville, TN 38017
More floor plans in Lockwood

Considering this plan?
Our expert will guide your tour, in-person or virtual
Need more information?
Text or call (888) 486-2818
Financials
Estimated monthly payment
Let us help you find your dream home
How many bedrooms are you looking for?
Similar homes nearby
Recently added communities in this area
Nearby communities in Collierville
New homes in nearby cities
More New Homes in Collierville, TN
- Jome
- New homes search
- Tennessee
- Nashville-Memphis Area
- Shelby County
- Collierville
- Lockwood
- 4800 Annabell Cir N, Collierville, TN 38017























