

Book your tour. Save an average of $18,473. We'll handle the rest.
- Confirmed tours
- Get matched & compare top deals
- Expert help, no pressure
- No added fees
Estimated value based on Jome data, T&C apply
- 3 bd
- 3.5 ba
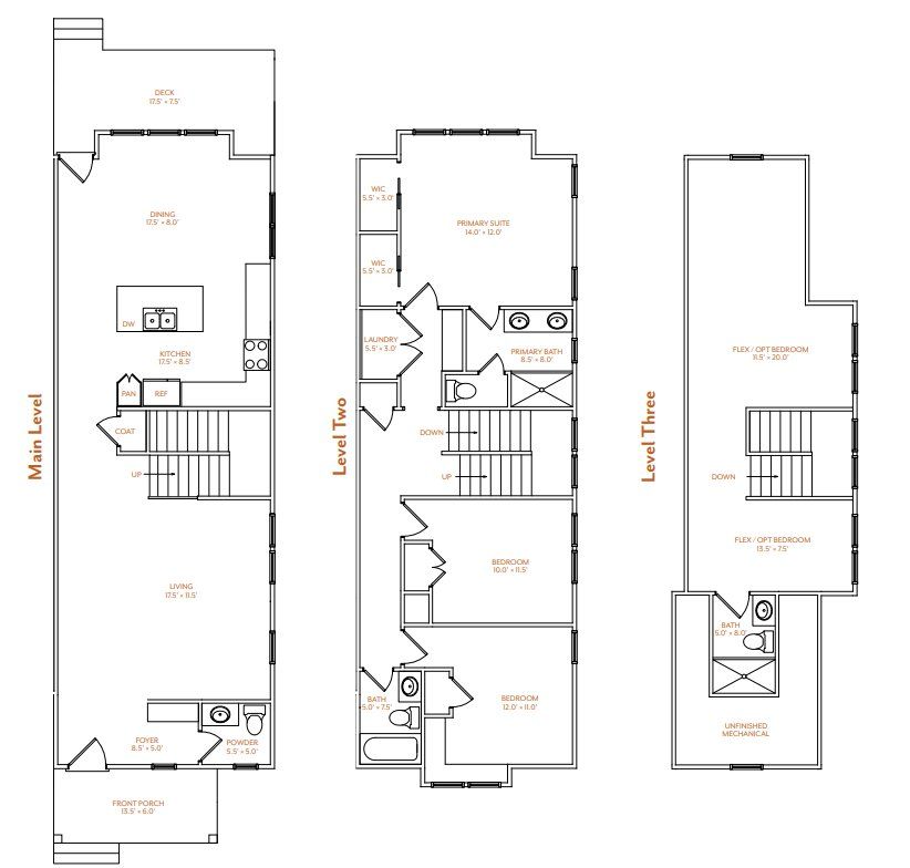
A2 plan plan in Wrenwood by Concept 8
Visit the community to experience this floor plan
Why tour with Jome?
- No pressure toursTour at your own pace with no sales pressure
- Expert guidanceGet insights from our home buying experts
- Exclusive accessSee homes and deals not available elsewhere
Jome is featured in
Plan description
May also be listed on the Concept 8 website
Information last verified by Jome: Thursday at 9:08 PM (November 20, 2025)
Plan details
- Name:
- A2 plan
- Property status:
- Floor plan
- Stories:
- 3+
- Beds from:
- 3
- Beds to:
- 5
- Baths:
- 3.5
Plan features & finishes
- Interior Features:
- Walk-In ClosetFoyerPantry
- Laundry facilities:
- Utility/Laundry Room
- Property amenities:
- DeckPorch
- Rooms:
- Flex RoomKitchenPowder RoomDining RoomLiving RoomOpen Concept FloorplanPrimary Bedroom Upstairs
- Upgrade Options:
- Extra Bedroom

Get a consultation with our New Homes Expert
- See how your home builds wealth
- Plan your home-buying roadmap
- Discover hidden gems
See the full plan layout
Download the floor plan PDF with room dimensions and home design details.

Instant download, no cost

Community details
Wrenwood
by Concept 8, Raleigh, NC
- 2 homes
- 3 plans
- 2,375 - 2,375 sqft
View Wrenwood details
Want to know more about what's around here?
The A2 plan floor plan is part of Wrenwood, a new home community by Concept 8, located in Raleigh, NC. Visit the Wrenwood community page for full neighborhood insights, including nearby schools, shopping, walk & bike-scores, commuting, air quality & natural hazards.

Available homes in Wrenwood
- Home at address 5061 Lundy Dr, Unit 101, Raleigh, NC 27606

Home
$519,000
- 3 bd
- 3.5 ba
- 2,375 sqft
5061 Lundy Dr, Unit 101, Raleigh, NC 27606
- Home at address 5049 Lundy Dr, Unit 102, Raleigh, NC 27606

Home
$529,000
- 3 bd
- 3.5 ba
- 2,375 sqft
5049 Lundy Dr, Unit 102, Raleigh, NC 27606
More floor plans in Wrenwood

Considering this plan?
Our expert will guide your tour, in-person or virtual
Need more information?
Text or call (888) 486-2818
Financials
Let us help you find your dream home
How many bedrooms are you looking for?
Similar homes nearby
Recently added communities in this area
Nearby communities in Raleigh
New homes in nearby cities
More New Homes in Raleigh, NC
- Jome
- New homes search
- North Carolina
- Raleigh-Durham Area
- Wake County
- Raleigh
- Wrenwood
- 841 Athens Dr, Raleigh, NC 27606



























