









Book your tour. Save an average of $18,473. We'll handle the rest.
We collect exclusive builder offers, book your tours, and support you from start to housewarming.
- Confirmed tours
- Get matched & compare top deals
- Expert help, no pressure
- No added fees
Estimated value based on Jome data, T&C apply













































- 3 bd
- 3 ba
- 1,792 sqft
724 Powell Dr, Raleigh, NC 27606
Why tour with Jome?
- No pressure toursTour at your own pace with no sales pressure
- Expert guidanceGet insights from our home buying experts
- Exclusive accessSee homes and deals not available elsewhere
Jome is featured in
- Single-Family
- Quick move-in
- $354.3/sqft
- $350/quarterly HOA
Home description
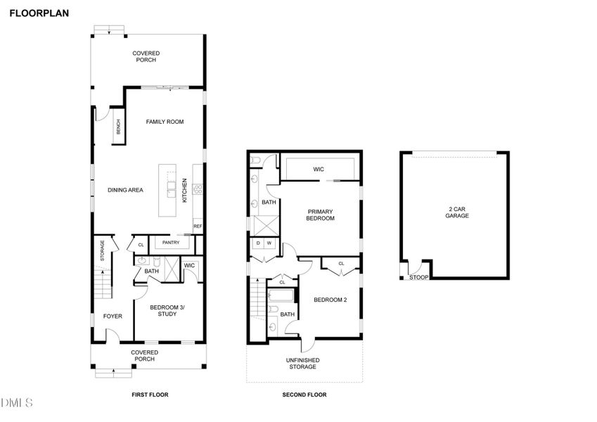
Ideally located in West Raleigh, this brand-new single-family home at Cottages at Powell Park blends modern design with effortless everyday living. The home offers three bedrooms, three full baths, and a detached two-car garage, thoughtfully designed to provide both style and functionality.
Inside, the open-concept floor plan creates a bright and welcoming living environment with generous room sizes and seamless flow between spaces. A main-level guest suite offers flexibility for visitors, a private home office, or comfortable multigenerational living.
At the center of the home, the chef's kitchen features a large island, stone countertops, and stainless steel appliances, creating a natural gathering place for both everyday living and entertaining.
Upstairs, the spacious primary suite serves as a peaceful retreat, complemented by an additional generously sized bedroom and full bath.
Outdoor living is just as inviting with a covered porch overlooking a private homesite, while the detached two-car garage adds convenience and classic neighborhood charm.
Located minutes from Downtown Raleigh with quick access to I-440, I-40, RTP, and RDU Airport, residents enjoy close proximity to some of the Triangle's most popular destinations including Fenton, North Hills, Umstead Park, and Lenovo Center.
An exceptional opportunity to enjoy brand-new construction in one of Raleigh's most convenient and desirable locations.
Corcoran DeRonja Real Estate, MLS 10151839
Information last verified by Jome: Today at 4:10 PM (March 30, 2026)
Book your tour. Save an average of $18,473. We'll handle the rest.
We collect exclusive builder offers, book your tours, and support you from start to housewarming.
- Confirmed tours
- Get matched & compare top deals
- Expert help, no pressure
- No added fees
Estimated value based on Jome data, T&C apply
Home details
- Property status:
- Move-in ready
- Neighborhood:
- West Raleigh
- Lot size (acres):
- 0.10
- Size:
- 1,792 sqft
- Stories:
- 2
- Beds:
- 3
- Baths:
- 3
- Garage spaces:
- 2
- Facing direction:
- East
Construction details
- Year Built:
- 2026
- Roof:
- Roof Gutter, Shingle Roofing
Home features & finishes
- Construction Materials:
- CementBrick
- Cooling:
- Ceiling Fan(s)Central Air
- Flooring:
- Wood FlooringCarpet FlooringTile Flooring
- Foundation Details:
- Raised
- Garage/Parking:
- Garage
- Kitchen:
- Gas CooktopGas OvenKitchen Range
- Laundry facilities:
- Laundry Facilities On Upper LevelLaundry Facilities In Closet
- Property amenities:
- BasementWalk-in ShowerPorch
- Rooms:
- Kitchen
Room details
Master Bedroom
Kitchen
Dining Room

Get a consultation with our New Homes Expert
- See how your home builds wealth
- Plan your home-buying roadmap
- Discover hidden gems
Utility information
- Heating:
- Gas Heating, Forced Air Heating
Neighborhood
Home address
- Neighborhood:
- West Raleigh
- City:
- Raleigh
Schools in Wake County Schools
GreatSchools’ Summary Rating calculation is based on 4 of the school’s themed ratings, including test scores, student/academic progress, college readiness, and equity. This information should only be used as a reference. Jome is not affiliated with GreatSchools and does not endorse or guarantee this information. Please reach out to schools directly to verify all information and enrollment eligibility. Data provided by GreatSchools.org © 2025
Places of interest
Getting around
6 nearby routes: 6 bus, 0 rail, 0 otherAir quality
Noise level
A Soundscore™ rating is a number between 50 (very loud) and 100 (very quiet) that tells you how loud a location is due to environmental noise.
Natural hazards risk
Provided by FEMA

Considering this home?
Our expert will guide your tour, in-person or virtual
Need more information?
Text or call (888) 545-5198
Financials
Estimated monthly payment
Let us help you find your dream home
How many bedrooms are you looking for?
Similar homes nearby
Recently added communities in this area
Nearby communities in Raleigh
New homes in nearby cities
More New Homes in Raleigh, NC
Corcoran DeRonja Real Estate, MLS 10151839
© 2025 Doorify MLS, Inc. of North Carolina. All rights reserved. Brokers make an effort to deliver accurate information, but buyers should independently verify any information on which they will rely in a transaction. The listing broker shall not be responsible for any typographical errors, misinformation, or misprints, and they shall be held totally harmless from any damages arising from reliance upon this data. This data is provided exclusively for consumers’ personal, non-commercial use. Some IDX listings have been excluded from this IDX display. Closed (sold) listings may have been listed and/or sold by a real estate firm other than the firm(s) featured on this website. Closed data is not available until the sale of the property is recorded in the MLS. Home sale data is not an appraisal, CMA, competitive or comparative market analysis, or home valuation of any property. Listings marked with an icon are provided courtesy of the Doorify MLS, Inc. of North Carolina, Internet Data Exchange Database.
Read moreLast checked Mar 30, 4:10 pm
- Jome
- New homes search
- North Carolina
- Raleigh-Durham Area
- Wake County
- Raleigh
- 724 Powell Dr, Raleigh, NC 27606



























