











































- 4 bd
- 3.5 ba
- 2,932 sqft
Millbrook - Crest Series plan in Knightdale Station by Dream Finders Homes
New Homes for Sale Near 804 Challenger Ln, Knightdale, NC 27545
About this Plan
May also be listed on the Dream Finders Homes website
Information last verified by Jome: Friday at 8:02 AM (January 9, 2026)
Plan details
- Name:
- Millbrook - Crest Series
- Property status:
- Sold
- Lot width (feet):
- 60
- Size:
- 2,932 sqft
- Stories:
- 2
- Beds from:
- 4
- Beds to:
- 6
- Baths:
- 3
- Half baths:
- 1
- Garage spaces:
- 2
Plan features & finishes
- Garage/Parking:
- GarageAttached Garage
- Interior Features:
- Walk-In ClosetPantryLoft
- Laundry facilities:
- Utility/Laundry Room
- Property amenities:
- Lanai
- Rooms:
- Great RoomKitchenOffice/StudyDining RoomPrimary Bedroom Upstairs
- Upgrade Options:
- Extra BedroomFireplace
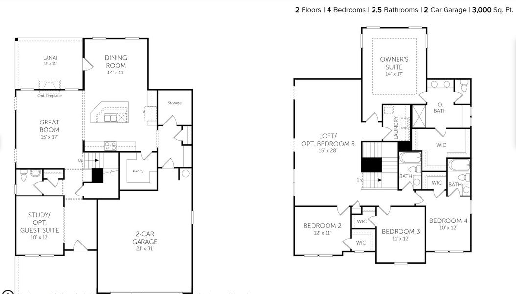
See the full plan layout
Download the floor plan PDF with room dimensions and home design details.

Instant download, no cost

Community details
Knightdale Station
by Dream Finders Homes, Knightdale, NC
- 15 homes
- 12 plans
- 1,585 - 3,305 sqft
View Knightdale Station details
Want to know more about what's around here?
The Millbrook - Crest Series floor plan is part of Knightdale Station, a new home community by Dream Finders Homes, located in Knightdale, NC. Visit the Knightdale Station community page for full neighborhood insights, including nearby schools, shopping, walk & bike-scores, commuting, air quality & natural hazards.

Homes built from this plan
Available homes in Knightdale Station
- Home at address 748 Lightrail Dr, Knightdale, NC 27545

$399,990
Move-in ready- 4 bd
- 3 ba
- 1,756 sqft
748 Lightrail Dr, Knightdale, NC 27545
- Home at address 740 Lightrail Dr, Knightdale, NC 27545

$431,640
Move-in ready- 4 bd
- 3 ba
- 1,781 sqft
740 Lightrail Dr, Knightdale, NC 27545
- Home at address 772 Aristocrat Ln, Knightdale, NC 27545

$499,738
Move-in ready- 4 bd
- 3 ba
- 2,062 sqft
772 Aristocrat Ln, Knightdale, NC 27545
- Home at address 968 Bostonian Dr, Knightdale, NC 27545

$499,990
Move-in ready- 4 bd
- 3 ba
- 2,426 sqft
968 Bostonian Dr, Knightdale, NC 27545
- Home at address 728 Aristocrat Ln, Knightdale, NC 27545

$521,341
Move-in ready- 4 bd
- 3 ba
- 2,426 sqft
728 Aristocrat Ln, Knightdale, NC 27545
- Home at address 609 Metroliner Pl, Knightdale, NC 27545

$564,990
Move-in ready- 4 bd
- 2.5 ba
- 2,962 sqft
609 Metroliner Pl, Knightdale, NC 27545
More floor plans in Knightdale Station
- View details for Barton - Crest Series

Barton - Crest Series
Knightdale Station 50'
Contact for price- 4 bd
- 3 ba
- 2,597 sqft
- View details for Millbrook - Crest Series

Millbrook - Crest Series
Knightdale Station 60'
Contact for price- 4 bd
- 3.5 ba
- 2,932 sqft
Financials
Nearby communities in Knightdale
Homes in Knightdale by Dream Finders Homes
Recently added communities in this area
Other Builders in Knightdale, NC
Nearby sold homes
New homes in nearby cities
More New Homes in Knightdale, NC
- Jome
- New homes search
- North Carolina
- Raleigh-Durham Area
- Wake County
- Knightdale
- Knightdale Station
- 804 Challenger Ln, Knightdale, NC 27545

























































