








Book your tour. Save an average of $18,473. We'll handle the rest.
We collect exclusive builder offers, book your tours, and support you from start to housewarming.
- Confirmed tours
- Get matched & compare top deals
- Expert help, no pressure
- No added fees
Estimated value based on Jome data, T&C apply






































- 4 bd
- 3 ba
- 3,113 sqft
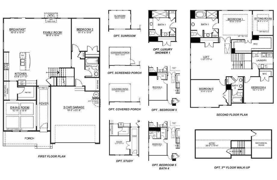
Hampshire plan in Laurelbrook by D.R. Horton
Visit the community to experience this floor plan
Why tour with Jome?
- No pressure toursTour at your own pace with no sales pressure
- Expert guidanceGet insights from our home buying experts
- Exclusive accessSee homes and deals not available elsewhere
Jome is featured in
Plan description
May also be listed on the D.R. Horton website
Information last verified by Jome: Today at 4:52 AM (April 2, 2026)
Book your tour. Save an average of $18,473. We'll handle the rest.
We collect exclusive builder offers, book your tours, and support you from start to housewarming.
- Confirmed tours
- Get matched & compare top deals
- Expert help, no pressure
- No added fees
Estimated value based on Jome data, T&C apply
Plan details
- Name:
- Hampshire
- Property type:
- Floor plan
- Community:
- Laurelbrook
- Builder:
- D.R. Horton
- Size:
- 3,113 sqft
- Stories:
- 2
- Beds:
- 4
- Baths:
- 3
- Garage spaces:
- 2
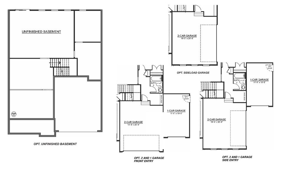
Plan features & finishes
- Garage/Parking:
- GarageAttached Garage
- Interior Features:
- Walk-In ClosetFoyerPantryLoft
- Laundry facilities:
- Utility/Laundry Room
- Property amenities:
- Porch
- Rooms:
- KitchenDining RoomFamily RoomBreakfast AreaOpen Concept FloorplanPrimary Bedroom Upstairs

Get a consultation with our New Homes Expert
- See how your home builds wealth
- Plan your home-buying roadmap
- Discover hidden gems

Community details
Laurelbrook at Laurelbrook
by D.R. Horton, Sherrills Ford, NC
- 20 homes
- 16 plans
- 1,618 - 3,119 sqft
View Laurelbrook details
Want to know more about what's around here?
The Hampshire floor plan is part of Laurelbrook, a new home community by D.R. Horton, located in Sherrills Ford, NC. Visit the Laurelbrook community page for full neighborhood insights, including nearby schools, shopping, walk & bike-scores, commuting, air quality & natural hazards.

Homes built from this plan
Available homes in Laurelbrook
- Home at address 7648 Bainbridge Rd, Sherrills Ford, NC 28673

Belhaven
$345,000
- 4 bd
- 2.5 ba
- 1,991 sqft
7648 Bainbridge Rd, Sherrills Ford, NC 28673
- Home at address 7616 Bainbridge Rd, Sherrills Ford, NC 28673

Cali
$374,640
- 4 bd
- 2 ba
- 1,764 sqft
7616 Bainbridge Rd, Sherrills Ford, NC 28673
- Home at address 7632 Bainbridge Rd, Sherrills Ford, NC 28673

Robie
$379,000
- 5 bd
- 3 ba
- 2,368 sqft
7632 Bainbridge Rd, Sherrills Ford, NC 28673
- Home at address 7570 Bainbridge Rd, Sherrills Ford, NC 28673

Cali
$380,750
- 4 bd
- 2 ba
- 1,764 sqft
7570 Bainbridge Rd, Sherrills Ford, NC 28673
- Home at address 7636 Bainbridge Rd, Sherrills Ford, NC 28673

Wilmington
$398,750
- 4 bd
- 2.5 ba
- 2,820 sqft
7636 Bainbridge Rd, Sherrills Ford, NC 28673
- Home at address 7604 Bainbridge Rd, Sherrills Ford, NC 28673

Hayden
$402,090
- 5 bd
- 3 ba
- 2,511 sqft
7604 Bainbridge Rd, Sherrills Ford, NC 28673
More floor plans in Laurelbrook

Considering this plan?
Our expert will guide your tour, in-person or virtual
Need more information?
Text or call (888) 545-5198
Financials
Estimated monthly payment
Let us help you find your dream home
How many bedrooms are you looking for?
Similar homes nearby
Recently added communities in this area
Nearby communities in Sherrills Ford
New homes in nearby cities
More New Homes in Sherrills Ford, NC
- Jome
- New homes search
- North Carolina
- Charlotte Metropolitan Area
- Catawba County
- Sherrills Ford
- Laurelbrook
- 7728 Bainbridge Rd, Sherrills Ford, NC 28673





































