
























- 4 bd
- 3.5 ba
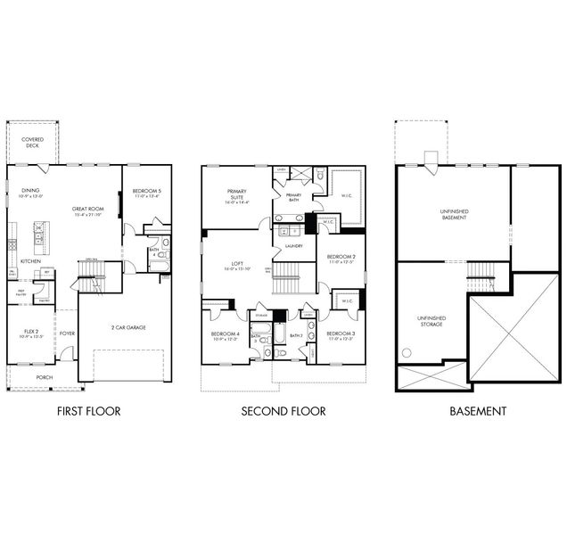
Johnson Basement plan in Vines at Mill Creek - Estate Series by Meritage Homes
New Homes for Sale Near 2335 Grape Vine Wy, Braselton, GA 30517
About this Plan
May also be listed on the Meritage Homes website
Information last verified by Jome: Thursday at 7:57 AM (December 11, 2025)
Plan details
- Name:
- Johnson Basement
- Property status:
- Sold
- Stories:
- 2
- Beds:
- 4
- Baths:
- 3
- Half baths:
- 1
- Garage spaces:
- 2
- HERS index:
- 62
Plan features & finishes
- Garage/Parking:
- GarageAttached Garage
- Interior Features:
- Walk-In ClosetFoyerPantryLoft
- Kitchen:
- Dishwasher
- Laundry facilities:
- WasherUtility/Laundry Room
- Lighting:
- Lighting
- Property amenities:
- PatioFireplacePorch
- Rooms:
- AtticFlex RoomKitchenPowder RoomDining RoomFamily RoomOpen Concept FloorplanPrimary Bedroom Upstairs
Utility information
- Utilities:
- HVAC

Community details
Vines at Mill Creek - Estate Series
by Meritage Homes, Braselton, GA
- 3 homes
- 2,479 - 3,252 sqft
View Vines at Mill Creek - Estate Series details
Want to know more about what's around here?
The Johnson Basement floor plan is part of Vines at Mill Creek - Estate Series, a new home community by Meritage Homes, located in Braselton, GA. Visit the Vines at Mill Creek - Estate Series community page for full neighborhood insights, including nearby schools, shopping, walk & bike-scores, commuting, air quality & natural hazards.

Available homes in Vines at Mill Creek - Estate Series
Financials
Nearby communities in Braselton
Homes in Braselton by Meritage Homes
Recently added communities in this area
Other Builders in Braselton, GA
Nearby sold homes
New homes in nearby cities
More New Homes in Braselton, GA
- Jome
- New homes search
- Georgia
- Atlanta Metropolitan Area
- Gwinnett County
- Braselton
- Vines at Mill Creek - Estate Series
- 2335 Grape Vine Wy, Braselton, GA 30517


























































