



Book your tour. Save an average of $18,473. We'll handle the rest.
We collect exclusive builder offers, book your tours, and support you from start to housewarming.
- Confirmed tours
- Get matched & compare top deals
- Expert help, no pressure
- No added fees
Estimated value based on Jome data, T&C apply
- 5 bd
- 3.5 ba
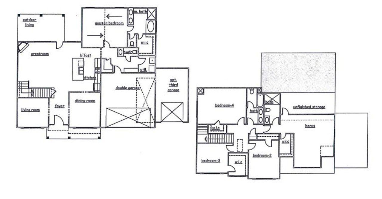
Azalea plan in River Manor by Bowen and Bowen Homebuilders
Visit the community to experience this floor plan
Why tour with Jome?
- No pressure toursTour at your own pace with no sales pressure
- Expert guidanceGet insights from our home buying experts
- Exclusive accessSee homes and deals not available elsewhere
Jome is featured in
Plan description
May also be listed on the Bowen and Bowen Homebuilders website
Information last verified by Jome: Wednesday at 2:58 PM (March 4, 2026)
Plan details
- Name:
- Azalea
- Property type:
- Floor plan
- Community:
- River Manor
- Builder:
- Bowen and Bowen Homebuilders
- Stories:
- 2
- Beds:
- 5
- Baths:
- 3.5
- Garage spaces from:
- 2
- Garage spaces to:
- 3
Plan features & finishes
- Garage/Parking:
- GarageAttached Garage
- Interior Features:
- Walk-In ClosetFoyer
- Laundry facilities:
- Utility/Laundry Room
- Property amenities:
- Outdoor Living
- Rooms:
- KitchenPowder RoomDining RoomLiving RoomBreakfast AreaOpen Concept FloorplanPrimary Bedroom Downstairs
- Upgrade Options:
- Extended GarageFireplace

Get a consultation with our New Homes Expert
- See how your home builds wealth
- Plan your home-buying roadmap
- Discover hidden gems
See the full plan layout
Download the floor plan PDF with room dimensions and home design details.

Instant download, no cost

Community details
River Manor
by Bowen and Bowen Homebuilders, Cumming, GA
- 9 plans
View River Manor details
Want to know more about what's around here?
The Azalea floor plan is part of River Manor, a new home community by Bowen and Bowen Homebuilders, located in Cumming, GA. Visit the River Manor community page for full neighborhood insights, including nearby schools, shopping, walk & bike-scores, commuting, air quality & natural hazards.

More floor plans in River Manor

Considering this plan?
Our expert will guide your tour, in-person or virtual
Need more information?
Text or call (888) 488-9243
Financials
Let us help you find your dream home
How many bedrooms are you looking for?
Similar homes nearby
Recently added communities in this area
Nearby communities in Cumming
New homes in nearby cities
More New Homes in Cumming, GA
- Jome
- New homes search
- Georgia
- Atlanta Metropolitan Area
- Forsyth County
- Cumming
- River Manor
- 5250 Calloway Club Dr, Cumming, GA 30028




























