













Book your tour. Save an average of $18,473. We'll handle the rest.
- Confirmed tours
- Get matched & compare top deals
- Expert help, no pressure
- No added fees
Estimated value based on Jome data, T&C apply















- 4 bd
- 3 ba
- 2,551 sqft
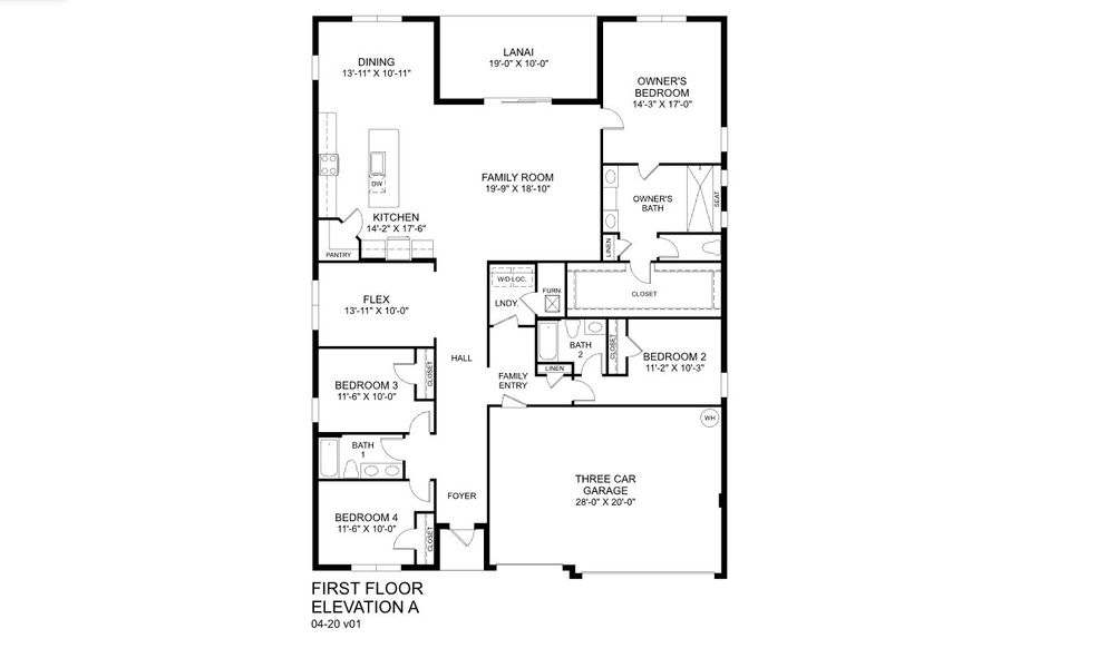
Sandalwood plan in Malabar Springs by Ryan Homes
Visit the community to experience this floor plan
Why tour with Jome?
- No pressure toursTour at your own pace with no sales pressure
- Expert guidanceGet insights from our home buying experts
- Exclusive accessSee homes and deals not available elsewhere
Jome is featured in
Plan description
May also be listed on the Ryan Homes website
Information last verified by Jome: Today at 1:33 AM (January 21, 2026)
Plan details
- Name:
- Sandalwood
- Property status:
- Floor plan
- Size:
- 2,551 sqft
- Stories:
- 1
- Beds:
- 4
- Baths:
- 3
- Garage spaces:
- 3
- HERS index:
- 71
Plan features & finishes
- Garage/Parking:
- GarageAttached Garage
- Interior Features:
- Walk-In ClosetFoyerPantry
- Kitchen:
- Kitchen Island
- Laundry facilities:
- Utility/Laundry Room
- Property amenities:
- Lanai
- Rooms:
- Flex RoomPrimary Bedroom On MainKitchenDining RoomFamily RoomOpen Concept FloorplanPrimary Bedroom Downstairs
- Upgrade Options:
- Office/StudyAlternate Primary BathLaundry SinkAlternate KitchenSoaking TubShowerExtended PorchLaundry Cabinets

Get a consultation with our New Homes Expert
- See how your home builds wealth
- Plan your home-buying roadmap
- Discover hidden gems
See the full plan layout
Download the floor plan PDF with room dimensions and home design details.

Instant download, no cost

Community details
Malabar Springs
by Ryan Homes, Palm Bay, FL
- 10 homes
- 7 plans
- 1,833 - 3,029 sqft
View Malabar Springs details
Want to know more about what's around here?
The Sandalwood floor plan is part of Malabar Springs, a new home community by Ryan Homes, located in Palm Bay, FL. Visit the Malabar Springs community page for full neighborhood insights, including nearby schools, shopping, walk & bike-scores, commuting, air quality & natural hazards.

Homes built from this plan
Available homes in Malabar Springs
- Home at address 4864 Madras Dr Nw, Palm Bay, FL 32907

Cascade
$348,490
- 4 bd
- 3 ba
- 2,177 sqft
4864 Madras Dr Nw, Palm Bay, FL 32907
- Home at address 5145 Madras Dr Nw, Palm Bay, FL 32907

Brooks
$349,990
- 4 bd
- 2 ba
- 1,833 sqft
5145 Madras Dr Nw, Palm Bay, FL 32907
- Home at address 5164 Madras Dr Nw, Palm Bay, FL 32907

Grove
$353,990
- 4 bd
- 2.5 ba
- 2,187 sqft
5164 Madras Dr Nw, Palm Bay, FL 32907
- Home at address 5154 Madras Dr Nw, Palm Bay, FL 32907

Marina
$359,990
- 5 bd
- 3 ba
- 2,520 sqft
5154 Madras Dr Nw, Palm Bay, FL 32907
- Home at address 5155 Madras Dr Nw, Palm Bay, FL 32907

Patterson
$365,990
- 4 bd
- 2.5 ba
- 2,080 sqft
5155 Madras Dr Nw, Palm Bay, FL 32907
- Home at address 2548 Nilgiri St Nw, Palm Bay, FL 32907

Heritage Bay
$396,990
- 4 bd
- 3 ba
- 2,753 sqft
2548 Nilgiri St Nw, Palm Bay, FL 32907
More floor plans in Malabar Springs

Considering this plan?
Our expert will guide your tour, in-person or virtual
Need more information?
Text or call (888) 486-2818
Financials
Estimated monthly payment
Let us help you find your dream home
How many bedrooms are you looking for?
Similar homes nearby
Recently added communities in this area
Nearby communities in Palm Bay
New homes in nearby cities
More New Homes in Palm Bay, FL
- Jome
- New homes search
- Florida
- Space Coast
- Brevard County
- Palm Bay
- Malabar Springs
- 5215 Madras Dr Nw, Palm Bay, FL 32907




























