









Book your tour. Save an average of $18,473. We'll handle the rest.
We collect exclusive builder offers, book your tours, and support you from start to housewarming.
- Confirmed tours
- Get matched & compare top deals
- Expert help, no pressure
- No added fees
Estimated value based on Jome data, T&C apply












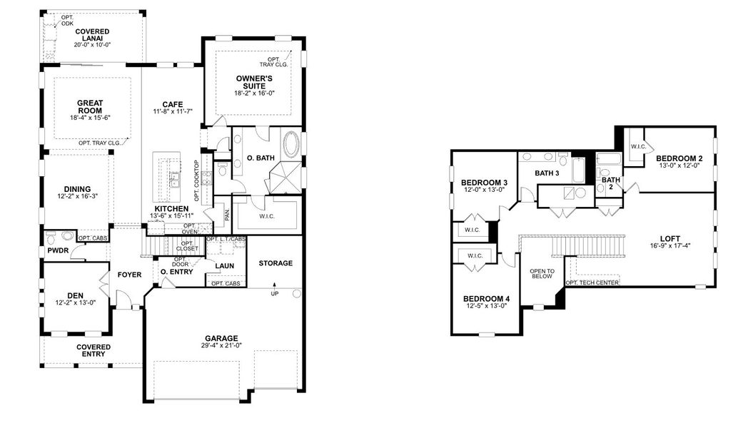
- 4 bd
- 3.5 ba
- 3,651 sqft
Juniper plan in Hawkstone by M/I Homes
Visit the community to experience this floor plan
Why tour with Jome?
- No pressure toursTour at your own pace with no sales pressure
- Expert guidanceGet insights from our home buying experts
- Exclusive accessSee homes and deals not available elsewhere
Jome is featured in
Plan description
May also be listed on the M/I Homes website
Information last verified by Jome: Yesterday at 8:20 AM (April 1, 2026)
Plan details
Plan features & finishes
- Garage/Parking:
- GarageAttached Garage
- Interior Features:
- Walk-In ClosetFoyerPantryLoft
- Kitchen:
- Kitchen Island
- Laundry facilities:
- Utility/Laundry Room
- Property amenities:
- Lanai
- Rooms:
- Great RoomPrimary Bedroom On MainKitchenDen RoomPowder RoomDining RoomBreakfast AreaOpen Concept FloorplanPrimary Bedroom Downstairs
- Upgrade Options:
- Freestanding TubSeparate Shower and TubExtended GarageSliding Glass DoorsTech CenterExtended LanaiLaundry CabinetsGuest Room

Get a consultation with our New Homes Expert
- See how your home builds wealth
- Plan your home-buying roadmap
- Discover hidden gems
See the full plan layout
Download the floor plan PDF with room dimensions and home design details.

Instant download, no cost

Community details
Hawkstone
by M/I Homes, Sarasota, FL
- 18 homes
- 9 plans
- 1,763 - 3,952 sqft
View Hawkstone details
Want to know more about what's around here?
The Juniper floor plan is part of Hawkstone, a new home community by M/I Homes, located in Sarasota, FL. Visit the Hawkstone community page for full neighborhood insights, including nearby schools, shopping, walk & bike-scores, commuting, air quality & natural hazards.

Homes built from this plan
Available homes in Hawkstone
- Home at address 7551 Hawkstone Dr, Sarasota, FL 34241

Whitney
$737,999
- 4 bd
- 2.5 ba
- 2,851 sqft
7551 Hawkstone Dr, Sarasota, FL 34241
- Home at address 7575 Seahawk Ave, Sarasota, FL 34241

Whitney
$767,999
- 4 bd
- 2.5 ba
- 2,851 sqft
7575 Seahawk Ave, Sarasota, FL 34241
- Home at address 7643 Seahawk Ave, Sarasota, FL 34241

Crystal
$782,974
- 4 bd
- 3 ba
- 2,309 sqft
7643 Seahawk Ave, Sarasota, FL 34241
- Home at address 7559 Hawkstone Dr, Sarasota, FL 34241

Estero
$816,759
- 5 bd
- 3 ba
- 3,317 sqft
7559 Hawkstone Dr, Sarasota, FL 34241
- Home at address 7555 Hawkstone Dr, Sarasota, FL 34241

Wekiva
$907,999
- 5 bd
- 4 ba
- 3,521 sqft
7555 Hawkstone Dr, Sarasota, FL 34241
- Home at address 7547 Hawkstone Dr, Sarasota, FL 34241

Wekiva
$939,411
- 5 bd
- 4 ba
- 3,838 sqft
7547 Hawkstone Dr, Sarasota, FL 34241
More floor plans in Hawkstone

Considering this plan?
Our expert will guide your tour, in-person or virtual
Need more information?
Text or call (888) 545-5198
Financials
Estimated monthly payment
Let us help you find your dream home
How many bedrooms are you looking for?
Similar homes nearby
Recently added communities in this area
Nearby communities in Sarasota
New homes in nearby cities
More New Homes in Sarasota, FL
- Jome
- New homes search
- Florida
- Sarasota County
- Sarasota
- Hawkstone
- 8559 Colter Pl, Sarasota, FL 34241




































