



Book your tour. Save an average of $18,473. We'll handle the rest.
We collect exclusive builder offers, book your tours, and support you from start to housewarming.
- Confirmed tours
- Get matched & compare top deals
- Expert help, no pressure
- No added fees
Estimated value based on Jome data, T&C apply
- 5 bd
- 3.5 ba
- 3,899 sqft
3685 142Nd Ter E, Parrish, FL 34219
Why tour with Jome?
- No pressure toursTour at your own pace with no sales pressure
- Expert guidanceGet insights from our home buying experts
- Exclusive accessSee homes and deals not available elsewhere
Jome is featured in
- Single-Family
- Ready by June 2026
- $218/sqft
- $792/quarterly HOA
Home description
SPECIAL FINANCING AVAILABLE FOR A LIMITED TIME ONLY FROM PREFERRED LENDER. RESTRICTIONS APPLY, FOR QUALIFIED BUYERS, SUBJECT TO APPLICABLE TERMS AND CONDITIONS. SUBJECT TO CHANGE WITHOUT NOTICE
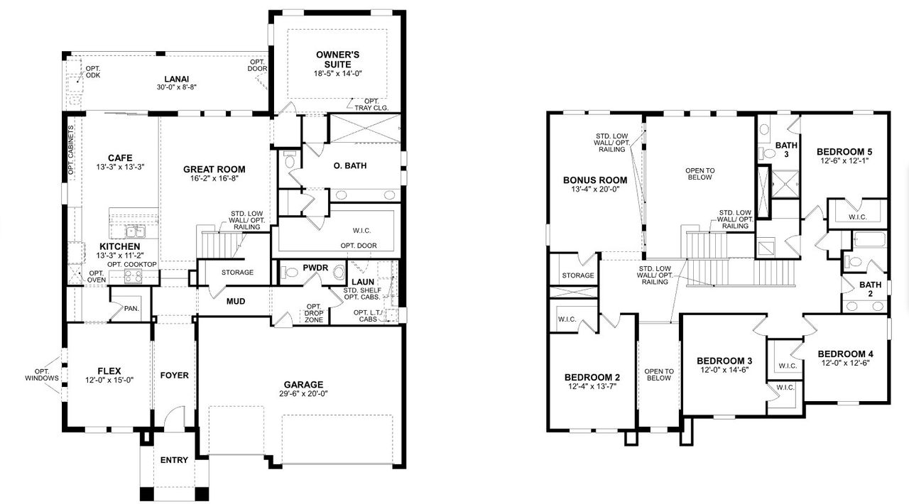
The Santa Fe is a beautifully designed two-story home offers 5 bedrooms, 3.5 baths, and a spacious 3-car garage, totaling 3,899 square feet of functional living space.
Step through the foyer to find an open-concept layout centered around the great room, which seamlessly connects to the café and kitchen. The kitchen includes a walk-in pantry, ample counter space, and optional upgraded cabinetry and appliances for added convenience.
Adjacent to the main living area, a covered lanai extends your entertaining space outdoors.
The first-floor owner’s suite is a private retreat, complete with a large walk-in closet and a spa-like owner’s bath with dual vanities and a separate shower. Additional main-level highlights include a den near the foyer—perfect for an office or playroom—and a convenient mudroom with access to the laundry area and garage.
Upstairs, the home features 4 secondary bedrooms, each with a walk-in closet for plenty of storage. Two full baths, one shared and one private, provide convenience. A spacious bonus room serves as a versatile space for a media room, game room, or additional lounge area. The second floor also includes an overlook to the great room below, adding a sense of openness to the layout.
With abundant storage options, modern conveniences, and flexible spaces, this home is designed to fit all of your needs.
FLORIWEST REALTY GROUP, LLC, MLS R4910951
May also be listed on the M/I Homes website
Information last verified by Jome: Yesterday at 9:46 AM (April 20, 2026)
Home highlights
MacDill AFB offers secure housing, top-rated schools, and abundant amenities in vibrant South Tampa.
Book your tour. Save an average of $18,473. We'll handle the rest.
We collect exclusive builder offers, book your tours, and support you from start to housewarming.
- Confirmed tours
- Get matched & compare top deals
- Expert help, no pressure
- No added fees
Estimated value based on Jome data, T&C apply
Home details
- Property status:
- Under construction
- Lot size (acres):
- 0.18
- Size:
- 3,899 sqft
- Stories:
- 2
- Beds:
- 5
- Baths:
- 3
- Half baths:
- 1
- Garage spaces:
- 3
- Facing direction:
- East
Construction details
- Builder Name:
- M/I Homes
- Completion Date:
- June, 2026
- Year Built:
- 2026
- Roof:
- Tile Roofing
Home features & finishes
- Construction Materials:
- Block
- Cooling:
- Central Air
- Flooring:
- Carpet FlooringTile Flooring
- Foundation Details:
- Slab
- Garage/Parking:
- GarageAttached Garage
- Interior Features:
- Walk-In ClosetFoyerPantryStorage
- Kitchen:
- DishwasherMicrowave OvenDisposalKitchen IslandKitchen Range
- Laundry facilities:
- Utility/Laundry Room
- Pets:
- Pets Allowed
- Property amenities:
- LanaiIrrigation
- Rooms:
- Bonus RoomFlex RoomGreat RoomPrimary Bedroom On MainKitchenPowder RoomMudroomBreakfast AreaOpen Concept FloorplanPrimary Bedroom Downstairs

Get a consultation with our New Homes Expert
- See how your home builds wealth
- Plan your home-buying roadmap
- Discover hidden gems
Utility information
- Heating:
- Heat Pump
- Sewer:
- Public Sewer
- Utilities:
- Electricity Available, Cable Available, Sewer Available, Water Available
- Water source:
- Public

Community details
Creeks Edge at Twin Rivers
by M/I Homes, Parrish, FL
- 18 homes
- 6 plans
- 2,309 - 3,952 sqft
View Creeks Edge at Twin Rivers details
Community amenities
- Gated Community
- Sidewalks Available
More homes in Creeks Edge at Twin Rivers
- Home at address 3670 142Nd Ter E, Parrish, FL 34219

Madison
$799,999
- 5 bd
- 4 ba
- 3,800 sqft
3670 142Nd Ter E, Parrish, FL 34219
- Home at address 3662 142Nd Ter E, Parrish, FL 34219

Santa Fe
$828,579
- 5 bd
- 3.5 ba
- 3,952 sqft
3662 142Nd Ter E, Parrish, FL 34219
Floor plans in Creeks Edge at Twin Rivers
About the builder - M/I Homes

- 142communities on Jome
- 1,759homes on Jome
Neighborhood
Home address
Schools in Manatee County School District
GreatSchools’ Summary Rating calculation is based on 4 of the school’s themed ratings, including test scores, student/academic progress, college readiness, and equity. This information should only be used as a reference. Jome is not affiliated with GreatSchools and does not endorse or guarantee this information. Please reach out to schools directly to verify all information and enrollment eligibility. Data provided by GreatSchools.org © 2025
Places of interest
Getting around
Air quality

Considering this home?
Our expert will guide your tour, in-person or virtual
Need more information?
Text or call (888) 545-5198
Financials
Estimated monthly payment
Let us help you find your dream home
How many bedrooms are you looking for?
Similar homes nearby
Recently added communities in this area
Nearby communities in Parrish
New homes in nearby cities
More New Homes in Parrish, FL
FLORIWEST REALTY GROUP, LLC, MLS R4910951
Based on information submitted to the MLS GRID as of 10/21/2024 2:31 PM CDT. All data is obtained from various sources and may not have been verified by broker or MLS GRID. Supplied Open House Information is subject to change without notice. All information should be independently reviewed and verified for accuracy. Properties may or may not be listed by the office/agent presenting the information. Some IDX listings have been excluded from this website. Properties displayed may be listed or sold by various participants in the MLS. IDX information is provided exclusively for personal, non-commercial use, and may not be used for any purpose other than to identify prospective properties consumers may be interested in purchasing. Information is deemed reliable but not guaranteed. Use of the MLS GRID Data may be subject to an end user license agreement prescribed by the Member Participant’s applicable MLS if any and as amended from time to time. The Digital Millennium Copyright Act of 1998, 17 U.S.C. § 512 (the “DMCA”) provides recourse for copyright owners who believe that material appearing on the Internet infringes their rights under U.S. copyright law. If you believe in good faith that any content or material made available in connection with our website or services infringes your copyright, you (or your agent) may send us a notice requesting that the content or material be removed, or access to it blocked. Notices must be sent in writing by email to DMCAnotice@MLSGrid.com. The DMCA requires that your notice of alleged copyright infringement include the following information: (1) description of the copyrighted work that is the subject of claimed infringement; (2) description of the alleged infringing content and information sufficient to permit us to locate the content; (3) contact information for you, including your address, telephone number and email address; (4) a statement by you that you have a good faith belief that the content in the manner complained of is not authorized by the copyright owner, or its agent, or by the operation of any law; (5) a statement by you, signed under penalty of perjury, that the information in the notification is accurate and that you have the authority to enforce the copyrights that are claimed to be infringed; and (6) a physical or electronic signature of the copyright owner or a person authorized to act on the copyright owner’s behalf. Failure to include all of the above information may result in the delay of the processing of your complaint. Listing Information presented by local MLS brokerage: NewHomesMate LLC, DBA Jome (888) 545-5198
Read moreLast checked Apr 21, 3:10 am
- Jome
- New homes search
- Florida
- Tampa Bay Area
- Manatee County
- Parrish
- Creeks Edge at Twin Rivers
- 3685 142Nd Ter E, Parrish, FL 34219




























