


















- 4 bd
- 3 ba
- 3,067 sqft
Egret V - Estate Series | 125' Wide Lots plan in Plantation Bay by ICI Homes
New Homes for Sale Near 100 Plantation Bay Dr, Ormond Beach, FL 32174
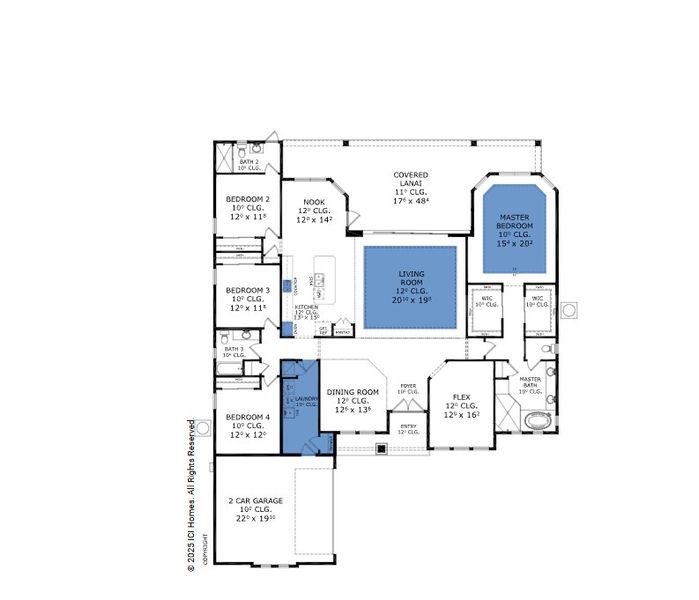
About this Plan
May also be listed on the ICI Homes website
Information last verified by Jome: Tuesday at 10:21 AM (February 3, 2026)
Plan details
- Name:
- Egret V - Estate Series | 125' Wide Lots
- Property status:
- Sold
- Collection:
- Prestwick Estates
- Lot width (feet):
- 125
- Size:
- 3,067 sqft
- Stories:
- 1
- Beds:
- 4
- Baths:
- 3
- Garage spaces:
- 2
- HERS index:
- 59
Plan features & finishes
- Garage/Parking:
- GarageAttached Garage
- Interior Features:
- Walk-In ClosetFoyerPantry
- Kitchen:
- Kitchen Island
- Laundry facilities:
- Utility/Laundry Room
- Property amenities:
- Covered Outdoor LivingLanai
- Rooms:
- Flex RoomPrimary Bedroom On MainKitchenNookDining RoomLiving RoomOpen Concept FloorplanPrimary Bedroom Downstairs
- Upgrade Options:
- Tray CeilingLaundry Sink
See the full plan layout
Download the floor plan PDF with room dimensions and home design details.

Instant download, no cost

Community details
Plantation Bay
by ICI Homes, Ormond Beach, FL
- 7 homes
- 31 plans
- 1,643 - 4,101 sqft
View Plantation Bay details
Want to know more about what's around here?
The Egret V - Estate Series | 125' Wide Lots floor plan is part of Plantation Bay, a new home community by ICI Homes, located in Ormond Beach, FL. Visit the Plantation Bay community page for full neighborhood insights, including nearby schools, shopping, walk & bike-scores, commuting, air quality & natural hazards.

Available homes in Plantation Bay
- Home at address 443 Stirling Bridge Dr, Ormond Beach, FL 32174

$1,301,535
Move-in ready- 4 bd
- 3 ba
- 2,588 sqft
443 Stirling Bridge Dr, Ormond Beach, FL 32174
- Home at address 256 Stirling Bridge Dr, Ormond Beach, FL 32174

$1,815,112
Move-in ready- 4 bd
- 4 ba
- 3,362 sqft
256 Stirling Bridge Dr, Ormond Beach, FL 32174
- Home at address 1009 Sudbury Ln, Ormond Beach, FL 32174

$2,834,201
Move-in ready- 4 bd
- 4.5 ba
- 3,927 sqft
1009 Sudbury Ln, Ormond Beach, FL 32174
More floor plans in Plantation Bay
- View details for Juliette III - Elite Series | 60' Wide Lots

Juliette III - Elite Series | 60' Wide Lots
Westlake Single Family
$595,900+- 4 bd
- 3 ba
- 2,193 sqft
- View details for Juliette II - Elite Series | 60' Wide Lots

Juliette II - Elite Series | 60' Wide Lots
Westlake Single Family
$604,900+- 4 bd
- 3 ba
- 2,301 sqft
Financials
Nearby communities in Ormond Beach
Homes in Ormond Beach Neighborhoods
Homes in Ormond Beach by ICI Homes
Recently added communities in this area
Other Builders in Ormond Beach, FL
Nearby sold homes
New homes in nearby cities
More New Homes in Ormond Beach, FL
- Jome
- New homes search
- Florida
- Greater Orlando Area
- Flagler County
- Ormond Beach
- Plantation Bay
- Prestwick Estates
- 100 Plantation Bay Dr, Ormond Beach, FL 32174





























































