



Book your tour. Save an average of $18,473. We'll handle the rest.
We collect exclusive builder offers, book your tours, and support you from start to housewarming.
- Confirmed tours
- Get matched & compare top deals
- Expert help, no pressure
- No added fees
Estimated value based on Jome data, T&C apply

Why tour with Jome?
- No pressure toursTour at your own pace with no sales pressure
- Expert guidanceGet insights from our home buying experts
- Exclusive accessSee homes and deals not available elsewhere
Jome is featured in
- Single-Family
- Ready by January 2027
- $298.55/sqft
- $450.56/monthly HOA
Home description
Come Build your dream home! 6 Rio Vista Dr offers an oversized lot in the exclusive, gated community of Marina Del Palma, just minutes from the sandy shores of Flagler Beach. With 120 feet of frontage, this premium homesite offers ample space to design a custom residence. Backed by a non-buildable preserve, the lot promises privacy and peaceful natural surroundings. Marina Del Palma is tailor-made for boating enthusiasts, with a private state-of-the-art marina, valet dry boat storage(for vessels up to 30 feet), and marina slips available for boats over 30 feet. With direct access to the Intracoastal Waterway, you’ll enjoy quick, easy outings on the water whenever the mood strikes. Community amenities include a resort-style pool, tennis court, fitness center, and dog park, creating a lifestyle that’s equal parts luxury and leisure. Don’t just dream it — build it. Seize this rare opportunity to secure a premium lot in one of Palm Coast’s most desirable waterfront communities.
Vacant lot only. Proposed home and pricing are conceptual and subject to builder review and site inspection. Builder has not inspected lot. Final price and feasibility subject to soil, fill, grading, HOA, utilities, governmental approvals, and encumbrances of record. No guarantee of construction or pricing.
TAKE ACTION PROPERTIES, LLC, MLS FC315053
May also be listed on the Hulbert Homes website
Information last verified by Jome: Yesterday at 9:50 AM (April 20, 2026)
Home highlights
Book your tour. Save an average of $18,473. We'll handle the rest.
We collect exclusive builder offers, book your tours, and support you from start to housewarming.
- Confirmed tours
- Get matched & compare top deals
- Expert help, no pressure
- No added fees
Estimated value based on Jome data, T&C apply
Home details
- Property status:
- Under construction
- Lot size (acres):
- 0.21
- Size:
- 3,098 sqft
- Stories:
- 2
- Beds:
- 3
- Baths:
- 3
- Garage spaces:
- 2
- Facing direction:
- Southwest
Construction details
- Builder Name:
- Hulbert Homes
- Completion Date:
- January, 2027
- Year Built:
- 2027
- Roof:
- Slate Roofing, Shingle Roofing
Home features & finishes
- Appliances:
- Ice Maker
- Construction Materials:
- StuccoBlock
- Cooling:
- Ceiling Fan(s)Central Air
- Flooring:
- Ceramic FlooringLaminate FlooringCarpet FlooringTile Flooring
- Foundation Details:
- Slab
- Garage/Parking:
- Door OpenerGarageAttached Garage
- Home amenities:
- InternetGreen Construction
- Interior Features:
- Ceiling-VaultedWalk-In ClosetShower and Tub in Primary BathFoyerPantrySliding DoorsBreakfast Bar
- Kitchen:
- DishwasherMicrowave OvenOvenRefrigeratorDisposalElectric CooktopBuilt-In OvenConvection OvenKitchen IslandCooktopElectric Oven
- Laundry facilities:
- DryerWasherUtility/Laundry Room
- Lighting:
- Exterior Lighting
- Pets:
- Pets AllowedCat(s) Only AllowedDog(s) Only Allowed
- Property amenities:
- Porch
- Rooms:
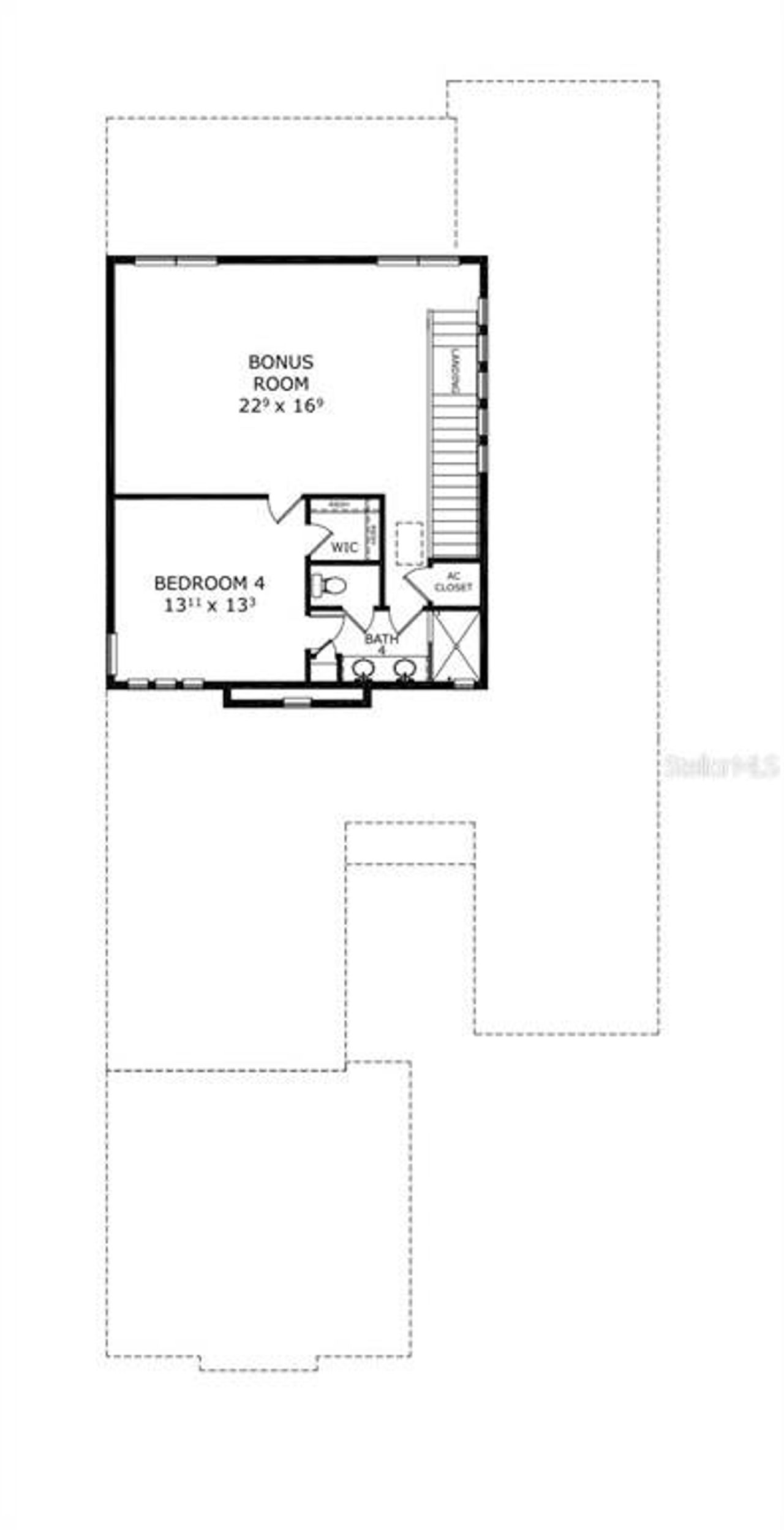
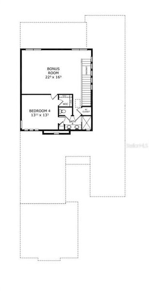
- Bonus RoomPrimary Bedroom On MainDining RoomLiving RoomBreakfast AreaOpen Concept FloorplanPrimary Bedroom Downstairs

Get a consultation with our New Homes Expert
- See how your home builds wealth
- Plan your home-buying roadmap
- Discover hidden gems
Utility information
- Heating:
- Heat Pump, Thermostat, Water Heater, Central Heating
- Sewer:
- Public Sewer
- Utilities:
- Electricity Available, Phone Available, HVAC, Cable Available, Sewer Available, Water Available
- Water source:
- Public

Community details
Marina del Palma
by Hulbert Homes, Palm Coast, FL
- 1 home
- 3,098 - 3,098 sqft
View Marina del Palma details
Community amenities
- Marina
- Dog Park
- Fitness Center/Exercise Area
- Tennis Courts
- Gated Community
- Community Pool
- Security Guard/Safety Office
- Dock
- Boat Slip
- Waterfront View
About the builder - Hulbert Homes
Neighborhood
Home address
- City:
- Flagler Beach
- County:
- Flagler
- Zip Code:
- 32136
Schools in Flagler County School District
GreatSchools’ Summary Rating calculation is based on 4 of the school’s themed ratings, including test scores, student/academic progress, college readiness, and equity. This information should only be used as a reference. Jome is not affiliated with GreatSchools and does not endorse or guarantee this information. Please reach out to schools directly to verify all information and enrollment eligibility. Data provided by GreatSchools.org © 2025
Places of interest
Getting around
Air quality

Considering this home?
Our expert will guide your tour, in-person or virtual
Need more information?
Text or call (888) 545-5198
Financials
Estimated monthly payment
Let us help you find your dream home
How many bedrooms are you looking for?
Similar homes nearby
Recently added communities in this area
Nearby communities in Flagler Beach
New homes in nearby cities
More New Homes in Flagler Beach, FL
TAKE ACTION PROPERTIES, LLC, MLS FC315053
Based on information submitted to the MLS GRID as of 10/21/2024 2:31 PM CDT. All data is obtained from various sources and may not have been verified by broker or MLS GRID. Supplied Open House Information is subject to change without notice. All information should be independently reviewed and verified for accuracy. Properties may or may not be listed by the office/agent presenting the information. Some IDX listings have been excluded from this website. Properties displayed may be listed or sold by various participants in the MLS. IDX information is provided exclusively for personal, non-commercial use, and may not be used for any purpose other than to identify prospective properties consumers may be interested in purchasing. Information is deemed reliable but not guaranteed. Use of the MLS GRID Data may be subject to an end user license agreement prescribed by the Member Participant’s applicable MLS if any and as amended from time to time. The Digital Millennium Copyright Act of 1998, 17 U.S.C. § 512 (the “DMCA”) provides recourse for copyright owners who believe that material appearing on the Internet infringes their rights under U.S. copyright law. If you believe in good faith that any content or material made available in connection with our website or services infringes your copyright, you (or your agent) may send us a notice requesting that the content or material be removed, or access to it blocked. Notices must be sent in writing by email to DMCAnotice@MLSGrid.com. The DMCA requires that your notice of alleged copyright infringement include the following information: (1) description of the copyrighted work that is the subject of claimed infringement; (2) description of the alleged infringing content and information sufficient to permit us to locate the content; (3) contact information for you, including your address, telephone number and email address; (4) a statement by you that you have a good faith belief that the content in the manner complained of is not authorized by the copyright owner, or its agent, or by the operation of any law; (5) a statement by you, signed under penalty of perjury, that the information in the notification is accurate and that you have the authority to enforce the copyrights that are claimed to be infringed; and (6) a physical or electronic signature of the copyright owner or a person authorized to act on the copyright owner’s behalf. Failure to include all of the above information may result in the delay of the processing of your complaint. Listing Information presented by local MLS brokerage: NewHomesMate LLC, DBA Jome (888) 545-5198
Read moreLast checked Apr 21, 3:10 am
- Jome
- New homes search
- Florida
- Jacksonville Metropolitan Area
- Flagler County
- Flagler Beach
- Marina del Palma
- 6 Rio Vista Dr, Flagler Beach, FL 32136

























