








Book your tour. Save an average of $18,473. We'll handle the rest.
We collect exclusive builder offers, book your tours, and support you from start to housewarming.
- Confirmed tours
- Get matched & compare top deals
- Expert help, no pressure
- No added fees
Estimated value based on Jome data, T&C apply























- 4 bd
- 3 ba
- 3,067 sqft
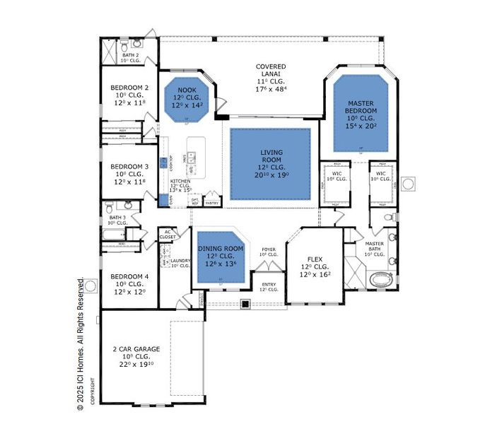
Egret V - Pinnacle Series | 80' Wide Lots plan in SilverLeaf by ICI Homes
Visit the community to experience this floor plan
Why tour with Jome?
- No pressure toursTour at your own pace with no sales pressure
- Expert guidanceGet insights from our home buying experts
- Exclusive accessSee homes and deals not available elsewhere
Jome is featured in
Plan description
May also be listed on the ICI Homes website
Information last verified by Jome: Today at 5:32 PM (April 19, 2026)
Plan highlights
Plan details
- Name:
- Egret V - Pinnacle Series | 80' Wide Lots
- Property type:
- Floor plan
- Community:
- SilverLeaf
- Builder:
- ICI Homes
- Collection:
- Courtney Grove
- Lot width (feet):
- 80
- Size:
- 3,067 sqft
- Stories:
- 1
- Beds:
- 4
- Baths:
- 3
- Garage spaces:
- 2
- HERS index:
- 59
Plan features & finishes
- Garage/Parking:
- GarageAttached Garage
- Interior Features:
- Walk-In ClosetFoyerPantry
- Laundry facilities:
- Utility/Laundry Room
- Property amenities:
- Lanai
- Rooms:
- Flex RoomPrimary Bedroom On MainKitchenNookDining RoomLiving RoomOpen Concept FloorplanPrimary Bedroom Downstairs
- Upgrade Options:
- BalconyTray CeilingExtended GarageOffice/StudyExtra Car GarageLaundry SinkOutdoor KitchenExtra Half BathBuilt-in AppliancesButler’s PantryCourtyardFireplaceExtended Patio

Get a consultation with our New Homes Expert
- See how your home builds wealth
- Plan your home-buying roadmap
- Discover hidden gems
See the full plan layout
Download the floor plan PDF with room dimensions and home design details.

Instant download, no cost

Community details
SilverLeaf at SilverLeaf
by ICI Homes, St. Augustine, FL
- 4 homes
- 21 plans
- 1,872 - 4,972 sqft
View SilverLeaf details
Want to know more about what's around here?
The Egret V - Pinnacle Series | 80' Wide Lots floor plan is part of SilverLeaf, a new home community by ICI Homes, located in St. Augustine, FL. Visit the SilverLeaf community page for full neighborhood insights, including nearby schools, shopping, walk & bike-scores, commuting, air quality & natural hazards.

Available homes in SilverLeaf
- Home at address 483 Courtney Chase Dr, St. Augustine, FL 32092

Serena
Courtney Chase
$705,000
- 5 bd
- 4 ba
- 2,861 sqft
483 Courtney Chase Dr, St. Augustine, FL 32092
- Home at address 53 Rose Bud Ln, St. Augustine, FL 32092

Costa Mesa - Elite Series | 60' Wide Lots
Courtney Chase
$835,000
- 4 bd
- 3 ba
- 2,714 sqft
53 Rose Bud Ln, St. Augustine, FL 32092
- Home at address 53 Glenbriar Ct, St. Augustine, FL 32092

Egret VII - Regency Series | 70' Wide Lots
Courtney Grove
$994,947
- 4 bd
- 3 ba
- 2,843 sqft
53 Glenbriar Ct, St. Augustine, FL 32092
- Home at address 523 Brook Rdg Wy, St. Augustine, FL 32092

Home
Courtney Grove
$1,074,825
- 4 bd
- 3 ba
- 3,111 sqft
523 Brook Rdg Wy, St. Augustine, FL 32092
More floor plans in SilverLeaf
- View details for Aiden - Classic Series | 50' Wide Lots

Images coming soon
Aiden - Classic Series | 50' Wide Lots
Courtney Chase
$559,900+- 4 bd
- 3 ba
- 2,399 sqft
- View details for Mesa Verde - Classic Series | 50' Wide Lots

Images coming soon
Mesa Verde - Classic Series | 50' Wide Lots
Courtney Chase
$584,900+- 4 bd
- 3 ba
- 2,625 sqft

Considering this plan?
Our expert will guide your tour, in-person or virtual
Need more information?
Text or call (888) 545-5198
Financials
Estimated monthly payment
Let us help you find your dream home
How many bedrooms are you looking for?
Similar homes nearby
Recently added communities in this area
Nearby communities in St. Augustine
New homes in nearby cities
More New Homes in St. Augustine, FL
- Jome
- New homes search
- Florida
- Jacksonville Metropolitan Area
- St. Johns County
- St. Augustine
- SilverLeaf
- Courtney Grove
- 26 Night Owl Ct, St. Augustine, FL 32092



























