









Book your tour. Save an average of $18,473. We'll handle the rest.
- Confirmed tours
- Get matched & compare top deals
- Expert help, no pressure
- No added fees
Estimated value based on Jome data, T&C apply
- 4 bd
- 3.5 ba
- 2,729 sqft
Santa Cruz - Classic Series | 50' Wide Lots plan in Courtney Chase by ICI Homes
Visit the community to experience this floor plan
Why tour with Jome?
- No pressure toursTour at your own pace with no sales pressure
- Expert guidanceGet insights from our home buying experts
- Exclusive accessSee homes and deals not available elsewhere
Jome is featured in
Plan description
May also be listed on the ICI Homes website
Information last verified by Jome: Yesterday at 4:39 PM (January 7, 2026)
Plan details
- Name:
- Santa Cruz - Classic Series | 50' Wide Lots
- Property status:
- Floor plan
- Lot width (feet):
- 50
- Size:
- 2,729 sqft
- Stories:
- 2
- Beds:
- 4
- Baths:
- 3.5
- Garage spaces:
- 2
- HERS index:
- 60
Plan features & finishes
- Garage/Parking:
- GarageAttached Garage
- Interior Features:
- Walk-In ClosetFoyerPantry
- Laundry facilities:
- Utility/Laundry Room
- Property amenities:
- Lanai
- Rooms:
- Flex RoomKitchenPowder RoomGame RoomDining RoomLiving RoomOpen Concept FloorplanPrimary Bedroom Downstairs
- Upgrade Options:
- Tray Ceiling
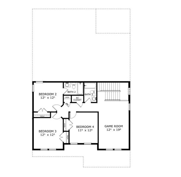
See the full plan layout
Download the floor plan PDF with room dimensions and home design details.

Instant download, no cost

Community details
Courtney Chase at SilverLeaf
by ICI Homes, St. Augustine, FL
- 6 homes
- 11 plans
- 1,872 - 3,234 sqft
View Courtney Chase details
Want to know more about what's around here?
The Santa Cruz - Classic Series | 50' Wide Lots floor plan is part of Courtney Chase, a new home community by ICI Homes, located in St. Augustine, FL. Visit the Courtney Chase community page for full neighborhood insights, including nearby schools, shopping, walk & bike-scores, commuting, air quality & natural hazards.

Available homes in Courtney Chase
- 483 Courtney Chase Dr, St. Augustine, FL 32092

Serena
$705,000
- 5 bd
- 4 ba
- 2,861 sqft
483 Courtney Chase Dr, St. Augustine, FL 32092
- 112 Rose Bud Ln, St. Augustine, FL 32092

Santa Rosa
$715,000
- 4 bd
- 4 ba
- 2,743 sqft
112 Rose Bud Ln, St. Augustine, FL 32092
- 26 Night Owl Ct, St. Augustine, FL 32092

Serena - Classic Series | 50' Wide Lots
$831,436
- 4 bd
- 3 ba
- 2,217 sqft
26 Night Owl Ct, St. Augustine, FL 32092
- 53 Rose Bud Ln, St. Augustine, FL 32092

Costa Mesa - Elite Series | 60' Wide Lots
$835,000
- 4 bd
- 3 ba
- 2,714 sqft
53 Rose Bud Ln, St. Augustine, FL 32092
- 32 Night Owl Ct, St. Augustine, FL 32092

Costa Mesa - Elite Series | 60' Wide Lots
$977,049
- 4 bd
- 3 ba
- 3,123 sqft
32 Night Owl Ct, St. Augustine, FL 32092
More floor plans in Courtney Chase

Aiden - Classic Series | 50' Wide Lots
- 4 bd
- 3 ba
- 2,399 sqft

Mesa Verde - Classic Series | 50' Wide Lots
- 4 bd
- 3 ba
- 2,625 sqft

Santa Rosa - Classic Series | 50' Wide Lots
- 4 bd
- 3.5 ba
- 2,730 sqft

Costa Mesa - Elite Series | 60' Wide Lots
- 4 bd
- 3 ba
- 2,562 sqft

Davenport - Elite Series | 60' Wide Lots
- 4 bd
- 3 ba
- 2,537 sqft

Victoria - Elite Series | 60' Wide Lots
- 4 bd
- 3 ba
- 2,870 sqft

Palos Verdes - Elite Series | 60' Wide Lots
- 4 bd
- 3.5 ba
- 3,196 sqft

Brooklyn - Elite Series | 60' Wide Lots
- 4 bd
- 3 ba
- 3,234 sqft

Considering this plan?
Our expert will guide your tour, in-person or virtual
Need more information?
Text or call (888) 486-2818
Financials
Estimated monthly payment
Similar homes nearby
Recently added communities in this area
Nearby communities in St. Augustine
New homes in nearby cities
More New Homes in St. Augustine, FL
- Jome
- New homes search
- Florida
- Jacksonville Metropolitan Area
- St. Johns County
- St. Augustine
- Courtney Chase
- 26 Night Owl Ct, St. Augustine, FL 32092





















