









Book your tour. Save an average of $18,473. We'll handle the rest.
- Confirmed tours
- Get matched & compare top deals
- Expert help, no pressure
- No added fees
Estimated value based on Jome data, T&C apply
- 4 bd
- 4.5 ba
- 3,999 sqft
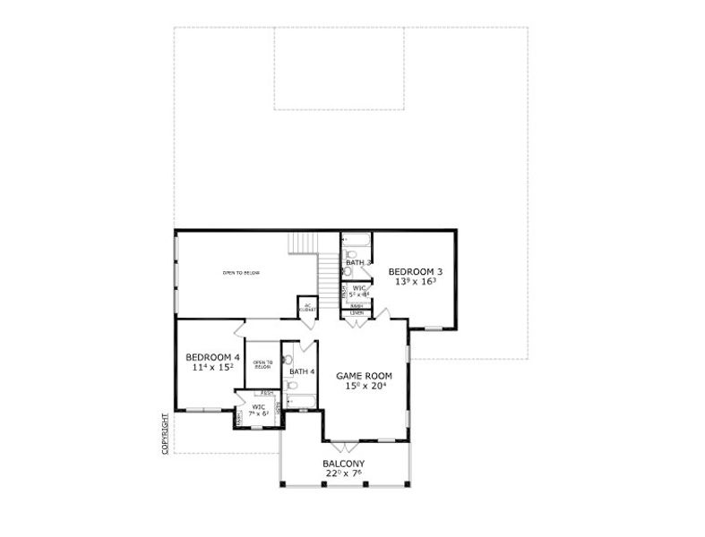
Breckenridge - Pinnacle Series | 80' Wide Lots plan in Courtney Grove by ICI Homes
Visit the community to experience this floor plan
Why tour with Jome?
- No pressure toursTour at your own pace with no sales pressure
- Expert guidanceGet insights from our home buying experts
- Exclusive accessSee homes and deals not available elsewhere
Jome is featured in
Plan description
May also be listed on the ICI Homes website
Information last verified by Jome: Yesterday at 7:16 PM (January 10, 2026)
Plan details
- Name:
- Breckenridge - Pinnacle Series | 80' Wide Lots
- Property status:
- Floor plan
- Lot width (feet):
- 80
- Size:
- 3,999 sqft
- Stories:
- 2
- Beds:
- 4
- Baths:
- 4.5
- Garage spaces:
- 3
- HERS index:
- 63
Plan features & finishes
- Garage/Parking:
- GarageAttached Garage
- Interior Features:
- Walk-In ClosetFoyerPantry
- Laundry facilities:
- Utility/Laundry Room
- Property amenities:
- BalconyButler's PantryLanai
- Rooms:
- Flex RoomKitchenNookPowder RoomGame RoomDining RoomLiving RoomOpen Concept FloorplanPrimary Bedroom Downstairs
- Upgrade Options:
- Tray CeilingPantryExtended GarageOffice/StudyExtra Car GarageBuilt-In Window SeatLaundry SinkOutdoor KitchenExtra Half BathBuilt-in AppliancesButler’s PantrySliding DoorsVaulted CeilingCovered LanaiFireplaceExtended Patio
See the full plan layout
Download the floor plan PDF with room dimensions and home design details.

Instant download, no cost

Community details
Courtney Grove at SilverLeaf
by ICI Homes, St. Augustine, FL
- 3 homes
- 10 plans
- 2,814 - 4,972 sqft
View Courtney Grove details
Want to know more about what's around here?
The Breckenridge - Pinnacle Series | 80' Wide Lots floor plan is part of Courtney Grove, a new home community by ICI Homes, located in St. Augustine, FL. Visit the Courtney Grove community page for full neighborhood insights, including nearby schools, shopping, walk & bike-scores, commuting, air quality & natural hazards.

Available homes in Courtney Grove
- Home at address 85 Courtney Manor Ct, St. Augustine, FL 32092

Brooke - Regency Series | 70' Wide Lots
$886,900
- 5 bd
- 3.5 ba
- 3,828 sqft
85 Courtney Manor Ct, St. Augustine, FL 32092
- Home at address 53 Glenbriar Ct, St. Augustine, FL 32092

Egret VII - Regency Series | 70' Wide Lots
$992,972
- 4 bd
- 3 ba
- 2,843 sqft
53 Glenbriar Ct, St. Augustine, FL 32092
- Home at address 84 Courtney Manor Ct, St. Augustine, FL 32092

Monica - Pinnacle Series | 80' Wide Lots
$1,027,900
- 4 bd
- 4.5 ba
- 3,488 sqft
84 Courtney Manor Ct, St. Augustine, FL 32092
More floor plans in Courtney Grove

Egret VII - Regency Series | 70' Wide Lots
- 4 bd
- 3 ba
- 2,814 sqft

Costa Mesa II - Regency Series | 70' Wide Lots
- 4 bd
- 3 ba
- 2,995 sqft

Egret V - Pinnacle Series | 80' Wide Lots
- 4 bd
- 3 ba
- 3,067 sqft

Brooke - Regency Series | 70' Wide Lots
- 5 bd
- 3.5 ba
- 3,610 sqft

Brooke - Pinnacle Series | 80' Wide Lots
- 5 bd
- 3.5 ba
- 3,610 sqft

Breckenridge - Regency Series | 70' Wide Lots
- 4 bd
- 4.5 ba
- 3,999 sqft

Monica - Pinnacle Series | 80' Wide Lots
- 4 bd
- 4.5 ba
- 3,488 sqft

Augusta - Pinnacle Series | 80' Wide Lots
- 5 bd
- 4 ba
- 4,136 sqft

Aspen - Pinnacle Series | 80' Wide Lots
- 6 bd
- 4.5 ba
- 4,972 sqft

Considering this plan?
Our expert will guide your tour, in-person or virtual
Need more information?
Text or call (888) 486-2818
Financials
Estimated monthly payment
Similar homes nearby
Recently added communities in this area
Nearby communities in St. Augustine
New homes in nearby cities
More New Homes in St. Augustine, FL
- Jome
- New homes search
- Florida
- Jacksonville Metropolitan Area
- St. Johns County
- St. Augustine
- Courtney Grove
- 85 Courtney Manor Ct, St. Augustine, FL 32092

















