








Book your tour. Save an average of $18,473. We'll handle the rest.
We collect exclusive builder offers, book your tours, and support you from start to housewarming.
- Confirmed tours
- Get matched & compare top deals
- Expert help, no pressure
- No added fees
Estimated value based on Jome data, T&C apply








- 4 bd
- 4.5 ba
- 4,230 sqft
536 Rosemary Ridge Dr, Bulverde, TX 78163
Why tour with Jome?
- No pressure toursTour at your own pace with no sales pressure
- Expert guidanceGet insights from our home buying experts
- Exclusive accessSee homes and deals not available elsewhere
Jome is featured in
- Single-Family
- Quick move-in
- $349/sqft
- $975/annual HOA
Home description
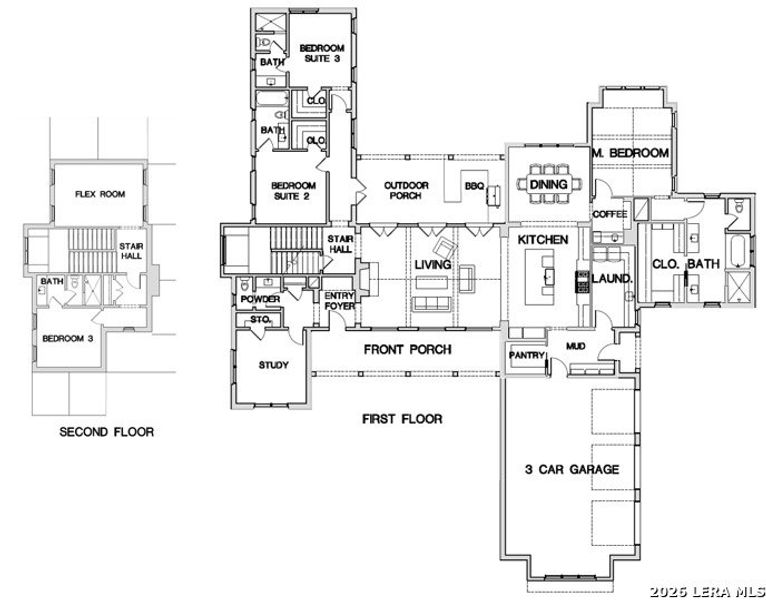
A rare opportunity to own a truly site-specific custom residence by MT Mann & Co., thoughtfully designed to capture sweeping, unrestricted Hill Country views from one of the most desirable ridge line homesites in Belle Oaks on 1.49 acres. Named "Heimstatte at Rosemary Ridge", this residence is designed specifically for this lot-its orientation, massing and composition carefully considered to the land. There will not be another like it. This German-influenced Hill Country home blends timeless materials with refined architectural restraint-featuring cream limestone, clean massing, and authentic craftsman detailing. The architecture is approached holistically, with stunning elevations on all sides-no elevation left behind-ensuring the home presents with equal strength and intention from every vantage point. Deep inset windows and doors create rich shadow lines across the exterior, giving the home a sense of depth, permanence, and quiet sophistication. Positioned to maximize the landscape, the rear of the home features abundant windows and glass doors opening to a terraced landscape, seamlessly connecting indoor living to the surrounding Hill Country terrain. The result is a private, panoramic experience where architecture and land work as one. Inside, the home is centered around a warm, open living environment with vaulted, raised ceilings, timber beams, and abundant natural light. Exterior stone is brought to the inside, accentuating the grand fireplace and opening between the kitchen and family room. The kitchen serves as both functional workspace and visual anchor, complete with custom cabinetry, a large island, and thoughtful detailing that complement the architectural language of the home. The primary suite is privately situated as a quiet retreat, offering generous proportions, a spa-like bath, and a multi-head shower. Secondary bedrooms with en-suite baths are well-appointed for family or guests, while a separate upstairs suite and overlook provide a flexible space for exercise, work, or relaxation-all framed by Texas Hill Country views. Built with stone, stucco and 2X6 wall construction, the home offers enhanced structural integrity, superior insulation, and a level of quiet not typically found in standard construction. Authentic materials-including solid doors, exposed timber brackets, and carefully scaled architectural elements-reinforce the home's commitment to enduring design. Outdoors, a covered patio extends the living space and invites year-round enjoyment of the landscape and sunsets. Pool design is available as an optional addition. Set on a generous homesite within Belle Oaks, residents enjoy access to community amenities including a resort-style pool, clubhouse, pickleball, tennis, and walking trails-all while maintaining the privacy and space that define Hill Country living. This home is offered as a to-be-built residence, providing the opportunity to own a highly refined, architecturally driven home tailored specifically to this 1.49 acre homesite. A model home with similar design language is available for tour in Belle Oaks. This is NOT a production home-it is a carefully composed architectural response to land, place and proportion. Interior features include: high and vaulted ceiling and decorative timber rafters in living and primary suite, open living to kitchen and dining area, large island, coffee bar, walk-in pantry, study/library, mud room w/ built-ins, oversized laundry room, walk-in closets throughout, primary suite w/ sitting area, upstairs suite, upstairs flex room overlooking Hill Country views, stair feature, engineered wood and ceramic/porcelain tile, premium windows and doors, three central heating zones w/ natural gas and more! If you are in the market for a prime Hill Country acreage lot and a luxurious, high-end custom home that is specifically designed for the beautiful piece of land, put 536 Rosemary Ridge on your short list!
Hill Country Flat Fee Realty, MLS 1957153
Information last verified by Jome: Today at 1:00 PM (April 11, 2026)
Book your tour. Save an average of $18,473. We'll handle the rest.
We collect exclusive builder offers, book your tours, and support you from start to housewarming.
- Confirmed tours
- Get matched & compare top deals
- Expert help, no pressure
- No added fees
Estimated value based on Jome data, T&C apply
Home details
- Property status:
- Move-in ready
- Lot size (acres):
- 1.49
- Size:
- 4,230 sqft
- Stories:
- 2
- Beds:
- 4
- Baths:
- 4
- Half baths:
- 1
- Garage spaces:
- 3
Construction details
- Year Built:
- 2026
- Roof:
- Metal Roofing
Home features & finishes
- Cooling:
- Central Air
- Flooring:
- Ceramic FlooringWood FlooringStone FlooringTile Flooring
- Foundation Details:
- Slab
- Garage/Parking:
- Garage
- Property amenities:
- Fireplace
- Rooms:
- Media RoomOffice/StudyFamily Room
Room details
Master Bedroom
Kitchen
Dining Room

Get a consultation with our New Homes Expert
- See how your home builds wealth
- Plan your home-buying roadmap
- Discover hidden gems
Utility information
- Heating:
- Central Heating, Gas Heating
- Utilities:
- Aerobic Septic System
Neighborhood
Home address
Schools in Comal Independent School District
GreatSchools’ Summary Rating calculation is based on 4 of the school’s themed ratings, including test scores, student/academic progress, college readiness, and equity. This information should only be used as a reference. Jome is not affiliated with GreatSchools and does not endorse or guarantee this information. Please reach out to schools directly to verify all information and enrollment eligibility. Data provided by GreatSchools.org © 2025
Places of interest
Getting around
Air quality
Natural hazards risk
Provided by FEMA

Considering this home?
Our expert will guide your tour, in-person or virtual
Need more information?
Text or call (888) 545-5198
Financials
Estimated monthly payment
Let us help you find your dream home
How many bedrooms are you looking for?
Similar homes nearby
Recently added communities in this area
Nearby communities in Bulverde
New homes in nearby cities
More New Homes in Bulverde, TX
Hill Country Flat Fee Realty, MLS 1957153
IDX information is provided exclusively for personal, non-commercial use, and may not be used for any purpose other than to identify prospective properties consumers may be interested in purchasing. Information is deemed reliable but not guaranteed.
Read moreLast checked Apr 11, 1:00 pm
- Jome
- New homes search
- Texas
- Greater San Antonio
- Comal County
- Bulverde
- 536 Rosemary Ridge Dr, Bulverde, TX 78163



























