









Book your tour. Save an average of $18,473. We'll handle the rest.
We collect exclusive builder offers, book your tours, and support you from start to housewarming.
- Confirmed tours
- Get matched & compare top deals
- Expert help, no pressure
- No added fees
Estimated value based on Jome data, T&C apply




































- 4 bd
- 3 ba
- 2,774 sqft
111 Barefoot Bay Blvd, Corsicana, TX 75109
Why tour with Jome?
- No pressure toursTour at your own pace with no sales pressure
- Expert guidanceGet insights from our home buying experts
- Exclusive accessSee homes and deals not available elsewhere
Jome is featured in
- Single-Family
- Quick move-in
- $279.38/sqft
- $1,200/annual HOA
Home description
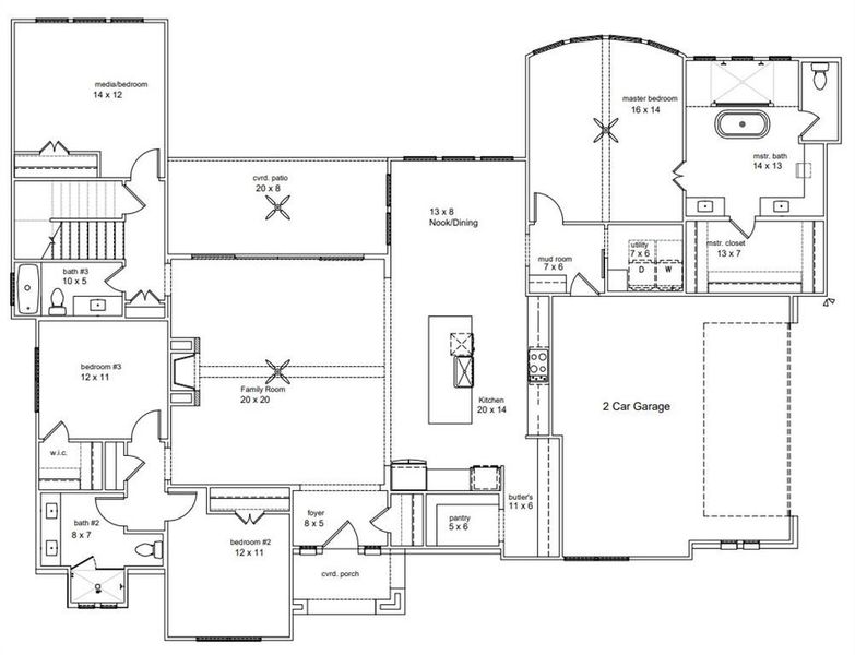
Welcome to this stunning 1.5-story custom home nestled on Halbert Lake in the desirable gated Barefoot Bay community. This beautifully designed residence offers 4 spacious bedrooms (4th bedroom can easily convert into Media room), and 3 full bathrooms.
The heart of the home is the gourmet kitchen, featuring an oversized island with quartz countertops, abundant custom cabinetry, and generous storage throughout. A well-appointed butler’s pantry includes a built-in wine rack and additional pantry space—perfect for entertaining.
The expansive primary suite boasts a bay window and soaring ceilings, creating a bright and airy retreat. The luxurious en-suite bath features dual walk-in showers, his and her vanity, a large walk-in closet with custom cabinetry, and ample shelving for organization.
Additional highlights include a sizable storage area beneath the stairs and an upstairs game room that opens to a large balcony with partial lake views—ideal for enjoying breathtaking sunsets and relaxing evenings.
Residents of Barefoot Bay enjoy access to a clubhouse, fitness center, and a large community pool, perfect for gatherings and recreation.
Plumbing for a gas line is already in place, offering added convenience for future upgrades. The house offers In-wall pest control tubing systems limiting unwanted guests in the house.
Reputed Brokerage, MLS 21217936
Information last verified by Jome: Today at 2:25 AM (April 1, 2026)
Home highlights
Book your tour. Save an average of $18,473. We'll handle the rest.
We collect exclusive builder offers, book your tours, and support you from start to housewarming.
- Confirmed tours
- Get matched & compare top deals
- Expert help, no pressure
- No added fees
Estimated value based on Jome data, T&C apply
Home details
- Property status:
- Move-in ready
- Lot size (acres):
- 1.26
- Size:
- 2,774 sqft
- Stories:
- 1.5
- Beds:
- 4
- Baths:
- 3
- Garage spaces:
- 2
Construction details
- Year Built:
- 2026
- Roof:
- Asphalt Roofing
Home features & finishes
- Appliances:
- Exhaust Fan VentedSprinkler System
- Construction Materials:
- StuccoBrick
- Cooling:
- Ceiling Fan(s)Central Air
- Flooring:
- Ceramic FlooringWood FlooringTile FlooringHardwood Flooring
- Foundation Details:
- Slab
- Garage/Parking:
- Door OpenerGarageSide Entry Garage/ParkingAttached Garage
- Interior Features:
- PantryBay Windows
- Kitchen:
- DishwasherMicrowave OvenOvenWater FilterDisposalElectric CooktopConvection OvenKitchen IslandElectric Oven
- Laundry facilities:
- DryerWasherUtility/Laundry Room
- Property amenities:
- Trees on propertyBalconyBackyardTerracePatioFireplace
- Rooms:
- Family RoomOpen Concept Floorplan
- Security system:
- Smoke DetectorCarbon Monoxide Detector

Get a consultation with our New Homes Expert
- See how your home builds wealth
- Plan your home-buying roadmap
- Discover hidden gems
Utility information
- Heating:
- Electric Heating, Water Heater
- Utilities:
- Electricity Available, City Water System, Individual Water Meter, Aerobic Septic System
Community amenities
- Marina
- Lake Access
- Fitness Center/Exercise Area
- Club House
- Gated Community
- Community Pool
Neighborhood
Home address
Schools in Mildred Independent School District
GreatSchools’ Summary Rating calculation is based on 4 of the school’s themed ratings, including test scores, student/academic progress, college readiness, and equity. This information should only be used as a reference. Jome is not affiliated with GreatSchools and does not endorse or guarantee this information. Please reach out to schools directly to verify all information and enrollment eligibility. Data provided by GreatSchools.org © 2025
Places of interest
Getting around
Natural hazards risk
Provided by FEMA

Considering this home?
Our expert will guide your tour, in-person or virtual
Need more information?
Text or call (888) 545-5198
Financials
Estimated monthly payment
Let us help you find your dream home
How many bedrooms are you looking for?
Similar homes nearby
Recently added communities in this area
Nearby communities in Corsicana
New homes in nearby cities
More New Homes in Corsicana, TX
Reputed Brokerage, MLS 21217936
IDX information is provided exclusively for personal, non-commercial use, and may not be used for any purpose other than to identify prospective properties consumers may be interested in purchasing. You may not reproduce or redistribute this data, it is for viewing purposes only. This data is deemed reliable, but is not guaranteed accurate by the MLS or NTREIS.
Read moreLast checked Mar 31, 10:00 pm
- Jome
- New homes search
- Texas
- Navarro County
- Corsicana
- 111 Barefoot Bay Blvd, Corsicana, TX 75109



















