







Book your tour. Save an average of $18,473. We'll handle the rest.
We collect exclusive builder offers, book your tours, and support you from start to housewarming.
- Confirmed tours
- Get matched & compare top deals
- Expert help, no pressure
- No added fees
Estimated value based on Jome data, T&C apply
























- 4 bd
- 3 ba
- 2,257 sqft
5216 Beck Path, San Antonio, TX 78266
Why tour with Jome?
- No pressure toursTour at your own pace with no sales pressure
- Expert guidanceGet insights from our home buying experts
- Exclusive accessSee homes and deals not available elsewhere
Jome is featured in
- Single-Family
- Quick move-in
- $186.07/sqft
- $750/annual HOA
Home description
About this home
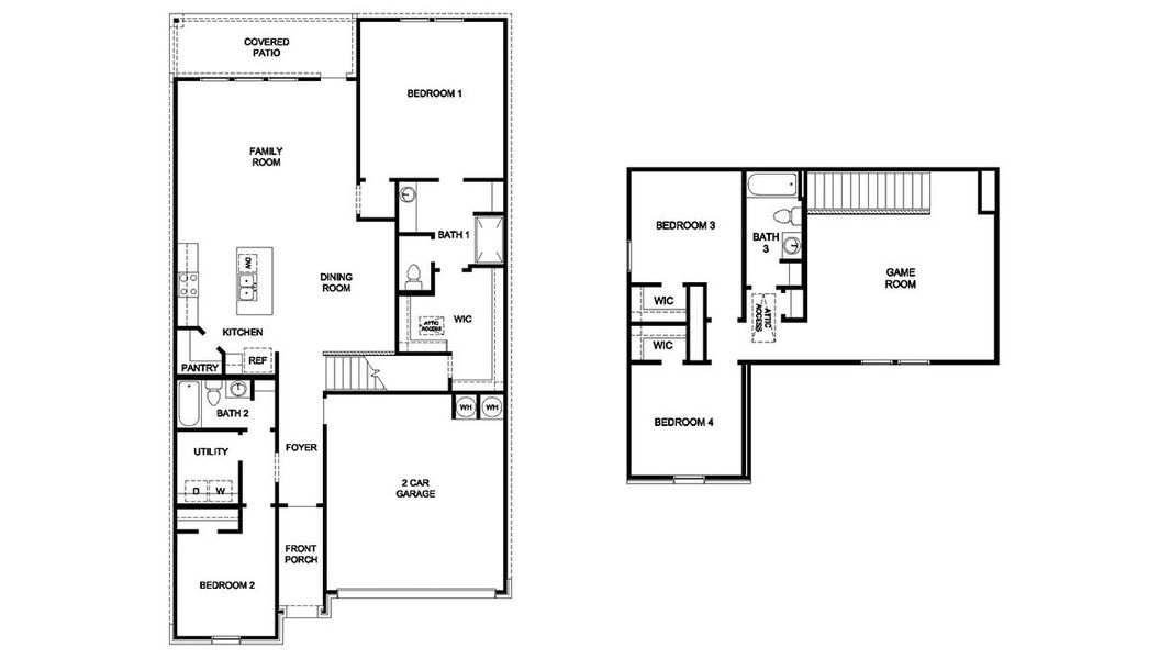
Tour The Mitchell floor plan at Brookstone Creek in San Antonio, TX. This home delivers the space, comfort and flexibility your lifestyle demands - offering 2257 square feet, four bedrooms and 3 full bathrooms across a smart and functional two-story layout. Your new home comes equipped with a full landscaping and irrigation package, ensuring both beauty and curb appeal.
The heart of the home is the open-concept kitchen, dining and living room area where you'll enjoy gathering with family and friends. The kitchen showcases stainless steel appliances, quartz countertops, flat panel cabinetry, an elegant kitchen island with a deep farmhouse-style sink and white subway tile backsplash for a timeless finish.
Your primary bedroom suite is located on the main level and tucked away toward the back of the home for privacy. It includes a spacious, tiled walk-in shower, dual vanity sinks and a walk-in closet. A secondary bedroom and full bath on the first floor offer an ideal setup for guests, a nursery or multi-generational living.
Upstairs, two additional bedrooms are situated alongside a versatile game room, perfect for move nights, study space or a secondary living area. Every bedroom features quality carpet flooring, large windows and ample closet space.
This home includes our HOME IS CONNECTED base package. Using one central hub that talks to all the devices in your home, you can control the lights, thermostat and locks, all from your cellular device.
Additional features include a covered patio (per plan), vinyl plank flooring throughout the main living areas, and a pre-plumbed water softener loop.
Whether hosting guests downstairs or enjoying quiet time upstairs, The Mitchell floor plan offers dynamic spaces and modern finished - right here in beautiful Brookstone Creek.
May also be listed on the D.R. Horton website
Information last verified by Jome: Today at 3:11 AM (May 11, 2026)
Home highlights
Iconic urban riverfront lined with dining, art, festivals and scenic walkable neighborhoods.
Book your tour. Save an average of $18,473. We'll handle the rest.
We collect exclusive builder offers, book your tours, and support you from start to housewarming.
- Confirmed tours
- Get matched & compare top deals
- Expert help, no pressure
- No added fees
Estimated value based on Jome data, T&C apply
Home details
- Property status:
- Move-in ready
- Size:
- 2,257 sqft
- Stories:
- 2
- Beds:
- 4
- Baths:
- 3
- Garage spaces:
- 2
Construction details
- Builder Name:
- D.R. Horton
Home features & finishes
- Garage/Parking:
- GarageAttached Garage
- Interior Features:
- Walk-In ClosetFoyerPantry
- Laundry facilities:
- Utility/Laundry Room
- Property amenities:
- PatioPorch
- Rooms:
- KitchenGame RoomDining RoomFamily RoomOpen Concept FloorplanPrimary Bedroom Downstairs

Get a consultation with our New Homes Expert
- See how your home builds wealth
- Plan your home-buying roadmap
- Discover hidden gems

Community details
Brookstone Creek
by D.R. Horton, San Antonio, TX
- 43 homes
- 24 plans
- 1,297 - 3,532 sqft
View Brookstone Creek details
Community amenities
- Playground
- Fitness Center/Exercise Area
- Club House
- Tennis Courts
- Community Pool
- Basketball Court
- Splash Pad
More homes in Brookstone Creek
- Home at address 21142 Boulder Flts, San Antonio, TX 78266

The Easton
$372,950
- 4 bd
- 2 ba
- 1,680 sqft
21142 Boulder Flts, San Antonio, TX 78266
- Home at address 21014 Gravel Keep, San Antonio, TX 78266

The Gaven
$380,000
- 4 bd
- 2 ba
- 1,778 sqft
21014 Gravel Keep, San Antonio, TX 78266
- Home at address 21137 Boulder Flts, San Antonio, TX 78266

The Gaven
$384,500
- 4 bd
- 2 ba
- 1,778 sqft
21137 Boulder Flts, San Antonio, TX 78266
- Home at address 21161 Boulder Flts, San Antonio, TX 78266

The Harris
$385,000
- 4 bd
- 2.5 ba
- 1,822 sqft
21161 Boulder Flts, San Antonio, TX 78266
- Home at address 21149 Boulder Flts, San Antonio, TX 78266

The Harris
$388,500
- 4 bd
- 2.5 ba
- 1,823 sqft
21149 Boulder Flts, San Antonio, TX 78266
- Home at address 20916 Stonework Spur, San Antonio, TX 78266

The Irvine
$390,950
- 4 bd
- 2 ba
- 1,796 sqft
20916 Stonework Spur, San Antonio, TX 78266
Floor plans in Brookstone Creek
About the builder - D.R. Horton

- 1,147communities on Jome
- 11,148homes on Jome
Neighborhood
Home address
- City:
- San Antonio
- County:
- Bexar
- Zip Code:
- 78266
Schools in East Central Independent School District
- Grades KG-07Privatesalem sayers baptist academy1.5 mi5212 fm 1628na
GreatSchools’ Summary Rating calculation is based on 4 of the school’s themed ratings, including test scores, student/academic progress, college readiness, and equity. This information should only be used as a reference. Jome is not affiliated with GreatSchools and does not endorse or guarantee this information. Please reach out to schools directly to verify all information and enrollment eligibility. Data provided by GreatSchools.org © 2025
Places of interest
Getting around
Air quality
Noise level
A Soundscore™ rating is a number between 50 (very loud) and 100 (very quiet) that tells you how loud a location is due to environmental noise.

Considering this home?
Our expert will guide your tour, in-person or virtual
Need more information?
Text or call (888) 545-5198
Financials
Estimated monthly payment
Let us help you find your dream home
How many bedrooms are you looking for?
Similar homes nearby
Recently added communities in this area
Nearby communities in San Antonio
New homes in nearby cities
More New Homes in San Antonio, TX
- Jome
- New homes search
- Texas
- Greater San Antonio
- Bexar County
- San Antonio
- Brookstone Creek
- 5216 Beck Path, San Antonio, TX 78266































