











Book your tour. Save an average of $18,473. We'll handle the rest.
We collect exclusive builder offers, book your tours, and support you from start to housewarming.
- Confirmed tours
- Get matched & compare top deals
- Expert help, no pressure
- No added fees
Estimated value based on Jome data, T&C apply
Why tour with Jome?
- No pressure toursTour at your own pace with no sales pressure
- Expert guidanceGet insights from our home buying experts
- Exclusive accessSee homes and deals not available elsewhere
Jome is featured in
- Single-Family
- Quick move-in
- $152.79/sqft
- $1,800/annual HOA
Home description
About this home
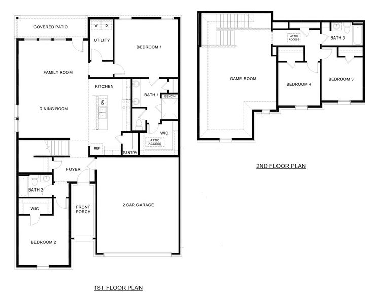
The Alpine is one of our two-story floorplans featured in our Lilybrooke at Legacy Hills in Celina, TX. With two beautiful brick exteriors to choose from, the Alpine is sure to turn heads. To top it off, its one of our floorplans that offers a low E gas filled vinyl windows to help with efficiency. Inside this 4 bedroom, 3 bathroom home, you’ll find approximately 2,575 square feet of comfortable living.
The living area is an open concept, where your kitchen, living, and dining areas blend seamlessly into a space perfect for everyday living and entertaining. The kitchen features cabinets with hidden hinges and crown molding, hard surface countertops, a large island, and stainless steel dishwasher and range, which are sure to both turn heads and make meal prep easy. In every bedroom you’ll have carpeted floors and a closet in each room. Whether these rooms become bedrooms, office spaces, or other bonus rooms, there is sure to be comfort. The primary bedroom has its own attached bathroom that features a walk-in closet and all the space you need to get ready in the morning. Featuring an oversized shower, double sink vanity and name brand laminated wood plank flooring.
May also be listed on the D.R. Horton website
Information last verified by Jome: Today at 12:29 AM (February 27, 2026)
Book your tour. Save an average of $18,473. We'll handle the rest.
We collect exclusive builder offers, book your tours, and support you from start to housewarming.
- Confirmed tours
- Get matched & compare top deals
- Expert help, no pressure
- No added fees
Estimated value based on Jome data, T&C apply
Home details
- Property status:
- Move-in ready
- Size:
- 2,575 sqft
- Stories:
- 2
- Beds:
- 4
- Baths:
- 3
- Garage spaces:
- 2
Construction details
- Builder Name:
- D.R. Horton
Home features & finishes
- Garage/Parking:
- Garage

Get a consultation with our New Homes Expert
- See how your home builds wealth
- Plan your home-buying roadmap
- Discover hidden gems

Community details
Lilybrooke at Legacy Hills at Legacy Hills
by D.R. Horton, Celina, TX
- 14 homes
- 21 plans
- 1,537 - 2,981 sqft
View Lilybrooke at Legacy Hills details
More homes in Lilybrooke at Legacy Hills
- Home at address 2700 Mexia Ln, Celina, TX 75009

Poteet
$355,585
- 4 bd
- 3 ba
- 2,247 sqft
2700 Mexia Ln, Celina, TX 75009
- Home at address 2717 Gladewater Rd, Celina, TX 75009

Selma
$360,585
- 4 bd
- 3 ba
- 2,287 sqft
2717 Gladewater Rd, Celina, TX 75009
- Home at address 2704 Mexia Ln, Celina, TX 75009

Selma
$360,585
- 4 bd
- 3 ba
- 2,307 sqft
2704 Mexia Ln, Celina, TX 75009
- Home at address 2620 Eagle Mountain Wy, Celina, TX 75009

Violet
$369,585
- 4 bd
- 3 ba
- 2,052 sqft
2620 Eagle Mountain Wy, Celina, TX 75009
- Home at address 2708 Mexia Ln, Celina, TX 75009

Owens
$382,585
- 4 bd
- 2 ba
- 2,658 sqft
2708 Mexia Ln, Celina, TX 75009
- Home at address 2636 Gladewater Rd, Celina, TX 75009

Owens
$382,585
- 4 bd
- 2 ba
- 2,619 sqft
2636 Gladewater Rd, Celina, TX 75009
Floor plans in Lilybrooke at Legacy Hills
About the builder - D.R. Horton

- 1,201communities on Jome
- 9,882homes on Jome
Neighborhood
Home address
Schools in Celina Independent School District
- Grades KG-05Publicbobby ray & afton martin elementary2.8 mi2905 n louisiana drna
- Grades M-MPublicnew elementary5.3 mi2120 coventry drna
GreatSchools’ Summary Rating calculation is based on 4 of the school’s themed ratings, including test scores, student/academic progress, college readiness, and equity. This information should only be used as a reference. Jome is not affiliated with GreatSchools and does not endorse or guarantee this information. Please reach out to schools directly to verify all information and enrollment eligibility. Data provided by GreatSchools.org © 2025
Places of interest
Getting around
Air quality

Considering this home?
Our expert will guide your tour, in-person or virtual
Need more information?
Text or call (888) 488-9243
Financials
Estimated monthly payment
Let us help you find your dream home
How many bedrooms are you looking for?
Similar homes nearby
Recently added communities in this area
Nearby communities in Celina
New homes in nearby cities
More New Homes in Celina, TX
- Jome
- New homes search
- Texas
- Dallas-Fort Worth Area
- Collin County
- Celina
- Lilybrooke at Legacy Hills
- 2423 Grapevine Wy, Celina, TX 75009




























