













Book your tour. Save an average of $18,473. We'll handle the rest.
We collect exclusive builder offers, book your tours, and support you from start to housewarming.
- Confirmed tours
- Get matched & compare top deals
- Expert help, no pressure
- No added fees
Estimated value based on Jome data, T&C apply































- 4 bd
- 3 ba
- 2,173 sqft
1733 Leevon Ln, Fort Worth, TX 76140
Why tour with Jome?
- No pressure toursTour at your own pace with no sales pressure
- Expert guidanceGet insights from our home buying experts
- Exclusive accessSee homes and deals not available elsewhere
Jome is featured in
- Single-Family
- Under construction
- $164.04/sqft
- $500/annual HOA
Home description
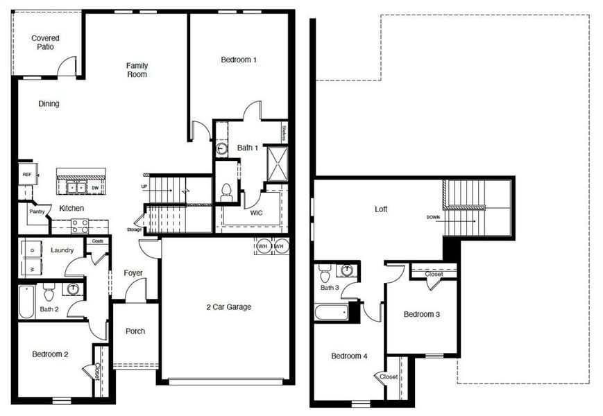
Beautiful new D.R. Horton home in the Meadowbrook Estates located in Cleburne and Cleburne ISD! The two-story Midland Floorplan, Elevation A, with an estimated Spring completion, offers 4 bedrooms, 3 bathrooms, a versatile loft, and a 2-car garage, thoughtfully designed to provide flexible living space for modern lifestyles. The main level features an open-concept layout where the family room, dining area, and contemporary kitchen connect seamlessly, creating an inviting setting for everyday living and entertaining. The kitchen is well-appointed with quartz countertops, 36” painted cabinets with hardware, stainless steel appliances, a gas range, stainless steel sink, center island, and a walk-in pantry for convenient storage. The private primary suite is located on the first floor and includes an en-suite bath with dual quartz vanities, a 5-foot oversized shower, and a walk-in closet located just off the bathroom. A secondary bedroom and full bathroom on the main level provide added flexibility for guests or a home office. Upstairs, a spacious loft offers a second living area, along with two additional bedrooms and a full bathroom featuring a quartz vanity top. Luxury vinyl plank flooring extends throughout the main living areas and wet zones, combining durability with easy maintenance. This home is built with energy-efficient construction and includes America’s Smart Home Technology for modern comfort and everyday convenience. Exterior features include a professional landscape package, full sprinkler system with rain sensor, privacy fencing, and more. Residents of Townes Landing enjoy convenient access to I-35W, making commuting to major employers, shopping, dining, and entertainment a breeze. Downtown Fort Worth is just a short drive away, and DFW International Airport is approximately 30 minutes from your doorstep, placing you right in the heart of Tarrant County living.
Century 21 Mike Bowman, Inc., MLS 21187973
May also be listed on the D.R. Horton website
Information last verified by Jome: Today at 2:01 AM (February 27, 2026)
Home highlights
Book your tour. Save an average of $18,473. We'll handle the rest.
We collect exclusive builder offers, book your tours, and support you from start to housewarming.
- Confirmed tours
- Get matched & compare top deals
- Expert help, no pressure
- No added fees
Estimated value based on Jome data, T&C apply
Home details
- Property status:
- Under construction
- Lot size (acres):
- 0.14
- Size:
- 2,173 sqft
- Stories:
- 2
- Beds:
- 4
- Baths:
- 3
- Garage spaces:
- 2
- Fence:
- Wood Fence
Construction details
- Builder Name:
- D.R. Horton
- Year Built:
- 2026
- Roof:
- Composition Roofing
Home features & finishes
- Appliances:
- Exhaust Fan VentedSprinkler System
- Construction Materials:
- BrickFrame
- Cooling:
- Central Air
- Flooring:
- Vinyl FlooringCarpet Flooring
- Foundation Details:
- Slab
- Garage/Parking:
- GarageFront Entry Garage/ParkingAttached Garage
- Interior Features:
- Walk-In ClosetFoyerPantryWalk-In PantryLoft
- Kitchen:
- DishwasherMicrowave OvenDisposalStainless Steel AppliancesGas CooktopQuartz countertopGranite countertopKitchen IslandGas OvenKitchen Range
- Laundry facilities:
- DryerWasherStackable Washer/DryerUtility/Laundry Room
- Lighting:
- Decorative/Designer Lighting
- Property amenities:
- SidewalkTrees on propertyBackyardLandscapingPatioSmart Home SystemPorch
- Rooms:
- Primary Bedroom On MainKitchenDining RoomFamily RoomOpen Concept FloorplanPrimary Bedroom Downstairs
- Security system:
- Smoke Detector

Get a consultation with our New Homes Expert
- See how your home builds wealth
- Plan your home-buying roadmap
- Discover hidden gems
Utility information
- Heating:
- Water Heater, Central Heating, Gas Heating, Tankless water heater
- Utilities:
- Electricity Available, Natural Gas Available, Underground Utilities, Phone Available, City Water System, Cable Available, Sewer Available, Individual Water Meter, Individual Gas Meter, High Speed Internet Access, Cable TV, Curbs

Community details
Townes Landing
by D.R. Horton, Fort Worth, TX
- 9 homes
- 16 plans
- 1,195 - 2,339 sqft
View Townes Landing details
Community amenities
- Sidewalks Available
More homes in Townes Landing
- Home at address 1513 Orange Tree Dr, Fort Worth, TX 76140

Bailey
$303,990
- 5 bd
- 2 ba
- 1,883 sqft
1513 Orange Tree Dr, Fort Worth, TX 76140
- Home at address 1401 Orange Tree Dr, Fort Worth, TX 76140

Bailey
$306,990
- 5 bd
- 2 ba
- 1,875 sqft
1401 Orange Tree Dr, Fort Worth, TX 76140
- Home at address 1753 Leevon Ln, Fort Worth, TX 76140

Texas cali
$317,685
- 4 bd
- 2 ba
- 1,791 sqft
1753 Leevon Ln, Fort Worth, TX 76140
- Home at address 1501 Orange Tree Dr, Fort Worth, TX 76140

CALLAHAN
$321,990
- 5 bd
- 2.5 ba
- 2,236 sqft
1501 Orange Tree Dr, Fort Worth, TX 76140
- Home at address 1749 Leevon Ln, Fort Worth, TX 76140

Justin
$322,685
- 4 bd
- 2 ba
- 1,834 sqft
1749 Leevon Ln, Fort Worth, TX 76140
- Home at address 1721 Leevon Ln, Fort Worth, TX 76140

Kingston
$334,685
- 4 bd
- 2 ba
- 2,034 sqft
1721 Leevon Ln, Fort Worth, TX 76140
Floor plans in Townes Landing
About the builder - D.R. Horton

- 1,201communities on Jome
- 9,882homes on Jome
Neighborhood
Home address
- City:
- Fort Worth
- County:
- Tarrant
- Zip Code:
- 76140
Schools in Everman Independent School District
GreatSchools’ Summary Rating calculation is based on 4 of the school’s themed ratings, including test scores, student/academic progress, college readiness, and equity. This information should only be used as a reference. Jome is not affiliated with GreatSchools and does not endorse or guarantee this information. Please reach out to schools directly to verify all information and enrollment eligibility. Data provided by GreatSchools.org © 2025
Places of interest
Getting around
Air quality
Noise level
A Soundscore™ rating is a number between 50 (very loud) and 100 (very quiet) that tells you how loud a location is due to environmental noise.

Considering this home?
Our expert will guide your tour, in-person or virtual
Need more information?
Text or call (888) 488-9243
Financials
Estimated monthly payment
Let us help you find your dream home
How many bedrooms are you looking for?
Similar homes nearby
Recently added communities in this area
Nearby communities in Fort Worth
New homes in nearby cities
More New Homes in Fort Worth, TX
Century 21 Mike Bowman, Inc., MLS 21187973
IDX information is provided exclusively for personal, non-commercial use, and may not be used for any purpose other than to identify prospective properties consumers may be interested in purchasing. You may not reproduce or redistribute this data, it is for viewing purposes only. This data is deemed reliable, but is not guaranteed accurate by the MLS or NTREIS.
Read moreLast checked Feb 27, 4:00 pm
- Jome
- New homes search
- Texas
- Dallas-Fort Worth Area
- Tarrant County
- Fort Worth
- Townes Landing
- 1733 Leevon Ln, Fort Worth, TX 76140

































