






Book your tour. Save an average of $18,473. We'll handle the rest.
We collect exclusive builder offers, book your tours, and support you from start to housewarming.
- Confirmed tours
- Get matched & compare top deals
- Expert help, no pressure
- No added fees
Estimated value based on Jome data, T&C apply





Why tour with Jome?
- No pressure toursTour at your own pace with no sales pressure
- Expert guidanceGet insights from our home buying experts
- Exclusive accessSee homes and deals not available elsewhere
Jome is featured in
- Single-Family
- Quick move-in
- $216.07/sqft
- $780/annual HOA
Home description
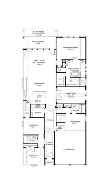
Extended entry with 13-foot ceiling leads to open kitchen, dining area and family room. Kitchen offers generous counter space, a 5-burner gas cooktop, corner walk-in pantry and inviting island with built-in seating space. Dining area flows into family room with wall of windows and a wood mantel fireplace. Game room with French doors just across from kitchen. Primary suite includes double-door entry to primary bath with dual vanities, a freestanding tub, separate glass-enclosed shower and two large walk-in closets. Secondary bedrooms feature walk-in closets. Covered backyard patio. Mud room off two-car garage.
Perry Homes Realty LLC, MLS 21230644
May also be listed on the Perry Homes website
Information last verified by Jome: Today at 1:32 AM (April 17, 2026)
Home highlights
Peaceful Dallas lake with trails, birdwatching, and historic neighborhoods just minutes from the city center.
Book your tour. Save an average of $18,473. We'll handle the rest.
We collect exclusive builder offers, book your tours, and support you from start to housewarming.
- Confirmed tours
- Get matched & compare top deals
- Expert help, no pressure
- No added fees
Estimated value based on Jome data, T&C apply
Home details
- Property status:
- Move-in ready
- Collection:
- Meraki 50'
- Lot size (acres):
- 0.17
- Lot width (feet):
- 50
- Size:
- 2,545 sqft
- Stories:
- 1
- Beds:
- 4
- Baths:
- 3
- Garage spaces:
- 2
- Fence:
- Wood Fence
Construction details
- Builder Name:
- Perry Homes
- Completion Date:
- May, 2026
- Year Built:
- 2026
- Roof:
- Roof Gutter, Composition Roofing
Home features & finishes
- Appliances:
- Sprinkler System
- Construction Materials:
- Brick
- Cooling:
- Central Air
- Flooring:
- Ceramic FlooringCarpet FlooringTile Flooring
- Foundation Details:
- Slab
- Garage/Parking:
- Door OpenerGarageFront Entry Garage/ParkingAttached Garage
- Home amenities:
- Green Construction
- Interior Features:
- Walk-In ClosetPantry
- Kitchen:
- DishwasherMicrowave OvenDisposalGas CooktopKitchen IslandElectric Oven
- Laundry facilities:
- Utility/Laundry Room
- Lighting:
- Exterior LightingDecorative/Designer Lighting
- Property amenities:
- Gas Log FireplaceBackyardPatioFireplaceSmart Home SystemPorch
- Rooms:
- Primary Bedroom On MainKitchenMudroomDining RoomFamily RoomOpen Concept FloorplanPrimary Bedroom Downstairs
- Security system:
- Fire Alarm SystemSmoke DetectorCarbon Monoxide Detector

Get a consultation with our New Homes Expert
- See how your home builds wealth
- Plan your home-buying roadmap
- Discover hidden gems
Utility information
- Heating:
- Central Heating
- Utilities:
- High Speed Internet Access, Cable TV, Curbs

Community details
Meraki at Meraki
by Perry Homes, Forney, TX
- 19 homes
- 31 plans
- 1,910 - 3,553 sqft
View Meraki details
More homes in Meraki
- Home at address 2646 Brooklyn St, Forney, TX 75126

1942W
Meraki 45'
$402,900
- 4 bd
- 3 ba
- 1,942 sqft
2646 Brooklyn St, Forney, TX 75126
- Home at address 2636 Brooklyn St, Forney, TX 75126

2049W
Meraki 45'
$450,900
- 4 bd
- 3 ba
- 2,049 sqft
2636 Brooklyn St, Forney, TX 75126
- Home at address 2817 Standing Cypress St, Forney, TX 75126

2049W
Meraki 45'
$474,900
- 4 bd
- 3 ba
- 2,049 sqft
2817 Standing Cypress St, Forney, TX 75126
- Home at address 2649 Brooklyn St, Forney, TX 75126

1992W
Meraki 45'
$474,900
- 4 bd
- 2.5 ba
- 1,992 sqft
2649 Brooklyn St, Forney, TX 75126
- Home at address 2643 Brooklyn St, Forney, TX 75126

2594W
Meraki 45'
$499,900
- 4 bd
- 3 ba
- 2,594 sqft
2643 Brooklyn St, Forney, TX 75126
- Home at address 2215 Prickly Cactus St, Forney, TX 75126

2504W
Meraki 50'
$499,900
- 4 bd
- 3 ba
- 2,504 sqft
2215 Prickly Cactus St, Forney, TX 75126
Floor plans in Meraki
About the builder - Perry Homes

- 391communities on Jome
- 1,600homes on Jome
Neighborhood
Home address
Schools in Forney Independent School District
- Grades 09-12Publicforney learning academy2.4 mi600 s bois d arc stna
- Grades KG-04Publicdewberry elementary2.7 mi6800 falcon wayna
GreatSchools’ Summary Rating calculation is based on 4 of the school’s themed ratings, including test scores, student/academic progress, college readiness, and equity. This information should only be used as a reference. Jome is not affiliated with GreatSchools and does not endorse or guarantee this information. Please reach out to schools directly to verify all information and enrollment eligibility. Data provided by GreatSchools.org © 2025
Places of interest
Getting around
Air quality

Considering this home?
Our expert will guide your tour, in-person or virtual
Need more information?
Text or call (888) 545-5198
Financials
Estimated monthly payment
Let us help you find your dream home
How many bedrooms are you looking for?
Similar homes nearby
Recently added communities in this area
Nearby communities in Forney
New homes in nearby cities
More New Homes in Forney, TX
Perry Homes Realty LLC, MLS 21230644
IDX information is provided exclusively for personal, non-commercial use, and may not be used for any purpose other than to identify prospective properties consumers may be interested in purchasing. You may not reproduce or redistribute this data, it is for viewing purposes only. This data is deemed reliable, but is not guaranteed accurate by the MLS or NTREIS.
Read moreLast checked Apr 17, 4:00 am
- Jome
- New homes search
- Texas
- Dallas-Fort Worth Area
- Kaufman County
- Forney
- Meraki
- Meraki 50'
- 2212 Prickly Cactus St, Forney, TX 75126





























