



Book your tour. Save an average of $18,473. We'll handle the rest.
- Confirmed tours
- Get matched & compare top deals
- Expert help, no pressure
- No added fees
Estimated value based on Jome data, T&C apply
- 4 bd
- 2.5 ba
- 2,378 sqft
3420 Spur Run, Sherman, TX 75090
Why tour with Jome?
- No pressure toursTour at your own pace with no sales pressure
- Expert guidanceGet insights from our home buying experts
- Exclusive accessSee homes and deals not available elsewhere
Jome is featured in
- Single-Family
- Quick move-in
- $132.67/sqft
- $50/monthly HOA
Home description
About this home
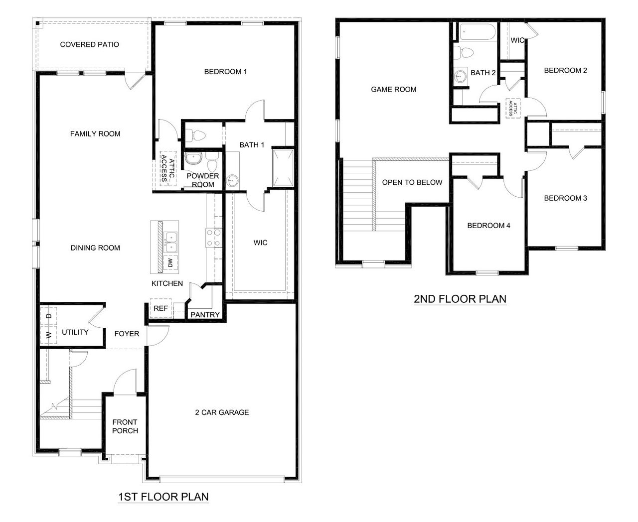
The Peterson plan at Sweetwater Springs in Sherman, TX, is an expansive and versatile two-story home, offering 2,378 square feet of thoughtfully designed living space. This plan features four bedrooms, 3 bathrooms and a game room, making it ideal for families or roomates who need both ample space and a variety of functional areas.
The primary suite is conveniently located on the first floor, while the three additional bedrooms are upstairs, providing a balanced layout that caters to both privacy and communal living. This plan includes a private retreat with a spacious bedroom, a large walk-in closet, and a luxurious ensuite bathroom with hard surface vanity tops. The Peterson plan kitchen is designed with family life and entertaining in mind, featuring name brand stainless steel range and dishwasher, quality cabinetry with hidden hinges, and hard surface countertops. It seamlessly connects to the dining area and family room, ensuring that the main living spaces are open and inviting. Upstairs, the Peterson plan offers three well-sized bedrooms and the game room, providing a perfect space for children, roomates or guests.
The inclusion of a half-bath downstairs in the Peterson plan adds an extra layer of convenience, especially for entertaining guests. A covered patio and a two-car garage make it particularly appealing for those who need extra space for tools, play, and relaxation. In summary, the Peterson plan is an excellent choice for those who need a versatile home with dedicated spaces for entertaining and rest.
May also be listed on the D.R. Horton website
Information last verified by Jome: Today at 3:21 AM (February 5, 2026)
Book your tour. Save an average of $18,473. We'll handle the rest.
We collect exclusive builder offers, book your tours, and support you from start to housewarming.
- Confirmed tours
- Get matched & compare top deals
- Expert help, no pressure
- No added fees
Estimated value based on Jome data, T&C apply
Home details
- Property status:
- Move-in ready
- Size:
- 2,378 sqft
- Stories:
- 2
- Beds:
- 4
- Baths:
- 2.5
- Garage spaces:
- 2
Construction details
- Builder Name:
- D.R. Horton
Home features & finishes
- Garage/Parking:
- GarageAttached Garage
- Interior Features:
- Walk-In ClosetFoyerPantry
- Laundry facilities:
- Utility/Laundry Room
- Property amenities:
- PatioPorch
- Rooms:
- KitchenPowder RoomGame RoomDining RoomFamily RoomOpen Concept FloorplanPrimary Bedroom Downstairs

Get a consultation with our New Homes Expert
- See how your home builds wealth
- Plan your home-buying roadmap
- Discover hidden gems

Community details
Sweetwater Springs
by D.R. Horton, Sherman, TX
- 17 homes
- 7 plans
- 1,329 - 2,378 sqft
View Sweetwater Springs details
More homes in Sweetwater Springs
- Home at address 4514 Carnation Dr, Sherman, TX 75090

Evans
$280,990
- 4 bd
- 2.5 ba
- 1,727 sqft
4514 Carnation Dr, Sherman, TX 75090
- Home at address 3421 Tomahawk Dr, Sherman, TX 75090

Evans
$282,490
- 4 bd
- 2.5 ba
- 1,727 sqft
3421 Tomahawk Dr, Sherman, TX 75090
- Home at address 3414 Tomahawk Dr, Sherman, TX 75090

X35H Harrison
$283,610
- 4 bd
- 2.5 ba
- 1,876 sqft
3414 Tomahawk Dr, Sherman, TX 75090
- Home at address 4412 Carnation Dr, Sherman, TX 75090

Evans
$284,990
- 4 bd
- 2.5 ba
- 1,727 sqft
4412 Carnation Dr, Sherman, TX 75090
- Home at address 3427 Spur Run, Sherman, TX 75090

Harrison
$285,490
- 4 bd
- 2.5 ba
- 1,876 sqft
3427 Spur Run, Sherman, TX 75090
- Home at address 4600 Carnation Dr, Sherman, TX 75090

Harrison
$287,990
- 4 bd
- 2.5 ba
- 1,876 sqft
4600 Carnation Dr, Sherman, TX 75090
Floor plans in Sweetwater Springs
About the builder - D.R. Horton

- 1,201communities on Jome
- 9,391homes on Jome
Neighborhood
Home address
Schools in Sherman Independent School District
GreatSchools’ Summary Rating calculation is based on 4 of the school’s themed ratings, including test scores, student/academic progress, college readiness, and equity. This information should only be used as a reference. Jome is not affiliated with GreatSchools and does not endorse or guarantee this information. Please reach out to schools directly to verify all information and enrollment eligibility. Data provided by GreatSchools.org © 2025
Getting around
Noise level
A Soundscore™ rating is a number between 50 (very loud) and 100 (very quiet) that tells you how loud a location is due to environmental noise.

Considering this home?
Our expert will guide your tour, in-person or virtual
Need more information?
Text or call (888) 486-2818
Financials
Estimated monthly payment
Let us help you find your dream home
How many bedrooms are you looking for?
Similar homes nearby
Recently added communities in this area
Nearby communities in Sherman
New homes in nearby cities
More New Homes in Sherman, TX
- Jome
- New homes search
- Texas
- Dallas-Fort Worth Area
- Grayson County
- Sherman
- Sweetwater Springs
- 3420 Spur Run, Sherman, TX 75090






























