

Book your tour. Save an average of $18,473. We'll handle the rest.
- Confirmed tours
- Get matched & compare top deals
- Expert help, no pressure
- No added fees
Estimated value based on Jome data, T&C apply
- 3 bd
- 2 ba
- 1,621 sqft
9353 Subjeck Wy, Fort Worth, TX 76108
Why tour with Jome?
- No pressure toursTour at your own pace with no sales pressure
- Expert guidanceGet insights from our home buying experts
- Exclusive accessSee homes and deals not available elsewhere
Jome is featured in
- Single-Family
- Quick move-in
- $215.1/sqft
- $704/annual HOA
Home description
About this home
9353 Subjeck Way, Fort Worth, Texas, is a new home built by D.R. Horton in the Highlands at Chapel Creek community.
Estimated completion: Winter 2026.
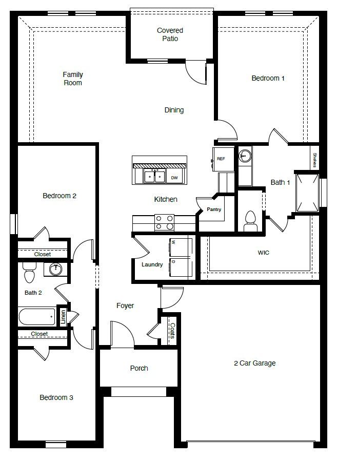
The Denton is a well-planned single-story home offering approximately 1,621 sq. ft. of living space with 3 bedrooms, 2 bathrooms, and a 2-car garage, designed to maximize comfort and everyday functionality. A covered front porch and welcoming foyer lead into an open concept living area where the kitchen, dining space, and family room connect seamlessly to create a bright and inviting central gathering space. The kitchen features stainless steel appliances, ample cabinet storage, a pantry, and a centrally located sink overlooking the dining and family areas—ideal for both daily living and entertaining. The private primary suite is positioned toward the rear of the home and includes a walk-in closet and an ensuite bathroom. Two secondary bedrooms are located along a separate hallway with convenient access to a full bathroom, providing flexibility for guests, family members, or a home office. A dedicated laundry room and direct access to the two-car garage add everyday convenience, while the covered patio offers a comfortable outdoor retreat. With its efficient layout, open living spaces, and thoughtful design, the Denton delivers comfortable single-story living with modern appeal.
May also be listed on the D.R. Horton website
Information last verified by Jome: Today at 3:29 AM (December 31, 2025)
Home highlights
Book your tour. Save an average of $18,473. We'll handle the rest.
We collect exclusive builder offers, book your tours, and support you from start to housewarming.
- Confirmed tours
- Get matched & compare top deals
- Expert help, no pressure
- No added fees
Estimated value based on Jome data, T&C apply
Home details
- Property status:
- Move-in ready
- Size:
- 1,621 sqft
- Stories:
- 1
- Beds:
- 3
- Baths:
- 2
- Garage spaces:
- 2
Construction details
- Builder Name:
- D.R. Horton
Home features & finishes
- Garage/Parking:
- GarageAttached Garage
- Interior Features:
- Walk-In ClosetFoyerPantry
- Laundry facilities:
- Utility/Laundry Room
- Property amenities:
- PatioPorch
- Rooms:
- Primary Bedroom On MainKitchenDining RoomFamily RoomOpen Concept FloorplanPrimary Bedroom Downstairs

Get a consultation with our New Homes Expert
- See how your home builds wealth
- Plan your home-buying roadmap
- Discover hidden gems

Community details
Highlands at Chapel Creek
by D.R. Horton, Fort Worth, TX
- 16 homes
- 17 plans
- 1,364 - 2,376 sqft
View Highlands at Chapel Creek details
More homes in Highlands at Chapel Creek
Floor plans in Highlands at Chapel Creek
About the builder - D.R. Horton
Neighborhood
Home address
- City:
- Fort Worth
- County:
- Tarrant
- Zip Code:
- 76108
Schools in White Settlement Independent School District
GreatSchools’ Summary Rating calculation is based on 4 of the school’s themed ratings, including test scores, student/academic progress, college readiness, and equity. This information should only be used as a reference. Jome is not affiliated with GreatSchools and does not endorse or guarantee this information. Please reach out to schools directly to verify all information and enrollment eligibility. Data provided by GreatSchools.org © 2025
Places of interest
Getting around
2 nearby routes: 2 bus, 0 rail, 0 otherAir quality
Noise level
A Soundscore™ rating is a number between 50 (very loud) and 100 (very quiet) that tells you how loud a location is due to environmental noise.
Natural hazards risk
Climate hazards can impact homes and communities, with risks varying by location. These scores reflect the potential impact of natural disasters and climate-related risks on Tarrant County
Provided by FEMA

Considering this home?
Our expert will guide your tour, in-person or virtual
Need more information?
Text or call (888) 486-2818
Financials
Estimated monthly payment
Let us help you find your dream home
How many bedrooms are you looking for?
Similar homes nearby
Recently added communities in this area
Nearby communities in Fort Worth
New homes in nearby cities
More New Homes in Fort Worth, TX
- Jome
- New homes search
- Texas
- Dallas-Fort Worth Area
- Tarrant County
- Fort Worth
- Highlands at Chapel Creek
- 9353 Subjeck Wy, Fort Worth, TX 76108





































