








Book your tour. Save an average of $18,473. We'll handle the rest.
We collect exclusive builder offers, book your tours, and support you from start to housewarming.
- Confirmed tours
- Get matched & compare top deals
- Expert help, no pressure
- No added fees
Estimated value based on Jome data, T&C apply















- 3 bd
- 2.5 ba
- 1,479 sqft
165 Calcite Rd, Unit 2, Kyle, TX 78640
Why tour with Jome?
- No pressure toursTour at your own pace with no sales pressure
- Expert guidanceGet insights from our home buying experts
- Exclusive accessSee homes and deals not available elsewhere
Jome is featured in
- Townhouse
- Quick move-in
- $169.03/sqft
- $58/monthly HOA
Home description
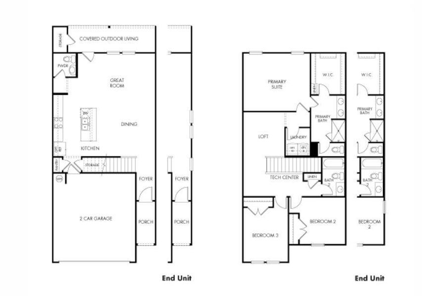
Brand new, energy-efficient home available NOW! The expansive upstairs loft is perfect for hosting game nights. Retreat to the downstairs primary suite when you need quiet space. Espresso cabinets with cream/black granite countertops, smoky oak EVP flooring and warm grey carpet in our Crisp package. Waterstone Village is a beautiful townhome community now selling in Kyle, TX, just 25 miles south of Austin and eight miles north of San Marcos in the celebrated Hays CISD. Explore shopping, restaurants, and entertainment located at Kyle Marketplace, Kyle Crossing, and the San Marcos Premium Outlets. There is no shortage of activities for the outdoor lover. Spend the day fishing at Lake Kyle or enjoy a round of golf at Plum Creek Golf Course. Each of our homes is built with innovative, energy-efficient features designed to help you enjoy more savings, better health, real comfort and peace of mind.
Meritage Homes Realty, MLS 7735273
May also be listed on the Meritage Homes website
Information last verified by Jome: Today at 6:17 AM (April 9, 2026)
Home highlights
Expansive Austin greenbelt with hiking, swimming holes, and limestone cliffs tucked amid Hill Country suburbs.
Book your tour. Save an average of $18,473. We'll handle the rest.
We collect exclusive builder offers, book your tours, and support you from start to housewarming.
- Confirmed tours
- Get matched & compare top deals
- Expert help, no pressure
- No added fees
Estimated value based on Jome data, T&C apply
Home details
- Property status:
- Move-in ready
- Lot size (acres):
- 0.07
- Size:
- 1,479 sqft
- Stories:
- 2
- Beds:
- 3
- Baths:
- 2
- Half baths:
- 1
- Garage spaces:
- 2
- Facing direction:
- South

Floor plan details
The Zilker (174)
- 3 bd
- 2.5 ba
- 1,754 sqft
View The Zilker (174) details
Construction details
- Builder Name:
- Meritage Homes
- Year Built:
- 2025
- Roof:
- Shingle Roofing
Home features & finishes
- Cooling:
- Central Air
- Flooring:
- Vinyl FlooringCarpet Flooring
- Foundation Details:
- Slab
- Garage/Parking:
- GarageAttached Garage
- Home amenities:
- Green Construction
- Interior Features:
- Walk-In ClosetFoyerPantryBlindsLoft
- Kitchen:
- DishwasherRefrigeratorKitchen Island
- Laundry facilities:
- Laundry Facilities On Upper LevelDryerWasherUtility/Laundry Room
- Lighting:
- Lighting
- Property amenities:
- BackyardCovered Outdoor LivingYardSmart Home SystemPorch
- Rooms:
- AtticKitchenPowder RoomDining RoomFamily RoomOpen Concept FloorplanPrimary Bedroom Upstairs
- Security system:
- Fire Sprinkler System

Get a consultation with our New Homes Expert
- See how your home builds wealth
- Plan your home-buying roadmap
- Discover hidden gems
Utility information
- Heating:
- Thermostat, Central Heating
- Sewer:
- Public Sewer
- Utilities:
- HVAC, Water Available
- Water source:
- Public

Community details
Waterstone Village
by Meritage Homes, Kyle, TX
- 23 homes
- 1,479 - 2,122 sqft
View Waterstone Village details
Community amenities
- Energy Efficient
- Community Pool
- Waterfront View
More homes in Waterstone Village
- Home at address 164 Texas Agate Dr, Unit 4, Kyle, TX 78640

The Zilker (174)
Savings$219,000
- 3 bd
- 2.5 ba
- 1,750 sqft
164 Texas Agate Dr, Unit 4, Kyle, TX 78640
- Home at address 165 Cinnabar Ln, Unit 2, Kyle, TX 78640

The Barton (147)
Savings$239,990
- 3 bd
- 2.5 ba
- 1,479 sqft
165 Cinnabar Ln, Unit 2, Kyle, TX 78640
- Home at address 165 Cinnabar Ln, Unit 3, Kyle, TX 78640

The Barton (147)
Savings$239,990
- 3 bd
- 2.5 ba
- 1,479 sqft
165 Cinnabar Ln, Unit 3, Kyle, TX 78640
- Home at address 164 Cinnabar Ln, Unit 3, Kyle, TX 78640

The Barton (147)
Savings$244,990
- 3 bd
- 2.5 ba
- 1,479 sqft
164 Cinnabar Ln, Unit 3, Kyle, TX 78640
- Home at address 164 Cinnabar Ln, Unit 4, Kyle, TX 78640

The Barton (147)
Savings$245,990
- 3 bd
- 2.5 ba
- 1,479 sqft
164 Cinnabar Ln, Unit 4, Kyle, TX 78640
- Home at address 165 Cinnabar Ln, Unit 4, Kyle, TX 78640

The Waterloo (175)
Savings$249,990
- 3 bd
- 2.5 ba
- 1,755 sqft
165 Cinnabar Ln, Unit 4, Kyle, TX 78640
About the builder - Meritage Homes

- 317communities on Jome
- 2,473homes on Jome
Neighborhood
Home address
Schools in Hays Consolidated Independent School District
GreatSchools’ Summary Rating calculation is based on 4 of the school’s themed ratings, including test scores, student/academic progress, college readiness, and equity. This information should only be used as a reference. Jome is not affiliated with GreatSchools and does not endorse or guarantee this information. Please reach out to schools directly to verify all information and enrollment eligibility. Data provided by GreatSchools.org © 2025
Places of interest
Getting around
Air quality
Noise level
A Soundscore™ rating is a number between 50 (very loud) and 100 (very quiet) that tells you how loud a location is due to environmental noise.

Considering this home?
Our expert will guide your tour, in-person or virtual
Need more information?
Text or call (888) 545-5198
Financials
Estimated monthly payment
Let us help you find your dream home
How many bedrooms are you looking for?
Similar homes nearby
Recently added communities in this area
Nearby communities in Kyle
New homes in nearby cities
More New Homes in Kyle, TX
Meritage Homes Realty, MLS 7735273
Based on information from the Austin Board of REALTORS® (alternatively, from ACTRIS) for the period through 08/13/2024. Neither the Board nor ACTRIS guarantees or is in any way responsible for its accuracy. All data is provided “AS IS” and with all faults. Data maintained by the Board or ACTRIS may not reflect all real estate activity in the market. Information being provided is for consumers’ personal, non-commercial use and may not be used for any purpose other than to identify prospective properties consumers may be interested in purchasing. The Digital Millennium Copyright Act of 1998, 17 U.S.C. § 512 (the “DMCA”) provides recourse for copyright owners who believe that material appearing on the Internet infringes their rights under U.S. copyright law. If you believe in good faith that any content or material made available in connection with our website or services infringes your copyright, you (or your agent) may send us a notice requesting that the content or material be removed, or access to it blocked. Notices must be sent in writing by email to DMCAnotice@MLSGrid.com. The DMCA requires that your notice of alleged copyright infringement include the following information: (1) description of the copyrighted work that is the subject of claimed infringement; (2) description of the alleged infringing content and information sufficient to permit us to locate the content; (3) contact information for you, including your address, telephone number and email address; (4) a statement by you that you have a good faith belief that the content in the manner complained of is not authorized by the copyright owner, or its agent, or by the operation of any law; (5) a statement by you, signed under penalty of perjury, that the information in the notification is accurate and that you have the authority to enforce the copyrights that are claimed to be infringed; and (6) a physical or electronic signature of the copyright owner or a person authorized to act on the copyright owner’s behalf. Failure to include all of the above information may result in the delay of the processing of your complaint.
Read moreLast checked Apr 9, 12:40 pm
- Jome
- New homes search
- Texas
- Greater Austin Area
- Hays County
- Kyle
- Waterstone Village
- 165 Calcite Rd, Unit 2, Kyle, TX 78640


























