












































- 4 bd
- 2.5 ba
- 2,408 sqft
1801 Rockview Dr, Granbury, TX 76049
- Single-Family
- $207.23/sqft
- Northwest facing
- 0.31-acre lot
New Homes for Sale Near 1801 Rockview Dr, Granbury, TX 76049
About this Home
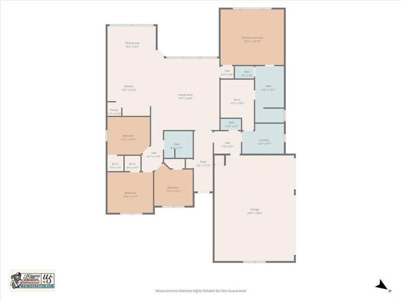
Custom Home in an excellent location on the Granbury Golf Course. This 4 bed 2.5 bath 3 car garage home sits on the Granbury Country Club Golf Course on a large lot with custom landscaping and large backyard. It features modern layout and design, open concept, wood-look tile throughout, custom stained beams and cabinetry, large kitchen island, chef's kitchen, custom built-ins in the living room for extra storage, large master with custom en suite that features duel sinks and showers, a huge master closet that connects to the custom laundry and mud room, spacious spare bed rooms, a spare bath with dual sinks, granite everywhere and modern paint scheme throughout. Built with efficiency in mind with features like foam insulation, Trane HVAC, SS Energy Star appliances, efficient WH, double-paned windows, and foam cap attic space which all means huge savings on utility bills. Located close to shopping and entertainment and you can walk right on to the golf course. Come see this custom gem while you still can!
Elevate Realty Group, MLS 21125911
Information last verified by Jome: Today at 1:10 AM (April 18, 2026)
Home details
- Property status:
- Sold
- Lot size (acres):
- 0.31
- Size:
- 2,408 sqft
- Stories:
- 1
- Beds:
- 4
- Baths:
- 2
- Half baths:
- 1
- Garage spaces:
- 3
- Fence:
- Metal Fence
- Facing direction:
- Northwest
Construction details
- Roof:
- Roof Gutter, Composition Roofing
Home features & finishes
- Appliances:
- Sprinkler System
- Construction Materials:
- BrickRockStone
- Cooling:
- Ceiling Fan(s)Central Air
- Flooring:
- Tile Flooring
- Foundation Details:
- Slab
- Garage/Parking:
- Door OpenerGarageAttached Garage
- Home amenities:
- ENERGY STAR CertifiedGreen Construction
- Interior Features:
- Ceiling-VaultedWalk-In ClosetPantryFlat Screen WiringDouble Vanity
- Kitchen:
- DishwasherMicrowave OvenDisposalGranite countertopKitchen IslandKitchen Range
- Laundry facilities:
- DryerWasherStackable Washer/DryerUtility/Laundry Room
- Lighting:
- Exterior LightingLightingDecorative/Designer Lighting
- Property amenities:
- GardenTrees on propertyBackyardLandscapingPatioPorch
- Rooms:
- Primary Bedroom On MainKitchenOpen Concept FloorplanPrimary Bedroom Downstairs
- Security system:
- Smoke Detector
Utility information
- Heating:
- Electric Heating, Water Heater, Central Heating
- Utilities:
- Electricity Available, HVAC, City Water System, Individual Water Meter, High Speed Internet Access, Cable TV
Neighborhood
Home address
Schools in Granbury Independent School District
GreatSchools’ Summary Rating calculation is based on 4 of the school’s themed ratings, including test scores, student/academic progress, college readiness, and equity. This information should only be used as a reference. Jome is not affiliated with GreatSchools and does not endorse or guarantee this information. Please reach out to schools directly to verify all information and enrollment eligibility. Data provided by GreatSchools.org © 2025
Places of interest
Getting around
Air quality
Natural hazards risk
Provided by FEMA
Financials
Nearby communities in Granbury
Recently added communities in this area
Other Builders in Granbury, TX
Nearby sold homes
New homes in nearby cities
More New Homes in Granbury, TX
Elevate Realty Group, MLS 21125911
IDX information is provided exclusively for personal, non-commercial use, and may not be used for any purpose other than to identify prospective properties consumers may be interested in purchasing. You may not reproduce or redistribute this data, it is for viewing purposes only. This data is deemed reliable, but is not guaranteed accurate by the MLS or NTREIS.
Read moreLast checked Apr 18, 4:00 am
- Jome
- New homes search
- Texas
- Dallas-Fort Worth Area
- Hood County
- Granbury
- 1801 Rockview Dr, Granbury, TX 76049




















































