



Book your tour. Save an average of $18,473. We'll handle the rest.
We collect exclusive builder offers, book your tours, and support you from start to housewarming.
- Confirmed tours
- Get matched & compare top deals
- Expert help, no pressure
- No added fees
Estimated value based on Jome data, T&C apply
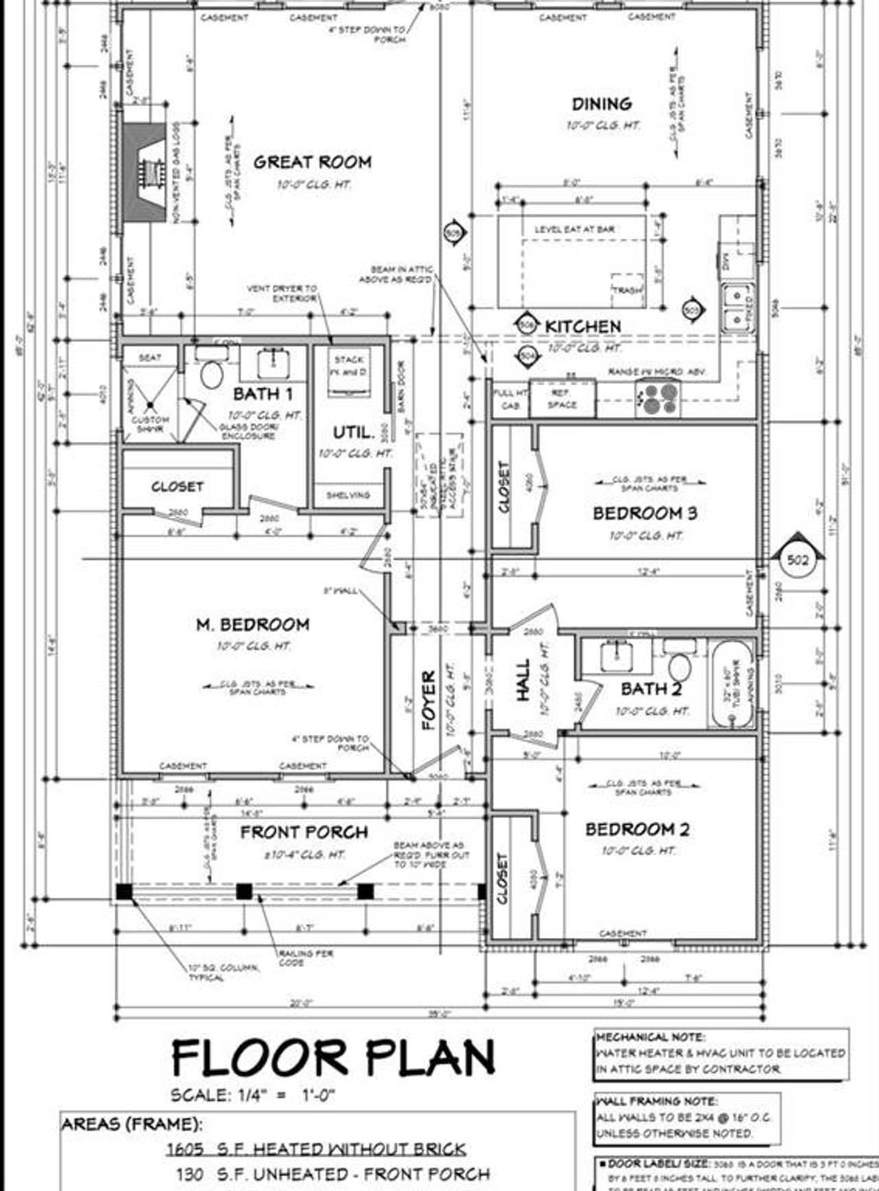
- 3 bd
- 2 ba
- 1,605 sqft
810 Branding Iron Trl, Granbury, TX 76049
Why tour with Jome?
- No pressure toursTour at your own pace with no sales pressure
- Expert guidanceGet insights from our home buying experts
- Exclusive accessSee homes and deals not available elsewhere
Jome is featured in
- Single-Family
- Under construction
- $179.44/sqft
- $18/annual HOA
Home description
Experience the perfect blend of thoughtful design and energy-efficient living in this brand-new construction home, estimated for completion in June 2026. Offering 3 bedrooms, 2 bathrooms, and 1,605 square feet, this home delivers comfort, functionality, and modern appeal in one inviting package.
Step inside to a well-designed single-story layout where open-concept living creates an easy flow between the kitchen, dining, and living areas—ideal for both everyday living and entertaining. The kitchen is equipped with stainless steel appliances, upgraded fixtures, and finishes that balance style and durability. Spray foam insulation and energy-efficient construction enhance year-round comfort while helping reduce utility costs. The private primary suite offers a relaxing retreat, complemented by two additional bedrooms that provide flexibility for guests, a home office, or hobbies. Outside, enjoy a yard with space to personalize and make your own. Located in Western Hills Harbor on the Fort Worth side of Granbury, residents enjoy access to community amenities including a pool, boat ramp, park, and more—bringing Lake Granbury living within reach. With low HOA dues and convenient access to nearby shopping, dining, and schools, this home combines lifestyle and value. Schedule your private tour today and secure this upcoming new construction before completion.
Magnolia Realty, MLS 21213177
Information last verified by Jome: Today at 4:02 AM (March 20, 2026)
Book your tour. Save an average of $18,473. We'll handle the rest.
We collect exclusive builder offers, book your tours, and support you from start to housewarming.
- Confirmed tours
- Get matched & compare top deals
- Expert help, no pressure
- No added fees
Estimated value based on Jome data, T&C apply
Home details
- Property status:
- Under construction
- Lot size (acres):
- 0.11
- Size:
- 1,605 sqft
- Stories:
- 1
- Beds:
- 3
- Baths:
- 2
Construction details
- Year Built:
- 2026
Home features & finishes
- Cooling:
- Ceiling Fan(s)Central Air
- Foundation Details:
- Slab
- Interior Features:
- Walk-In Closet
- Kitchen:
- DishwasherMicrowave OvenElectric CooktopKitchen RangeElectric Oven
- Laundry facilities:
- Utility/Laundry Room
- Rooms:
- Primary Bedroom On MainOpen Concept FloorplanPrimary Bedroom Downstairs

Get a consultation with our New Homes Expert
- See how your home builds wealth
- Plan your home-buying roadmap
- Discover hidden gems
Utility information
- Heating:
- Central Heating
- Utilities:
- Electricity Available, Aerobic Septic System
Neighborhood
Home address
Schools in Granbury Independent School District
GreatSchools’ Summary Rating calculation is based on 4 of the school’s themed ratings, including test scores, student/academic progress, college readiness, and equity. This information should only be used as a reference. Jome is not affiliated with GreatSchools and does not endorse or guarantee this information. Please reach out to schools directly to verify all information and enrollment eligibility. Data provided by GreatSchools.org © 2025
Places of interest
Getting around
Air quality
Natural hazards risk
Provided by FEMA

Considering this home?
Our expert will guide your tour, in-person or virtual
Need more information?
Text or call (888) 545-5198
Financials
Estimated monthly payment
Let us help you find your dream home
How many bedrooms are you looking for?
Similar homes nearby
Recently added communities in this area
Nearby communities in Granbury
New homes in nearby cities
More New Homes in Granbury, TX
Magnolia Realty, MLS 21213177
IDX information is provided exclusively for personal, non-commercial use, and may not be used for any purpose other than to identify prospective properties consumers may be interested in purchasing. You may not reproduce or redistribute this data, it is for viewing purposes only. This data is deemed reliable, but is not guaranteed accurate by the MLS or NTREIS.
Read moreLast checked Mar 20, 4:00 am
- Jome
- New homes search
- Texas
- Dallas-Fort Worth Area
- Hood County
- Granbury
- 810 Branding Iron Trl, Granbury, TX 76049


























