



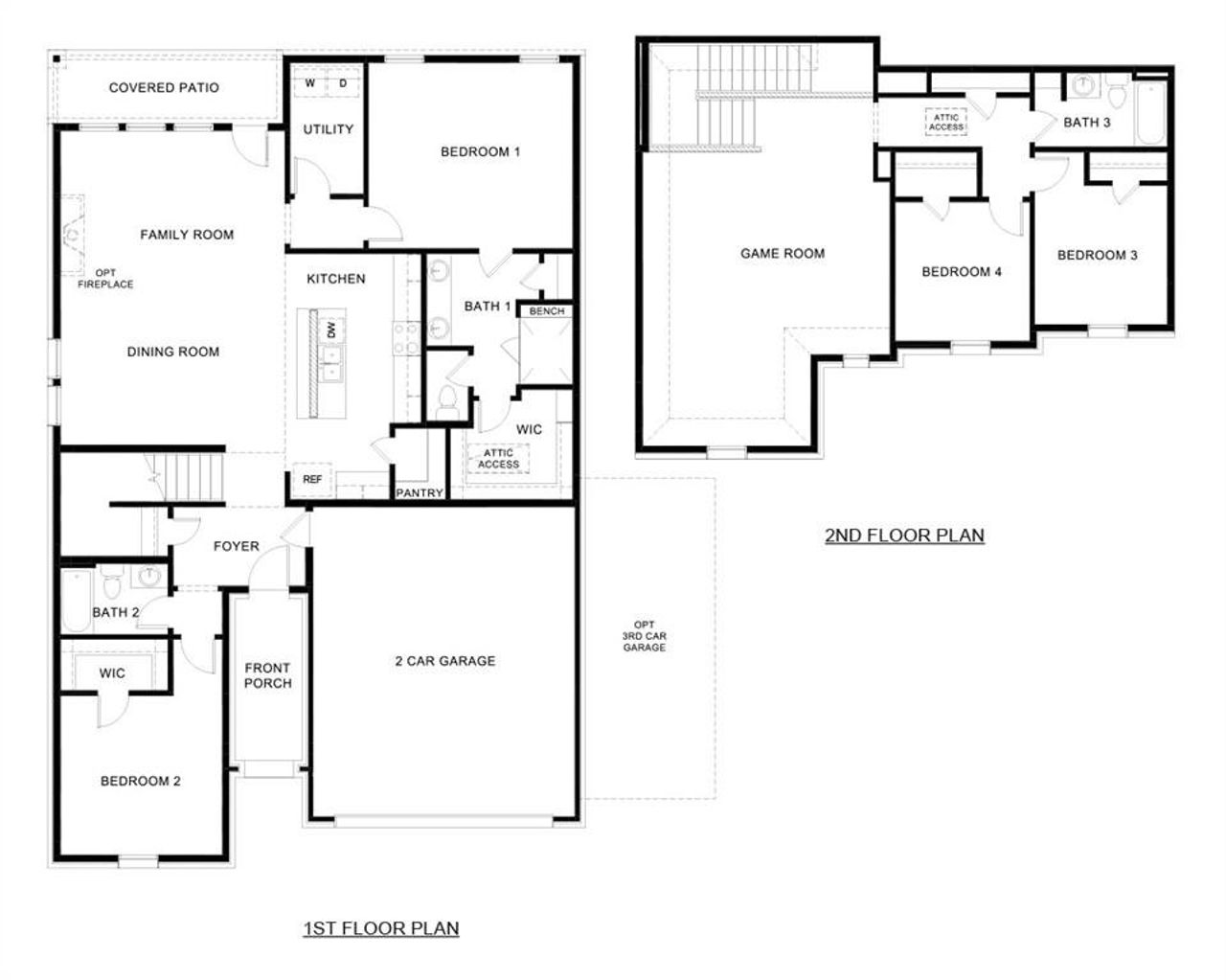
- 4 bd
- 3 ba
- 2,434 sqft
8278 Hunsaker Ln, Garland, TX 75043
- Single-Family
- $195.06/sqft
- $570/annual HOA
- 0.17-acre lot
New Homes for Sale Near 8278 Hunsaker Ln, Garland, TX 75043
About this Home
New! Amazing two story floor plan! Four bedrooms, three full baths, with large game room. Home includes, island kitchen, granite counters throughout, LED lighting, full sprinkler system, professionally engineered post tension foundation, and much more!
Welcome to Fireside by the Lake!
Conveniently located just 2 miles from Interstate 30, this beautiful community gets its name due to its proximity of Lake Ray Hubbard. Here at Fireside, you can experience the convenience of easy access highways, while enjoying a serene and beautiful location outside of the city. Fireside by the Lake is also nestled within the highly regarded Garland ISD. Don’t miss out on this opportunity, schedule a tour of Fireside by the Lake today and discover why it’s the perfect place to call home!
Jeanette Anderson Real Estate, MLS 21122885
May also be listed on the D.R. Horton website
Information last verified by Jome: Today at 2:02 AM (April 1, 2026)
Home details
- Property status:
- Sold
- Lot size (acres):
- 0.17
- Size:
- 2,434 sqft
- Stories:
- 2
- Beds:
- 4
- Baths:
- 3
- Garage spaces:
- 2
- Fence:
- Wood Fence
Construction details
- Builder Name:
- D.R. Horton
- Year Built:
- 2025
- Roof:
- Composition Roofing
Home features & finishes
- Construction Materials:
- Brick
- Cooling:
- Central Air
- Flooring:
- Ceramic FlooringLaminate FlooringCarpet FlooringTile Flooring
- Foundation Details:
- Slab
- Garage/Parking:
- GarageAttached Garage
- Home amenities:
- Green Construction
- Interior Features:
- Pantry
- Kitchen:
- DishwasherMicrowave OvenDisposalGas CooktopGranite countertopKitchen IslandGas OvenKitchen Range
- Lighting:
- LightingDecorative/Designer Lighting
- Property amenities:
- Gas Log Fireplace
- Rooms:
- KitchenOpen Concept Floorplan
- Security system:
- Smoke DetectorCarbon Monoxide Detector
Utility information
- Heating:
- Central Heating, Gas Heating
- Utilities:
- HVAC, City Water System, High Speed Internet Access, Cable TV

Community details
Fireside by the Lake
by D.R. Horton, Garland, TX
- 9 homes
- 9 plans
- 1,712 - 2,903 sqft
View Fireside by the Lake details
More homes in Fireside by the Lake
- Home at address 7061 Split Rail Dr, Garland, TX 75043
Savings$410,085
Under construction- 4 bd
- 2 ba
- 1,935 sqft
7061 Split Rail Dr, Garland, TX 75043
- Home at address 7054 Thunder Dove Ct, Garland, TX 75043
Savings$414,085
Under construction- 4 bd
- 2 ba
- 1,935 sqft
7054 Thunder Dove Ct, Garland, TX 75043
- Home at address 7033 Split Rail Dr, Garland, TX 75043
Savings$426,585
Under construction- 4 bd
- 3 ba
- 1,935 sqft
7033 Split Rail Dr, Garland, TX 75043
- Home at address 7037 Split Rail Dr, Garland, TX 75043
Savings$445,490
Under construction- 4 bd
- 2 ba
- 2,326 sqft
7037 Split Rail Dr, Garland, TX 75043
- Home at address 8417 Rockhopper Ln, Garland, TX 75043
Savings$456,270
Move-in ready- 4 bd
- 3 ba
- 2,434 sqft
8417 Rockhopper Ln, Garland, TX 75043
- Home at address 7030 Split Rail Dr, Garland, TX 75043
Savings$467,985
Move-in ready- 4 bd
- 3 ba
- 2,552 sqft
7030 Split Rail Dr, Garland, TX 75043
Floor plans in Fireside by the Lake
About the builder - D.R. Horton

- 1,164communities on Jome
- 10,414homes on Jome
Neighborhood
Home address
Schools in Garland Independent School District
GreatSchools’ Summary Rating calculation is based on 4 of the school’s themed ratings, including test scores, student/academic progress, college readiness, and equity. This information should only be used as a reference. Jome is not affiliated with GreatSchools and does not endorse or guarantee this information. Please reach out to schools directly to verify all information and enrollment eligibility. Data provided by GreatSchools.org © 2025
Places of interest
Getting around
Air quality
Noise level
A Soundscore™ rating is a number between 50 (very loud) and 100 (very quiet) that tells you how loud a location is due to environmental noise.
Financials
Nearby communities in Garland
Homes in Garland Neighborhoods
Homes in Garland by D.R. Horton
Recently added communities in this area
Other Builders in Garland, TX
Nearby sold homes
New homes in nearby cities
More New Homes in Garland, TX
Jeanette Anderson Real Estate, MLS 21122885
IDX information is provided exclusively for personal, non-commercial use, and may not be used for any purpose other than to identify prospective properties consumers may be interested in purchasing. You may not reproduce or redistribute this data, it is for viewing purposes only. This data is deemed reliable, but is not guaranteed accurate by the MLS or NTREIS.
Read moreLast checked Mar 31, 10:00 pm
- Jome
- New homes search
- Texas
- Dallas-Fort Worth Area
- Dallas County
- Garland
- Fireside by the Lake
- 8278 Hunsaker Ln, Garland, TX 75043


































































