



- 4 bd
- 3 ba
- 2,920 sqft
11709 Warlock, San Antonio, TX 78254
- Single-Family
- $188.09/sqft
- $450/annual HOA
- 104 days on Jome
New Homes for Sale Near 11709 Warlock, San Antonio, TX 78254
About this Home
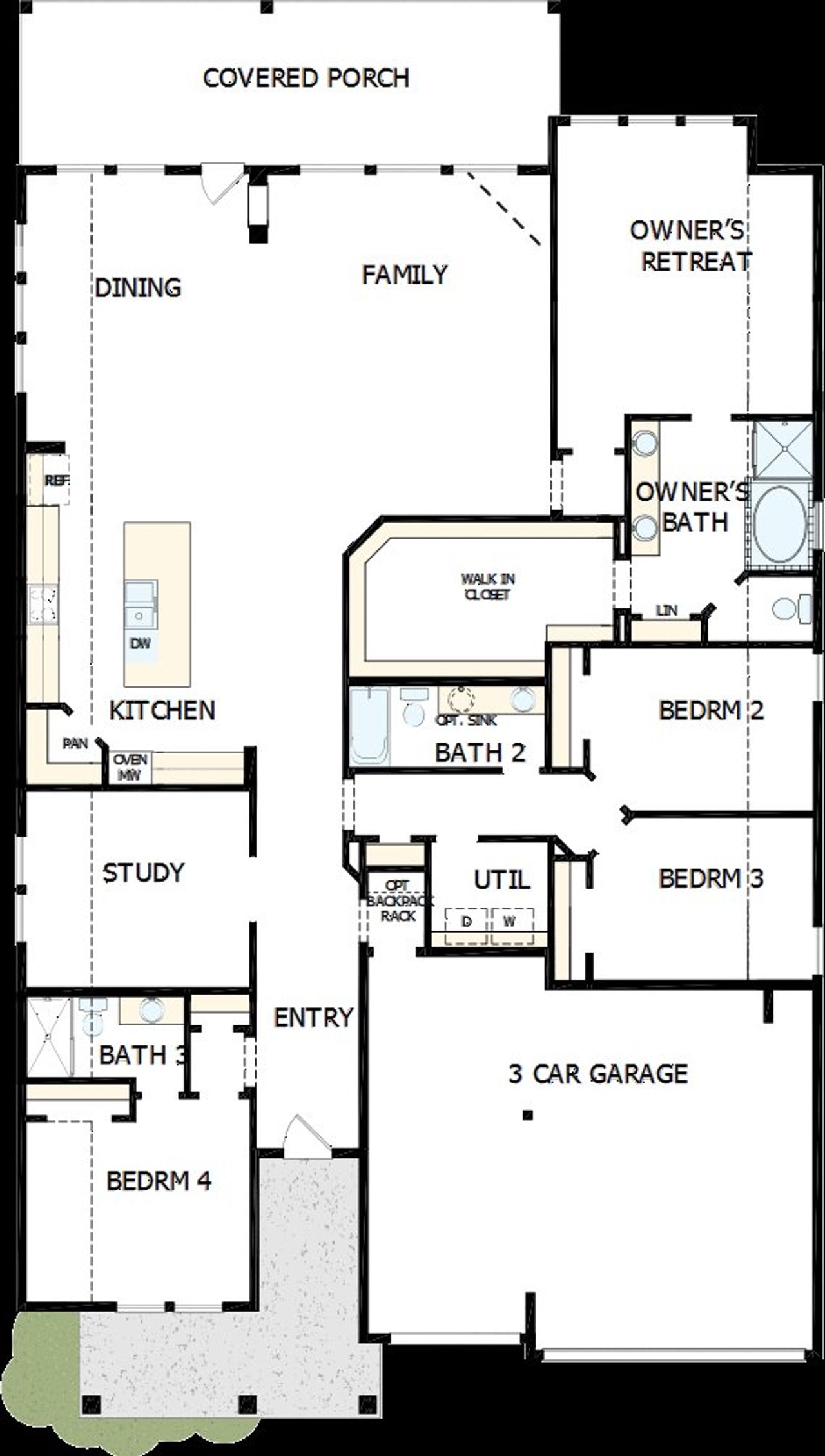
Experience living at its finest in the welcoming and glamorous Rymer by David Weekley floor plan. Your open-concept living spaces offer an innovative, sunlit expanse that invites your ideal interior design style.
Extend that style to the versatile specialty room you’ve created in the spacious study. The gourmet kitchen is shaped to support both solo and collaborative meal prep, and features a family breakfast island and a corner pantry.
Each spare bedroom provides a large closet and plenty of room for unique personalities. The guest suite includes a private bathroom, making it an ideal arrangement for visiting loved ones.
Your deluxe Owner’s Retreat presents a stately bedroom, luxurious bathroom, and an incredible walk-in closet. Your Personal Builder℠ is ready to begin working on your new home in San Antonio, Texas.
May also be listed on the David Weekley Homes website
Information last verified by Jome: Tuesday at 8:00 AM (December 9, 2025)
Home details
- Property status:
- Sold
- Lot width (feet):
- 60
- Size:
- 2,920 sqft
- Stories:
- 1
- Beds:
- 4
- Baths:
- 3
- Garage spaces:
- 3
Construction details
- Builder Name:
- David Weekley Homes
- Completion Date:
- March, 2026
Home features & finishes
- Appliances:
- Sprinkler System
- Garage/Parking:
- GarageAttached Garage
- Interior Features:
- Ceiling-HighWalk-In ClosetPantry
- Laundry facilities:
- Utility/Laundry Room
- Property amenities:
- SodBathtub in primaryPatio
- Rooms:
- Primary Bedroom On MainKitchenOffice/StudyDining RoomFamily RoomOpen Concept FloorplanPrimary Bedroom Downstairs

Community details
Davis Ranch 60' at Davis Ranch
by David Weekley Homes, San Antonio, TX
- 3 homes
- 9 plans
- 2,032 - 3,528 sqft
View Davis Ranch 60' details
More homes in Davis Ranch 60'
- Home at address 11718 Warlock, San Antonio, TX 78254

$523,990
Move-in ready- 4 bd
- 3.5 ba
- 2,701 sqft
11718 Warlock, San Antonio, TX 78254
- Home at address 11733 Warlock, San Antonio, TX 78254

$564,990
Move-in ready- 4 bd
- 3 ba
- 3,528 sqft
11733 Warlock, San Antonio, TX 78254
- Home at address 11726 Warlock, San Antonio, TX 78254

$568,826
Under construction- 4 bd
- 3 ba
- 2,450 sqft
11726 Warlock, San Antonio, TX 78254
Floor plans in Davis Ranch 60'
About the builder - David Weekley Homes

- 369communities on Jome
- 1,366homes on Jome
Neighborhood
Home address
- City:
- San Antonio
- County:
- Bexar
- Zip Code:
- 78254
Schools in Northside Independent School District
GreatSchools’ Summary Rating calculation is based on 4 of the school’s themed ratings, including test scores, student/academic progress, college readiness, and equity. This information should only be used as a reference. Jome is not affiliated with GreatSchools and does not endorse or guarantee this information. Please reach out to schools directly to verify all information and enrollment eligibility. Data provided by GreatSchools.org © 2025
Places of interest
Getting around
Air quality
Financials
Nearby communities in San Antonio
Homes in San Antonio Neighborhoods
- Alamo Ranch
- Crownridge Of Texas Owners Association
- Kingsborough Ridge
- Tobin Hill
- Lower Southeast Side
- Nevada Street
- Alamo Farmsteads-Babcock Road
- Stone Oak
- Arena District
- Forest Crest
- Lavaca
- Downtown
- South Southwest
- King William
- The Dominion
- Prospect Hill
- People Active In Community Effort
- Five Points
- Historic Gardens
- Oak Creek
- Woodlawn Lake
- Vance Jackson
- Harvard Place - Eastlawn
- Oak Park - Northwood
- Third World
- Hot Wells
- Tierra Linda
- Artesia Community Guild
- Lockhill Estates
- Terrell Heights
- Denver Heights
- Quintana Community
- Mahncke Park
- Olmos Park Terrace
- Jefferson Heights
- Friedrich Wilderness Park
- Los Angeles Heights - Keystone
Homes in San Antonio by David Weekley Homes
Recently added communities in this area
Other Builders in San Antonio, TX
Nearby sold homes
New homes in nearby cities
More New Homes in San Antonio, TX
- Jome
- New homes search
- Texas
- Greater San Antonio
- Bexar County
- San Antonio
- Davis Ranch 60'
- 11709 Warlock, San Antonio, TX 78254








































































