














Book your tour. Save an average of $18,473. We'll handle the rest.
- Confirmed tours
- Get matched & compare top deals
- Expert help, no pressure
- No added fees
Estimated value based on Jome data, T&C apply







- 4 bd
- 3.5 ba
- 3,800 sqft
2 Lydia Ln, Van Alstyne, TX 75495
Why tour with Jome?
- No pressure toursTour at your own pace with no sales pressure
- Expert guidanceGet insights from our home buying experts
- Exclusive accessSee homes and deals not available elsewhere
Jome is featured in
- Single-Family
- Under construction
- $285.53/sqft
- 1.00-acre lot
Home description
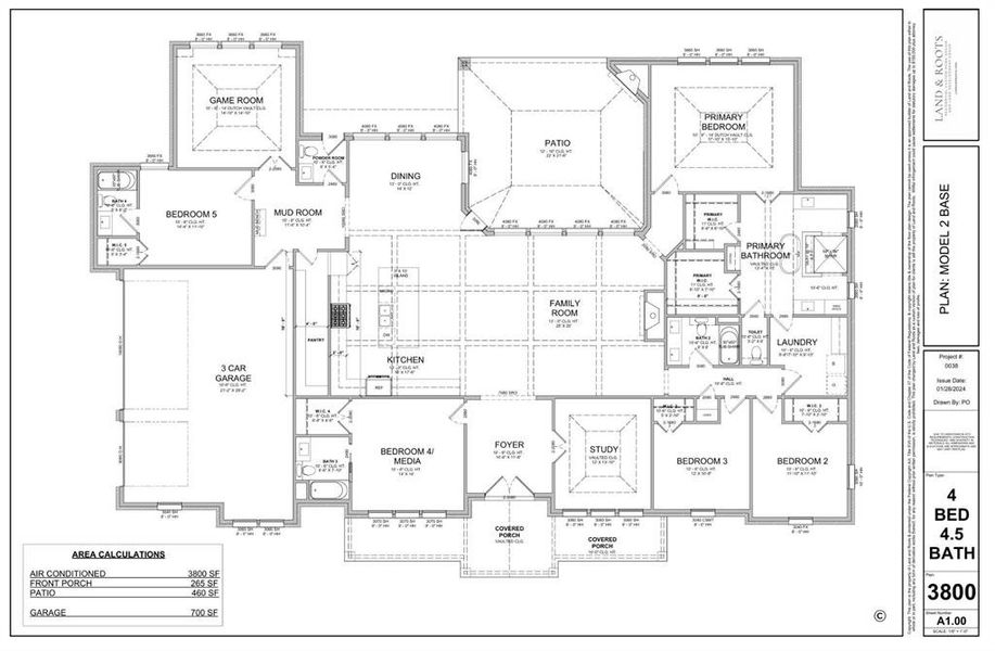
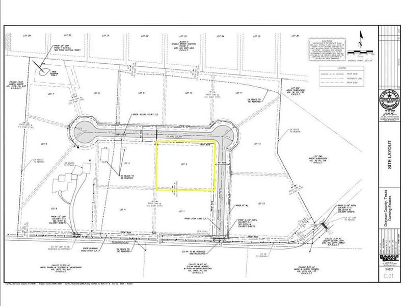
Come build your dream custom home with local custom home builder Scott Post Homes in Van Alstyne! Durning Estates includes 13 luxury acreage homesites available on a single concrete road with two cul-de-sacs. This 3800 SF open floor plan boasts 4 bedrooms, 4.5 baths, a game room, office, dining room. This plan also includes a three-car garage with a detached two car metal building! The master bath features a vaulted ceiling, separate vanities, his and hers closets with direct access to the laundry room. As you walk into this home, you’re greeted by a large foyer that leads to the open concept living area with large windows and 13’ coffered ceilings. The coffered ceilings continue all through the kitchen area which features a 10 ft island and an oversized hidden pantry. The pantry has two access points allowing you to carry your groceries from the garage directly from the mudroom and you can access the pantry from the kitchen through the hidden cabinet door entrance. The powder bath can be used as a pool bath with outside access. All elevations and floor plans are totally custom to fit your family's needs! Located 3 minutes off of FM 121 and a quick 8 minute from Highway 75. No HOA, deed restrictions and architectural approval committee in place for quality of homes. One large animal allowed per one acre lot. Six chickens allowed per lot. 6-8 month estimated build time. Scott Post Homes has a model home located at 674 Pike Rd in Gunter, TX. Give us a call and we can get you in to see the model at any time! SPECIAL LOW INTEREST RATE JUST LOWERED to 5.5% on our OTC loan program for our builds! Lot 2 is listed in this listing but, there are other lots available.
Keith W Smith, MLS 21097522
Information last verified by Jome: Today at 1:24 AM (December 20, 2025)
Home highlights
Book your tour. Save an average of $18,473. We'll handle the rest.
We collect exclusive builder offers, book your tours, and support you from start to housewarming.
- Confirmed tours
- Get matched & compare top deals
- Expert help, no pressure
- No added fees
Estimated value based on Jome data, T&C apply
Home details
- Property status:
- Under construction
- Lot size (acres):
- 1.00
- Size:
- 3,800 sqft
- Stories:
- 1
- Beds:
- 4
- Baths:
- 3
- Half baths:
- 1
- Garage spaces:
- 3
Construction details
- Year Built:
- 2025
- Roof:
- Asphalt Roofing
Home features & finishes
- Construction Materials:
- BrickRockStone
- Cooling:
- Central Air
- Flooring:
- Ceramic FlooringWood FlooringCarpet FlooringTile Flooring
- Foundation Details:
- Slab
- Garage/Parking:
- GarageMulti-Door GarageAttached Garage
- Home amenities:
- Home Accessibility Features
- Kitchen:
- DishwasherMicrowave OvenOvenDisposalElectric CooktopGas CooktopGranite countertopDouble Oven
- Lighting:
- Decorative/Designer Lighting
- Property amenities:
- BackyardFireplace
- Rooms:
- Primary Bedroom On MainPrimary Bedroom Downstairs
Utility information
- Heating:
- Electric Heating, Central Heating
- Utilities:
- Electricity Available, Aerobic Septic System
Neighborhood
Home address
- City:
- Van Alstyne
- County:
- Grayson
- Zip Code:
- 75495
Schools in Van Alstyne Independent School District
- Grades M-MPublicvan alstyne middle4.1 mi1314 n wacona
GreatSchools’ Summary Rating calculation is based on 4 of the school’s themed ratings, including test scores, student/academic progress, college readiness, and equity. This information should only be used as a reference. Jome is not affiliated with GreatSchools and does not endorse or guarantee this information. Please reach out to schools directly to verify all information and enrollment eligibility. Data provided by GreatSchools.org © 2025
Places of interest
Getting around
Natural hazards risk
Climate hazards can impact homes and communities, with risks varying by location. These scores reflect the potential impact of natural disasters and climate-related risks on Grayson County
Provided by FEMA

Considering this home?
Our expert will guide your tour, in-person or virtual
Need more information?
Text or call (888) 486-2818
Financials
Similar homes nearby
Recently added communities in this area
Nearby communities in Van Alstyne
New homes in nearby cities
More New Homes in Van Alstyne, TX
Keith W Smith, MLS 21097522
IDX information is provided exclusively for personal, non-commercial use, and may not be used for any purpose other than to identify prospective properties consumers may be interested in purchasing. You may not reproduce or redistribute this data, it is for viewing purposes only. This data is deemed reliable, but is not guaranteed accurate by the MLS or NTREIS.
Read moreLast checked Dec 19, 10:00 pm
- Jome
- New homes search
- Texas
- Dallas-Fort Worth Area
- Grayson County
- Van Alstyne
- 2 Lydia Ln, Van Alstyne, TX 75495






















