



- 4 bd
- 3 ba
- 3,368 sqft
3602 Saguaro Dr, Grand Prairie, TX 75052
- Single-Family
- $162.41/sqft
- $800/annual HOA
- 67 days on Jome
New Homes for Sale Near 3602 Saguaro Dr, Grand Prairie, TX 75052
About this Home
About this home
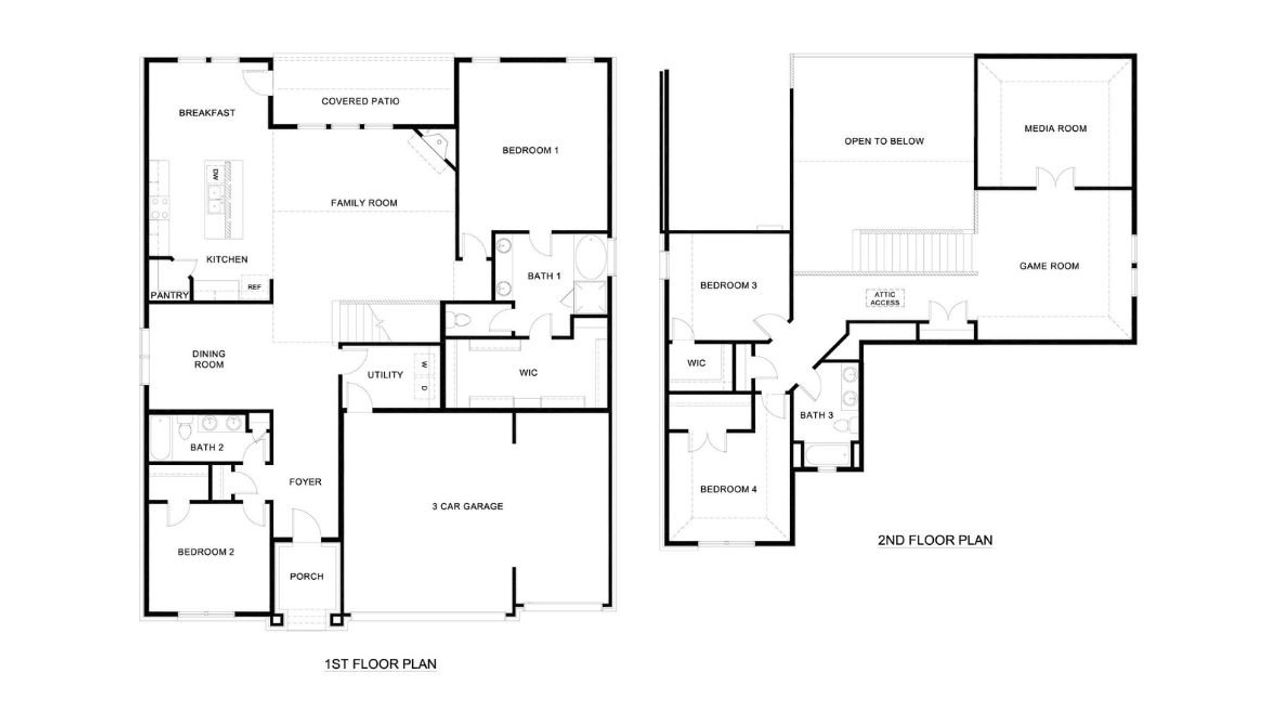
Welcome to the Newton floor plan, an expansive two-story home designed for comfort and functionality in The Preserves at the Forum in Grand Prairie, TX. Boasting 4 bedrooms, 3 bathrooms, a game room, and a media room, this home offers the perfect space for growing families and entertaining.
The open-concept design features a chef’s kitchen with a large island, stainless steel appliances, and a walk-in pantry, seamlessly flowing into the family room and breakfast nook. A formal dining room adds elegance for special occasions. The primary suite, located on the main floor, offers a spa-like ensuite bath and a walk-in closet. A secondary bedroom and full bath on the first level provide a private space for guests.
Upstairs, discover two additional bedrooms, a full bath, and an expansive game room perfect for entertainment. The dedicated media room takes movie nights to the next level!
With a 3-car garage, covered patio, and energy-efficient features, the Newton floor plan is designed for modern families. Located in Grand Prairie, enjoy easy access to shopping, dining, entertainment, and top-rated schools. Secure your dream home in The Preserves at the Forum today!
May also be listed on the D.R. Horton website
Information last verified by Jome: Sunday at 1:53 AM (November 30, 2025)
Home details
- Property status:
- Sold
- Size:
- 3,368 sqft
- Stories:
- 2
- Beds:
- 4
- Baths:
- 3
- Garage spaces:
- 2
Construction details
- Builder Name:
- D.R. Horton
Home features & finishes
- Garage/Parking:
- GarageAttached Garage
- Interior Features:
- Walk-In ClosetFoyerPantry
- Laundry facilities:
- Utility/Laundry Room
- Property amenities:
- PatioFireplacePorch
- Rooms:
- KitchenGame RoomMedia RoomDining RoomFamily RoomBreakfast AreaOpen Concept FloorplanPrimary Bedroom Downstairs

Community details
The Preserve at Forum
by D.R. Horton, Grand Prairie, TX
- 7 homes
- 9 plans
- 2,032 - 3,368 sqft
View The Preserve at Forum details
More homes in The Preserve at Forum
Floor plans in The Preserve at Forum
About the builder - D.R. Horton
Neighborhood
Home address
- City:
- Grand Prairie
- County:
- Dallas
- Zip Code:
- 75052
Schools in Grand Prairie Independent School District
GreatSchools’ Summary Rating calculation is based on 4 of the school’s themed ratings, including test scores, student/academic progress, college readiness, and equity. This information should only be used as a reference. Jome is not affiliated with GreatSchools and does not endorse or guarantee this information. Please reach out to schools directly to verify all information and enrollment eligibility. Data provided by GreatSchools.org © 2025
Places of interest
Getting around
Air quality
Noise level
A Soundscore™ rating is a number between 50 (very loud) and 100 (very quiet) that tells you how loud a location is due to environmental noise.
Natural hazards risk
Climate hazards can impact homes and communities, with risks varying by location. These scores reflect the potential impact of natural disasters and climate-related risks on Dallas County
Provided by FEMA
Financials
Nearby communities in Grand Prairie
Homes in Grand Prairie by D.R. Horton
Recently added communities in this area
Other Builders in Grand Prairie, TX
Nearby sold homes
New homes in nearby cities
More New Homes in Grand Prairie, TX
- Jome
- New homes search
- Texas
- Dallas-Fort Worth Area
- Dallas County
- Grand Prairie
- The Preserve at Forum
- 3602 Saguaro Dr, Grand Prairie, TX 75052







































































