





















- 4 bd
- 3 ba
- 2,740 sqft
3685 Uplift Ave, Grand Prairie, TX 75052
- Single-Family
- $186.13/sqft
- $800/annual HOA
- 0.14-acre lot
New Homes for Sale Near 3685 Uplift Ave, Grand Prairie, TX 75052
About this Home
Estimated Completion – End of September
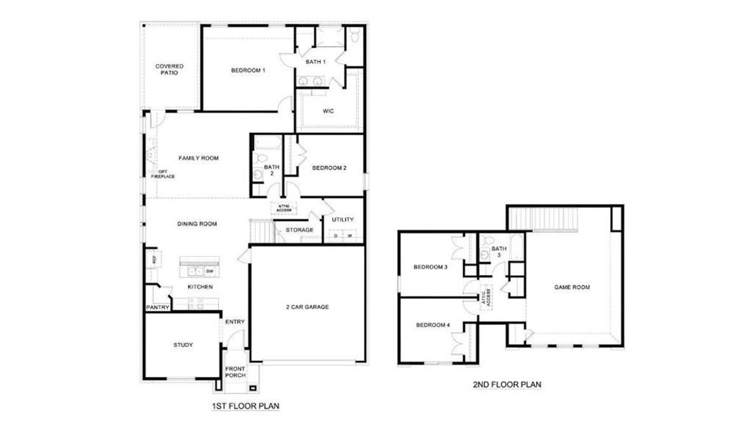
Discover the Quincy floor plan, a stunning two-story home in The Preserves at the Forum in Grand Prairie, TX. Designed for modern living, this 4-bedroom, 3-bathroom home offers the perfect blend of style, space, and functionality.
Step inside to find an open-concept layout, featuring a gourmet kitchen with a large island, walk-in pantry, and stainless-steel appliances—perfect for entertaining. The family and dining rooms flow seamlessly, creating a warm, inviting space. A private study at the front of the home makes working from home effortless.
The primary suite on the main level boasts a spacious walk-in closet and a spa-like en-suite bathroom. A second bedroom and bath on the first floor provide flexibility for guests or multi-generational living. Upstairs, two additional bedrooms, a full bath, and a game room offer plenty of space for relaxation and fun.
With a covered patio, energy-efficient features, and a two-car garage, the Quincy plan is designed for modern families. Enjoy easy access to shopping, dining, and top-rated schools in Grand Prairie. Don’t miss your chance to own this incredible new home in The Preserves at the Forum!
Keller Williams Realty Lone St, MLS 21022495
May also be listed on the D.R. Horton website
Information last verified by Jome: Today at 1:38 AM (January 16, 2026)
Home details
- Property status:
- Sold
- Lot size (acres):
- 0.14
- Size:
- 2,740 sqft
- Stories:
- 2
- Beds:
- 4
- Baths:
- 3
- Garage spaces:
- 2
- Fence:
- Wood Fence, Fenced Yard
Construction details
- Builder Name:
- D.R. Horton
- Year Built:
- 2025
- Roof:
- Shingle Roofing
Home features & finishes
- Appliances:
- Water PurifierSprinkler System
- Construction Materials:
- CementBrick
- Cooling:
- Ceiling Fan(s)Central Air
- Flooring:
- Laminate FlooringVinyl Flooring
- Foundation Details:
- SlabPillar/Post/Pier
- Garage/Parking:
- GarageFront Entry Garage/ParkingAttached Garage
- Interior Features:
- Ceiling-VaultedWalk-In ClosetPantryStorageDouble Vanity
- Kitchen:
- DishwasherMicrowave OvenRefrigeratorDisposalGas CooktopGranite countertopKitchen IslandGas OvenKitchen Range
- Laundry facilities:
- Utility/Laundry Room
- Property amenities:
- BackyardPatioYardSmart Home SystemPorch
- Rooms:
- Primary Bedroom On MainKitchenGame RoomOffice/StudyDining RoomFamily RoomOpen Concept FloorplanPrimary Bedroom Downstairs
- Security system:
- Fire Alarm System
Utility information
- Heating:
- Water Heater, Central Heating, Tankless water heater
- Utilities:
- City Water System

Community details
The Preserve at Forum
by D.R. Horton, Grand Prairie, TX
- 9 homes
- 9 plans
- 2,032 - 3,368 sqft
View The Preserve at Forum details
More homes in The Preserve at Forum
- Home at address 2434 Starlight St, Grand Prairie, TX 75052

$423,990
Move-in ready- 4 bd
- 2 ba
- 2,032 sqft
2434 Starlight St, Grand Prairie, TX 75052
- Home at address 2402 Ascent Ln, Grand Prairie, TX 75052

$476,990
Under construction- 4 bd
- 2 ba
- 2,032 sqft
2402 Ascent Ln, Grand Prairie, TX 75052
- Home at address 2329 Rise Ridge Rd, Grand Prairie, TX 75052

$478,910
Move-in ready- 4 bd
- 2 ba
- 2,035 sqft
2329 Rise Ridge Rd, Grand Prairie, TX 75052
- Home at address 2330 Skyward St, Grand Prairie, TX 75052

$483,990
Move-in ready- 4 bd
- 3 ba
- 2,185 sqft
2330 Skyward St, Grand Prairie, TX 75052
- Home at address 3682 Zenith Rd, Grand Prairie, TX 75052

$496,990
Move-in ready- 4 bd
- 3 ba
- 2,538 sqft
3682 Zenith Rd, Grand Prairie, TX 75052
- Home at address 2322 Skyward St, Grand Prairie, TX 75052

$504,990
Move-in ready- 4 bd
- 3 ba
- 2,538 sqft
2322 Skyward St, Grand Prairie, TX 75052
Floor plans in The Preserve at Forum
About the builder - D.R. Horton

- 1,199communities on Jome
- 9,060homes on Jome
Neighborhood
Home address
- City:
- Grand Prairie
- County:
- Tarrant
- Zip Code:
- 75052
Schools in Grand Prairie Independent School District
GreatSchools’ Summary Rating calculation is based on 4 of the school’s themed ratings, including test scores, student/academic progress, college readiness, and equity. This information should only be used as a reference. Jome is not affiliated with GreatSchools and does not endorse or guarantee this information. Please reach out to schools directly to verify all information and enrollment eligibility. Data provided by GreatSchools.org © 2025
Places of interest
Getting around
Air quality
Noise level
A Soundscore™ rating is a number between 50 (very loud) and 100 (very quiet) that tells you how loud a location is due to environmental noise.
Financials
Nearby communities in Grand Prairie
Homes in Grand Prairie by D.R. Horton
Recently added communities in this area
Other Builders in Grand Prairie, TX
Nearby sold homes
New homes in nearby cities
More New Homes in Grand Prairie, TX
Keller Williams Realty Lone St, MLS 21022495
IDX information is provided exclusively for personal, non-commercial use, and may not be used for any purpose other than to identify prospective properties consumers may be interested in purchasing. You may not reproduce or redistribute this data, it is for viewing purposes only. This data is deemed reliable, but is not guaranteed accurate by the MLS or NTREIS.
Read moreLast checked Jan 16, 10:00 am
- Jome
- New homes search
- Texas
- Dallas-Fort Worth Area
- Tarrant County
- Grand Prairie
- The Preserve at Forum
- 3685 Uplift Ave, Grand Prairie, TX 75052































































