








Book your tour. Save an average of $18,473. We'll handle the rest.
We collect exclusive builder offers, book your tours, and support you from start to housewarming.
- Confirmed tours
- Get matched & compare top deals
- Expert help, no pressure
- No added fees
Estimated value based on Jome data, T&C apply





















- 2 bd
- 2.5 ba
- 1,607 sqft
3600 Tom Miller St, Unit 2, Austin, TX 78723
Why tour with Jome?
- No pressure toursTour at your own pace with no sales pressure
- Expert guidanceGet insights from our home buying experts
- Exclusive accessSee homes and deals not available elsewhere
Jome is featured in
- Single-Family
- Quick move-in
- $603.61/sqft
- $103/monthly HOA
Home description
Inquire about preferred lender incentives. ICON’s newest 3D-printed homes are coming to Mueller! Designed by renowned Michael Hsu Office of Architecture and overlooking Mueller’s Southeast Greenway, these homes are the perfect combination of beautiful design, ICON’s resilient construction and an incredible location. This 2-bedroom home features an open-concept layout and modern design. Natural light shapes and enhances the living spaces with floor to ceiling glass facing the private yard, clerestory windows in the living room and oversized windows throughout the rest of the home including views over the Southeast Greenway and Morris Williams Golf Course.
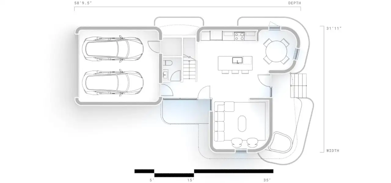
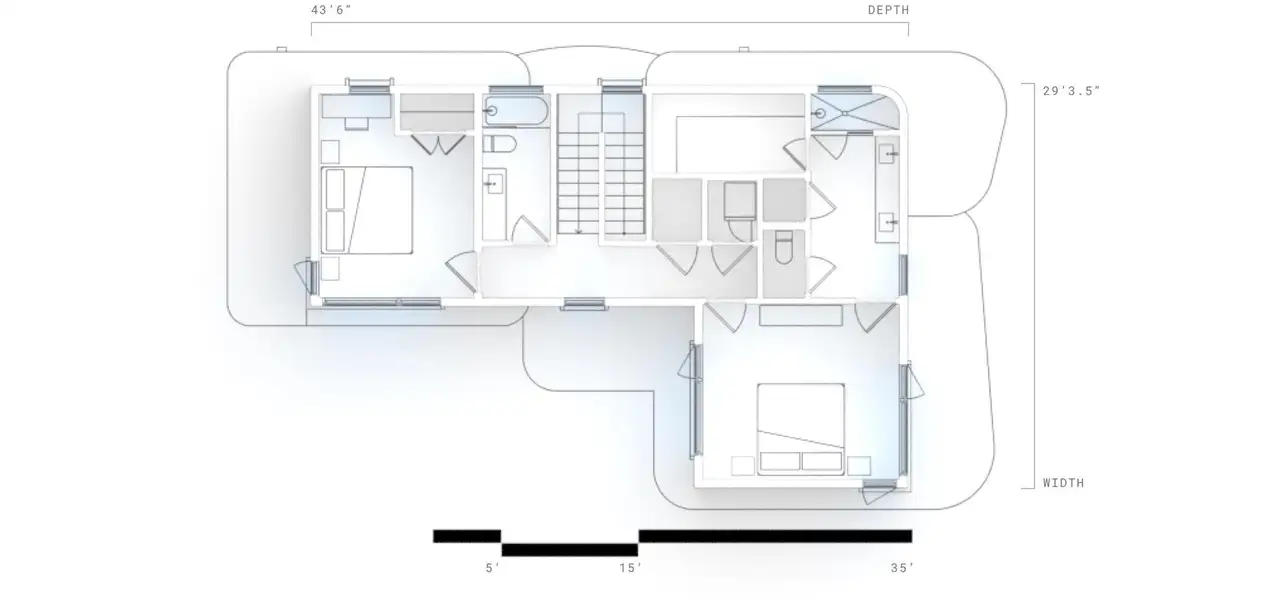
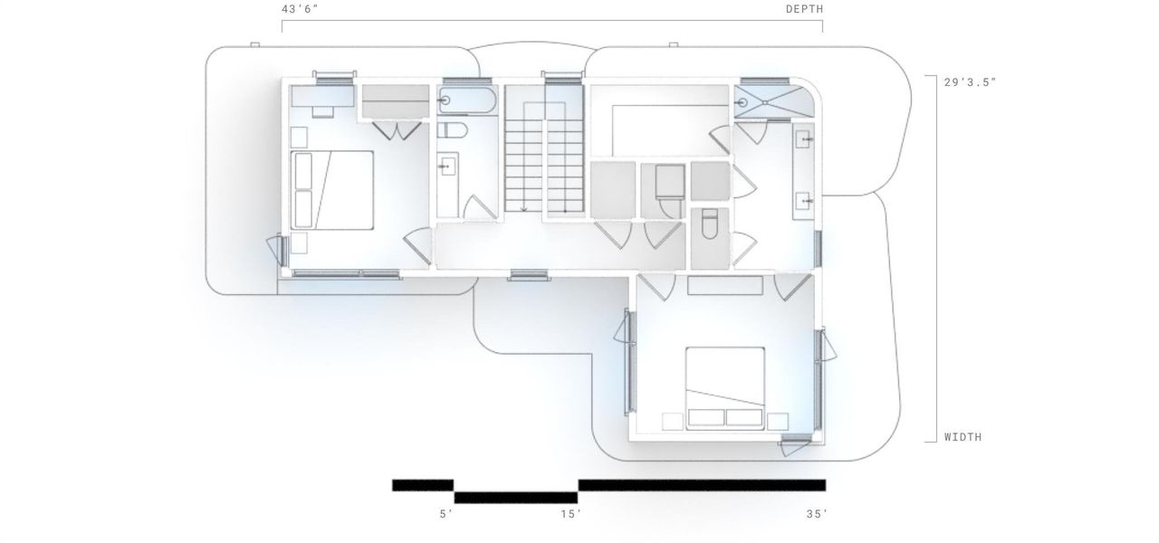
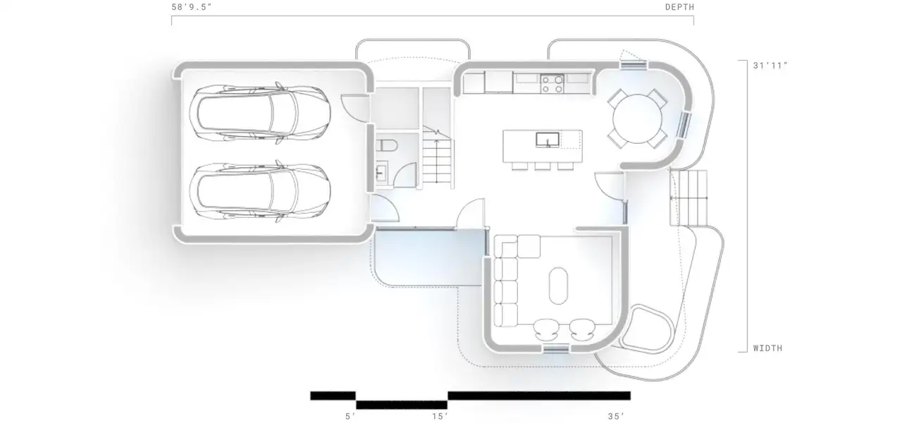
The first floor features an inviting open floor plan with a sleek and modern kitchen, sculptural dining alcove and light-filled living room overlooking a large private yard. Upstairs is the exceptional primary suite with massive windows, a beautiful en-suite bath and an additional bedroom and bathroom.
The home’s exquisite finishes blend natural materials and luxury living, including polished concrete floors, quartz countertops, wood flooring, Andersen windows, Bosch appliances and standing seam metal roof. ICON builds high-performance, durable homes using robotic technology and proprietary cementitious-based material. Designed and engineered for precision, speed and resiliency, the innovative technology delivers homes with higher levels of insulation that decreases the home’s temperature fluctuations in the summer and winter, and the wall systems are designed to resist water, mold, termites and fire. Conventional construction methods for second story, roofs, windows and doors with elevated finishes are then used to complete the homes.
Located in a coveted section of the Mueller community with expansive views of the Southeast Greenway, the innovative homes will be walking distance to restaurants, shopping, parks and more.
Compass RE Texas, LLC, MLS 2757818
May also be listed on the ICON Technology website
Information last verified by Jome: Today at 6:17 AM (April 18, 2026)
Home highlights
UT Austin pulses with music, research, and burnt orange spirit at the heart of the city.
Book your tour. Save an average of $18,473. We'll handle the rest.
We collect exclusive builder offers, book your tours, and support you from start to housewarming.
- Confirmed tours
- Get matched & compare top deals
- Expert help, no pressure
- No added fees
Estimated value based on Jome data, T&C apply
Home details
- Property status:
- Move-in ready
- Neighborhood:
- RMMA
- Lot size (acres):
- 0.17
- Size:
- 1,607 sqft
- Stories:
- 2
- Beds:
- 2
- Baths:
- 2
- Half baths:
- 1
- Garage spaces:
- 2
- Fence:
- Wood Fence
- Facing direction:
- Southeast
Construction details
- Builder Name:
- ICON Technology
- Year Built:
- 2026
- Roof:
- Metal Roofing, Membrane Roofing
Home features & finishes
- Appliances:
- Exhaust Fan Vented
- Construction Materials:
- Concrete
- Cooling:
- Central Air
- Flooring:
- Wood FlooringConcrete FlooringTile Flooring
- Foundation Details:
- Slab
- Garage/Parking:
- GarageOff-Street Garage/ParkingSingle-Door GarageRear Entry Garage/ParkingAttached Garage
- Home amenities:
- Green Construction
- Interior Features:
- Ceiling-HighWalk-In ClosetDouble Vanity
- Kitchen:
- Range-Free StandingDishwasherMicrowave OvenDisposalStainless Steel AppliancesGas CooktopQuartz countertopKitchen IslandGas OvenKitchen Range
- Laundry facilities:
- DryerWasher
- Property amenities:
- BackyardCourtyardYardPorch
- Rooms:
- KitchenOpen Concept Floorplan

Get a consultation with our New Homes Expert
- See how your home builds wealth
- Plan your home-buying roadmap
- Discover hidden gems
Utility information
- Heating:
- Water Heater, Central Heating, Tankless water heater
- Sewer:
- Public Sewer
- Utilities:
- Electricity Available, Natural Gas Available, Underground Utilities, Internet Cable, Internet-Fiber, Phone Available, Cable Available, Sewer Available, Water Available
- Water source:
- Public
Community amenities
- Golf Course View
- Common Grounds
- Dog Park
- Playground
- Community Pool
- Park Nearby
- Fishing Pond
- Picnic Area
- Pet Amenities
- Cluster Mailbox
- Sidewalks Available
- Greenbelt View
- Waterfront View
- Google Fiber
- High Speed Internet Access
About the builder - ICON Technology
Neighborhood
Home address
Schools in Austin Independent School District
- Grades M-MPublicsims elementary0.9 mi1203 springdale rdna
GreatSchools’ Summary Rating calculation is based on 4 of the school’s themed ratings, including test scores, student/academic progress, college readiness, and equity. This information should only be used as a reference. Jome is not affiliated with GreatSchools and does not endorse or guarantee this information. Please reach out to schools directly to verify all information and enrollment eligibility. Data provided by GreatSchools.org © 2025
Places of interest
Getting around
8 nearby routes: 8 bus, 0 rail, 0 otherAir quality
Noise level
A Soundscore™ rating is a number between 50 (very loud) and 100 (very quiet) that tells you how loud a location is due to environmental noise.
Natural hazards risk
Provided by FEMA

Considering this home?
Our expert will guide your tour, in-person or virtual
Need more information?
Text or call (888) 545-5198
Financials
Estimated monthly payment
Let us help you find your dream home
How many bedrooms are you looking for?
Similar homes nearby
Recently added communities in this area
Nearby communities in Austin
New homes in nearby cities
More New Homes in Austin, TX
Compass RE Texas, LLC, MLS 2757818
Based on information from the Austin Board of REALTORS® (alternatively, from ACTRIS) for the period through 08/13/2024. Neither the Board nor ACTRIS guarantees or is in any way responsible for its accuracy. All data is provided “AS IS” and with all faults. Data maintained by the Board or ACTRIS may not reflect all real estate activity in the market. Information being provided is for consumers’ personal, non-commercial use and may not be used for any purpose other than to identify prospective properties consumers may be interested in purchasing. The Digital Millennium Copyright Act of 1998, 17 U.S.C. § 512 (the “DMCA”) provides recourse for copyright owners who believe that material appearing on the Internet infringes their rights under U.S. copyright law. If you believe in good faith that any content or material made available in connection with our website or services infringes your copyright, you (or your agent) may send us a notice requesting that the content or material be removed, or access to it blocked. Notices must be sent in writing by email to DMCAnotice@MLSGrid.com. The DMCA requires that your notice of alleged copyright infringement include the following information: (1) description of the copyrighted work that is the subject of claimed infringement; (2) description of the alleged infringing content and information sufficient to permit us to locate the content; (3) contact information for you, including your address, telephone number and email address; (4) a statement by you that you have a good faith belief that the content in the manner complained of is not authorized by the copyright owner, or its agent, or by the operation of any law; (5) a statement by you, signed under penalty of perjury, that the information in the notification is accurate and that you have the authority to enforce the copyrights that are claimed to be infringed; and (6) a physical or electronic signature of the copyright owner or a person authorized to act on the copyright owner’s behalf. Failure to include all of the above information may result in the delay of the processing of your complaint.
Read moreLast checked Apr 18, 6:40 am
- Jome
- New homes search
- Texas
- Greater Austin Area
- Travis County
- Austin
- 3600 Tom Miller St, Unit 2, Austin, TX 78723


























