









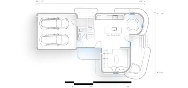
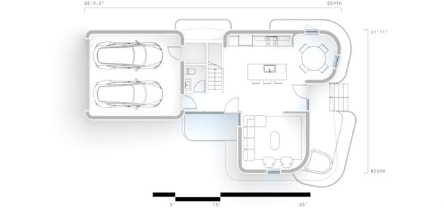
Guided by the mission to address the global housing crisis, ICON is a construction technology company revolutionizing home building. The company utilizes proprietary 3D-printing robotics, advanced software, and innovative materials to construct resilient and e...nergy-efficient homes. This technological approach allows for the rapid delivery of high-quality homes with unique design possibilities, including sinuous walls and diverse layouts. ICON's proprietary cementitious material and robotic systems create a durable wall system designed to resist water, mold, and fire, ensuring a lasting structure. By pioneering this advanced construction method, ICON delivers sustainable and beautifully designed new construction homes and is changing the way entire communities are built for the better.

Need guidance?
Get expert help finding your perfect home
Select a location to see homes & communities by ICON Technology
Communities
Homes
Plans
*Pricing and availability are subject to change.


































































