














Book your tour. Save an average of $18,473. We'll handle the rest.
- Confirmed tours
- Get matched & compare top deals
- Expert help, no pressure
- No added fees
Estimated value based on Jome data, T&C apply
- 3 bd
- 2 ba
- 1,571 sqft
7513 Fenton Pkwy, Pilot Point, TX 76258
Why tour with Jome?
- No pressure toursTour at your own pace with no sales pressure
- Expert guidanceGet insights from our home buying experts
- Exclusive accessSee homes and deals not available elsewhere
Jome is featured in
- Single-Family
- Quick move-in
- $184.59/sqft
- $800/annual HOA
Home description
Discover this stunning new construction home at 7513 Fenton Parkway in Pilot Point. This thoughtfully designed single-story home offers a comfortable living space with an open-concept layout ideal for daily living and entertaining.
Key Features:
• 3 spacious bedrooms with owner's suite in its own private corner on the main floor
• 2 full bathrooms with quality fixtures and finishes
• Open-concept living space seamlessly connecting kitchen, dining, and family areas
• Single-story design for easy accessibility and flow
• New construction with contemporary finishes and thoughtful design
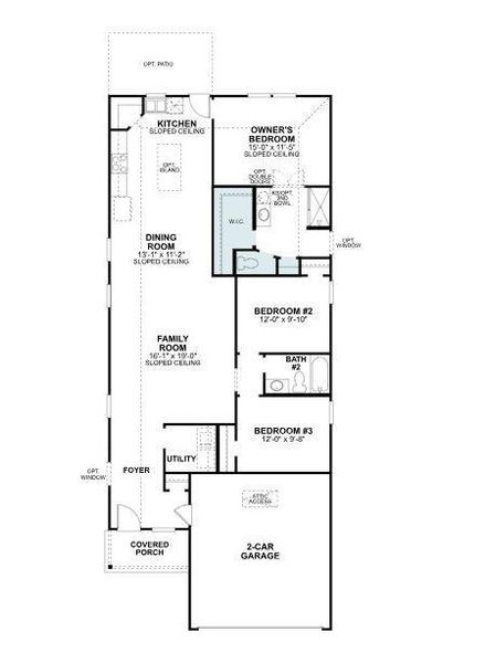
The floorplan maximizes both functionality and comfort, creating an inviting atmosphere for family life and entertaining. The owner's bedroom on the main level provides convenience and privacy, while the additional bedrooms offer flexibility for family, guests, or a home office. The open-concept design enhances natural flow and light throughout the home.
Schedule a visit today!
Escape Realty, MLS 21084657
May also be listed on the M/I Homes website
Information last verified by Jome: Today at 1:52 AM (January 16, 2026)
Home highlights
Book your tour. Save an average of $18,473. We'll handle the rest.
We collect exclusive builder offers, book your tours, and support you from start to housewarming.
- Confirmed tours
- Get matched & compare top deals
- Expert help, no pressure
- No added fees
Estimated value based on Jome data, T&C apply
Home details
- Property status:
- Move-in ready
- Lot size (acres):
- 0.12
- Size:
- 1,571 sqft
- Stories:
- 1
- Beds:
- 3
- Baths:
- 2
- Garage spaces:
- 2
- Fence:
- Wood Fence

Floor plan details
Magnolia - 30' Smart Series
- 3 bd
- 2 ba
- 1,571 sqft
View Magnolia - 30' Smart Series details
Construction details
- Builder Name:
- M/I Homes
- Completion Date:
- December, 2025
- Year Built:
- 2025
- Roof:
- Composition Roofing
Home features & finishes
- Appliances:
- Exhaust Fan VentedSprinkler System
- Construction Materials:
- Brick
- Cooling:
- Ceiling Fan(s)Central Air
- Foundation Details:
- Slab
- Garage/Parking:
- Door OpenerGarageFront Entry Garage/ParkingAttached Garage
- Home amenities:
- Green Construction
- Interior Features:
- Walk-In ClosetFoyerWindow Coverings
- Kitchen:
- DishwasherMicrowave OvenDisposalGas CooktopKitchen Island
- Laundry facilities:
- DryerStackable Washer/DryerUtility/Laundry Room
- Lighting:
- Decorative/Designer Lighting
- Property amenities:
- BasementTrees on propertyLandscapingYardPorch
- Rooms:
- Primary Bedroom On MainKitchenDining RoomFamily RoomOpen Concept FloorplanPrimary Bedroom Downstairs
- Security system:
- Smoke DetectorCarbon Monoxide Detector

Get a consultation with our New Homes Expert
- See how your home builds wealth
- Plan your home-buying roadmap
- Discover hidden gems
Utility information
- Heating:
- Water Heater, Central Heating, Gas Heating, Tankless water heater
- Utilities:
- Underground Utilities, HVAC, City Water System, Individual Water Meter, Individual Gas Meter, Cable TV

Community details
Mobberly Farms at Mobberly Farms
by M/I Homes, Pilot Point, TX
- 14 homes
- 21 plans
- 1,349 - 2,869 sqft
View Mobberly Farms details
Community amenities
- Playground
- Fitness Center/Exercise Area
- Club House
- Community Pool
More homes in Mobberly Farms
- Home at address 14120 Zealand Dr, Pilot Point, TX 76258

Primrose - 30' Smart Series
$279,990
- 3 bd
- 2 ba
- 1,349 sqft
14120 Zealand Dr, Pilot Point, TX 76258
- Home at address 7522 Bent Gale Rd, Pilot Point, TX 76258

Magnolia - 30' Smart Series
$279,990
- 3 bd
- 2 ba
- 1,571 sqft
7522 Bent Gale Rd, Pilot Point, TX 76258
- Home at address 14116 Zealand Dr, Pilot Point, TX 76258

Magnolia - 30' Smart Series
$289,990
- 3 bd
- 2 ba
- 1,571 sqft
14116 Zealand Dr, Pilot Point, TX 76258
- Home at address 14112 Zealand Dr, Pilot Point, TX 76258

Periwinkle - 30' Smart Series
$294,990
- 4 bd
- 2 ba
- 1,756 sqft
14112 Zealand Dr, Pilot Point, TX 76258
- Home at address 7514 Bent Gale Rd, Pilot Point, TX 76258

Periwinkle - 30' Smart Series
$309,990
- 4 bd
- 2 ba
- 1,756 sqft
7514 Bent Gale Rd, Pilot Point, TX 76258
- Home at address 7518 Bent Gale Rd, Pilot Point, TX 76258

Sanpiper - 30' Smart Series
$309,990
- 4 bd
- 2.5 ba
- 2,151 sqft
7518 Bent Gale Rd, Pilot Point, TX 76258
Floor plans in Mobberly Farms

Periwinkle - 30' Smart Series
- 4 bd
- 2 ba
- 1,756 sqft

Larkspur - 30' Smart Series
- 4 bd
- 2.5 ba
- 2,130 sqft
About the builder - M/I Homes

- 128communities on Jome
- 1,815homes on Jome
Neighborhood
Home address
- City:
- Pilot Point
- County:
- Denton
- Zip Code:
- 76258
Schools in Pilot Point Independent School District
- Grades PK-01Privateprosper montessori academy6.9 mi100 gorgeous rdna
GreatSchools’ Summary Rating calculation is based on 4 of the school’s themed ratings, including test scores, student/academic progress, college readiness, and equity. This information should only be used as a reference. Jome is not affiliated with GreatSchools and does not endorse or guarantee this information. Please reach out to schools directly to verify all information and enrollment eligibility. Data provided by GreatSchools.org © 2025
Places of interest
Getting around
Air quality

Considering this home?
Our expert will guide your tour, in-person or virtual
Need more information?
Text or call (888) 486-2818
Financials
Estimated monthly payment
Let us help you find your dream home
How many bedrooms are you looking for?
Similar homes nearby
Recently added communities in this area
Nearby communities in Pilot Point
New homes in nearby cities
More New Homes in Pilot Point, TX
Escape Realty, MLS 21084657
IDX information is provided exclusively for personal, non-commercial use, and may not be used for any purpose other than to identify prospective properties consumers may be interested in purchasing. You may not reproduce or redistribute this data, it is for viewing purposes only. This data is deemed reliable, but is not guaranteed accurate by the MLS or NTREIS.
Read moreLast checked Jan 16, 10:00 am
- Jome
- New homes search
- Texas
- Dallas-Fort Worth Area
- Denton County
- Pilot Point
- Mobberly Farms
- 7513 Fenton Pkwy, Pilot Point, TX 76258



























