




Book your tour. Save an average of $18,473. We'll handle the rest.
- Confirmed tours
- Get matched & compare top deals
- Expert help, no pressure
- No added fees
Estimated value based on Jome data, T&C apply
- 4 bd
- 3.5 ba
- 2,904 sqft
15374 Gallina Mews, Frisco, TX 75033
Why tour with Jome?
- No pressure toursTour at your own pace with no sales pressure
- Expert guidanceGet insights from our home buying experts
- Exclusive accessSee homes and deals not available elsewhere
Jome is featured in
- Single-Family
- Quick move-in
- $292.21/sqft
- $636.75/quarterly HOA
Home description
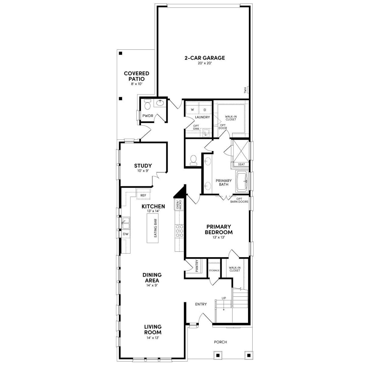
This lot is North facing. - With a first-floor Primary suite with two walk-in closets and the option for five additional bedrooms upstairs, the Barnard has room for everyone. Guests enter through the gracious two-story entryway before entering the open-concept living area. Homeowners will appreciate the optional door from the Primary closet into the utility room, keeping laundry out of sight. Behind the kitchen, the study has windows on two sides, creating a quiet, well-lit spot to working from home. Don't miss the covered patio in the back, the perfect spot to enjoy morning coffee or tea. The generous second story offers a huge game room, the perfect spot for noisy video game parties or for use as a children's playroom. The generous media room can also be configured as an optional fifth bedroom. The second bedroom overlooks the front yard and offers its own ensuite bath, making it the perfect guest retreat.
May also be listed on the Brookfield Residential website
Information last verified by Jome: Today at 7:00 AM (January 17, 2026)
Book your tour. Save an average of $18,473. We'll handle the rest.
We collect exclusive builder offers, book your tours, and support you from start to housewarming.
- Confirmed tours
- Get matched & compare top deals
- Expert help, no pressure
- No added fees
Estimated value based on Jome data, T&C apply
Home details
- Property status:
- Move-in ready
- Size:
- 2,904 sqft
- Stories:
- 2
- Beds:
- 4
- Baths:
- 3
- Half baths:
- 1
- Garage spaces:
- 2
Construction details
- Builder Name:
- Brookfield Residential
- Completion Date:
- November, 2025
Home features & finishes
- Garage/Parking:
- GarageAttached Garage
- Interior Features:
- Walk-In ClosetPantry
- Kitchen:
- Kitchen Island
- Laundry facilities:
- Utility/Laundry Room
- Property amenities:
- PatioPorch
- Rooms:
- Primary Bedroom On MainKitchenGame RoomMedia RoomOffice/StudyDining RoomLiving RoomOpen Concept FloorplanPrimary Bedroom Downstairs

Get a consultation with our New Homes Expert
- See how your home builds wealth
- Plan your home-buying roadmap
- Discover hidden gems

Community details
40' Traditional Homes at The Grove Frisco at The Grove
by Brookfield Residential, Frisco, TX
- 13 homes
- 5 plans
- 2,632 - 3,161 sqft
View 40' Traditional Homes at The Grove Frisco details
More homes in 40' Traditional Homes at The Grove Frisco
- Home at address 15558 Swallowtail St, Frisco, TX 75035

Middlebury
$790,561
- 5 bd
- 4 ba
- 2,647 sqft
15558 Swallowtail St, Frisco, TX 75035
- Home at address 15314 Gallina Mews, Frisco, TX 75035

Middlebury
$814,849
- 4 bd
- 3.5 ba
- 2,653 sqft
15314 Gallina Mews, Frisco, TX 75035
- Home at address 15647 Swallowtail St, Frisco, TX 75035

Aurora
$836,047
- 4 bd
- 3.5 ba
- 2,901 sqft
15647 Swallowtail St, Frisco, TX 75035
- Home at address 15540 Swallowtail St, Frisco, TX 75033

Fairfield
$842,380
- 4 bd
- 3.5 ba
- 2,905 sqft
15540 Swallowtail St, Frisco, TX 75033
- Home at address 15344 Gallina Mews, Frisco, TX 75033

Aurora
$846,933
- 4 bd
- 3.5 ba
- 2,894 sqft
15344 Gallina Mews, Frisco, TX 75033
- Home at address 15374 Gallina Mews, Frisco, TX 75035

Barnard
$848,587
- 4 bd
- 3.5 ba
- 2,901 sqft
15374 Gallina Mews, Frisco, TX 75035
Floor plans in 40' Traditional Homes at The Grove Frisco
About the builder - Brookfield Residential
Neighborhood
Home address
Schools in Frisco Independent School District
GreatSchools’ Summary Rating calculation is based on 4 of the school’s themed ratings, including test scores, student/academic progress, college readiness, and equity. This information should only be used as a reference. Jome is not affiliated with GreatSchools and does not endorse or guarantee this information. Please reach out to schools directly to verify all information and enrollment eligibility. Data provided by GreatSchools.org © 2025
Places of interest
Getting around
Air quality

Considering this home?
Our expert will guide your tour, in-person or virtual
Need more information?
Text or call (888) 486-2818
Financials
Estimated monthly payment
Let us help you find your dream home
How many bedrooms are you looking for?
Similar homes nearby
Recently added communities in this area
Nearby communities in Frisco
New homes in nearby cities
More New Homes in Frisco, TX
- Jome
- New homes search
- Texas
- Dallas-Fort Worth Area
- Collin County
- Frisco
- 40' Traditional Homes at The Grove Frisco
- 15374 Gallina Mews, Frisco, TX 75033




























