
























































- 4 bd
- 3 ba
- 2,473 sqft
215 Las Lomas Dr, San Marcos, TX 78666
- Single-Family
- $141.52/sqft
- $85/monthly HOA
- 204 days on Jome
New Homes for Sale Near 215 Las Lomas Dr, San Marcos, TX 78666
About this Home
About this home
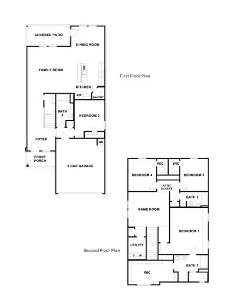
215 Las Lomas Dr is our largest floorplan available at our Trace community in San Marcos, Texas. This two-story home offers 4 bedrooms, 3 bathrooms, a gameroom, and 2 car garage all within 2,473 square feet of comfortable living space. Our homes in Trace feature farmhouse exteriors and the Nicole is available in 2 elevations.
Entering the home from the covered front porch, cross the foyer and find a short hallway to the downstairs secondary bedroom and a full bathroom. Passing the stairwell, continue through the foyer to the heart of the home, the living area. The family room, dining area, and kitchen are open, making entertaining and everyday living a shareable experience for family and friends. The kitchen features quartz countertops, a large island with undermount sink, a corner pantry closet, stainless-steel appliances and 36’’ upper cabinets.
Moving upstairs, you’ll enter the gameroom, the center of the upstairs space. The oversized primary bedroom is tucked away from the gameroom. Stretch out and relax at the end of your day in this spacious and private ensuite. The primary bathroom features a walk in shower, double vanity, separate toilet area with a door, and an enormous walk-in closet. This will be the closet of your dreams, spacious enough to add a dressing island or chaise lounge for a full luxurious experience.
The additional upstairs bedrooms and bathroom are located opposite the primary bedroom. The bedrooms feature walk in closets with shelving. Both secondary bathrooms include a shower/tub combination. The utility room rounds out the upstairs space, making laundry chores a breeze.
The Nicole includes vinyl flooring throughout the common areas of the home, and carpet in the bedrooms, gameroom and stairwell. All our new homes feature a covered back patio, full sod, an irrigation system in the front and back yard, and a 6’ privacy fence around the full yard. This home features our America’s Smart Home base package, which includes the Video Front Doorbell, Front Door Deadbolt Lock, Home Hub, Thermostat, and Deako® Smart Switches.
May also be listed on the D.R. Horton website
Information last verified by Jome: Wednesday at 4:25 AM (January 28, 2026)
Home details
- Property status:
- Sold
- Size:
- 2,473 sqft
- Stories:
- 2
- Beds:
- 4
- Baths:
- 3
- Garage spaces:
- 2
Construction details
- Builder Name:
- D.R. Horton
Home features & finishes
- Flooring:
- Vinyl FlooringCarpet Flooring
- Garage/Parking:
- GarageAttached Garage
- Interior Features:
- Walk-In ClosetFoyerPantry
- Kitchen:
- Gas CooktopKitchen Countertop
- Laundry facilities:
- Laundry Facilities On Upper LevelUtility/Laundry Room
- Property amenities:
- CabinetsPatioPorch
- Rooms:
- KitchenDining RoomFamily RoomOpen Concept FloorplanPrimary Bedroom Upstairs
Utility information
- Utilities:
- Natural Gas Available

Community details
Trace at Trace
by D.R. Horton, San Marcos, TX
- 15 homes
- 8 plans
- 1,253 - 2,473 sqft
View Trace details
More homes in Trace
- Home at address 116 Wagner Wy, San Marcos, TX 78666

$334,990
Move-in ready- 4 bd
- 2 ba
- 1,788 sqft
116 Wagner Wy, San Marcos, TX 78666
- Home at address 240 Flora Vis, San Marcos, TX 78666

$337,990
Move-in ready- 4 bd
- 2 ba
- 1,788 sqft
240 Flora Vis, San Marcos, TX 78666
- Home at address 240 Flora Vista St, San Marcos, TX 78666

$337,990
Move-in ready- 4 bd
- 2 ba
- 1,788 sqft
240 Flora Vista St, San Marcos, TX 78666
- Home at address 108 S Plains Rd, San Marcos, TX 78666

$347,990
Move-in ready- 4 bd
- 2 ba
- 1,788 sqft
108 S Plains Rd, San Marcos, TX 78666
- Home at address 105 S Plains Rd, San Marcos, TX 78666

$358,990
Move-in ready- 4 bd
- 3 ba
- 2,034 sqft
105 S Plains Rd, San Marcos, TX 78666
- Home at address 120 Wagner Wy, San Marcos, TX 78666

$364,990
Move-in ready- 4 bd
- 2 ba
- 2,031 sqft
120 Wagner Wy, San Marcos, TX 78666
Floor plans in Trace
About the builder - D.R. Horton

- 1,164communities on Jome
- 10,478homes on Jome
Neighborhood
Home address
- City:
- San Marcos
- County:
- Hays
- Zip Code:
- 78666
Schools in San Marcos Consolidated Independent School District
GreatSchools’ Summary Rating calculation is based on 4 of the school’s themed ratings, including test scores, student/academic progress, college readiness, and equity. This information should only be used as a reference. Jome is not affiliated with GreatSchools and does not endorse or guarantee this information. Please reach out to schools directly to verify all information and enrollment eligibility. Data provided by GreatSchools.org © 2025
Places of interest
Getting around
Air quality
Noise level
A Soundscore™ rating is a number between 50 (very loud) and 100 (very quiet) that tells you how loud a location is due to environmental noise.
Financials
Nearby communities in San Marcos
Homes in San Marcos Neighborhoods
Homes in San Marcos by D.R. Horton
Recently added communities in this area
Other Builders in San Marcos, TX
Nearby sold homes
New homes in nearby cities
More New Homes in San Marcos, TX
- Jome
- New homes search
- Texas
- Greater Austin Area
- Hays County
- San Marcos
- Trace
- 215 Las Lomas Dr, San Marcos, TX 78666







































































