














Book your tour. Save an average of $18,473. We'll handle the rest.
- Confirmed tours
- Get matched & compare top deals
- Expert help, no pressure
- No added fees
Estimated value based on Jome data, T&C apply



















- 4 bd
- 3.5 ba
- 2,331 sqft
11623 Redbird Ln, Montgomery, TX 77356
Why tour with Jome?
- No pressure toursTour at your own pace with no sales pressure
- Expert guidanceGet insights from our home buying experts
- Exclusive accessSee homes and deals not available elsewhere
Jome is featured in
- Single-Family
- Quick move-in
- $171.6/sqft
- $1,150/annual HOA
Home description
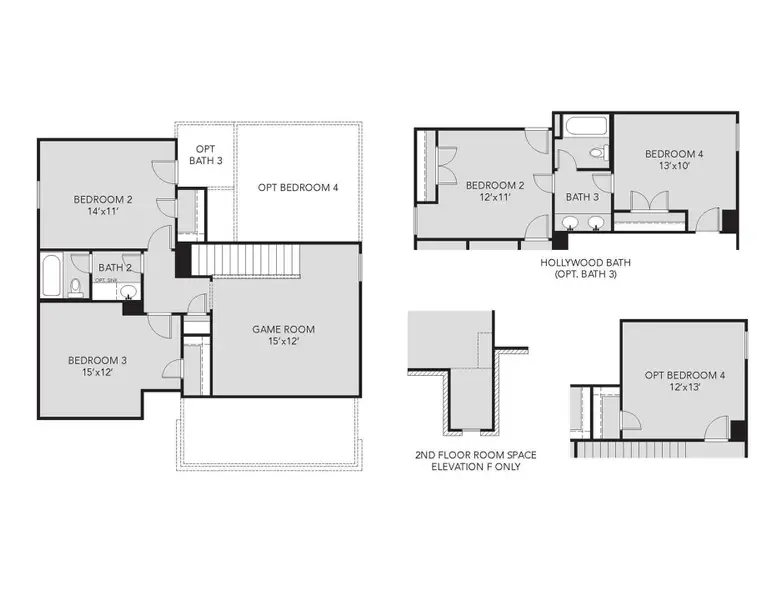
Walden on Lake Conroe pairs high-end amenities with lake-living homes that are priced with you in mind. Located in Montgomery, TX, this stunning master-planned community features new homes for sale less than a minute's drive from the 21,000-acre Lake Conroe. The Tivoli plan is a 2-story home featuring 4 bedrooms, 3.5 baths, and 2-car garage. It features a convenient kitchen island with space for high-top seating, spacious walk-in closet, dedicated upstairs game room, dedicated laundry room, and additional flex room that can be converted into an office, workout space, arts & crafts area, and more. Upgrades include - Additional 1/2 car garage, Bay window at primary suite, Iron stair spindles, LVP flooring in primary suite, Optional bedroom-Second floor, Optional full bath, Sod front and back, Stainless steel appliances, Tray ceiling in family room, Tray ceiling in primary suite, and Whole-house gutters.
Legend Home Corporation, MLS 46649717
May also be listed on the Legend Homes website
Information last verified by Jome: Today at 2:33 AM (December 5, 2025)
Home highlights
Book your tour. Save an average of $18,473. We'll handle the rest.
We collect exclusive builder offers, book your tours, and support you from start to housewarming.
- Confirmed tours
- Get matched & compare top deals
- Expert help, no pressure
- No added fees
Estimated value based on Jome data, T&C apply
Home details
- Property status:
- Move-in ready
- Lot size (acres):
- 0.22
- Size:
- 2,331 sqft
- Stories:
- 2
- Beds:
- 4
- Baths:
- 3
- Half baths:
- 1
- Garage spaces:
- 2
Construction details
- Builder Name:
- Legend Homes
- Year Built:
- 2025
- Roof:
- Composition Roofing
Home features & finishes
- Appliances:
- Sprinkler System
- Construction Materials:
- CementBrickStone
- Flooring:
- Vinyl FlooringCarpet Flooring
- Foundation Details:
- Slab
- Garage/Parking:
- Door OpenerGarageAttached Garage
- Home amenities:
- Green Construction
- Interior Features:
- Ceiling-HighWired For SecurityWalk-In ClosetPantry
- Kitchen:
- DishwasherMicrowave OvenDisposalKitchen IslandKitchen RangeElectric Oven
- Laundry facilities:
- DryerWasher
- Property amenities:
- Backyard
- Rooms:
- Kitchen
Utility information
- Heating:
- Electric Heating
- Utilities:
- HVAC

Community details
Lake Conroe Area Homes
by Legend Homes, Montgomery, TX
- 10 homes
- 12 plans
- 1,516 - 2,734 sqft
View Lake Conroe Area Homes details
More homes in Lake Conroe Area Homes
Floor plans in Lake Conroe Area Homes
About the builder - Legend Homes
Neighborhood
Home address
- City:
- Montgomery
- County:
- Montgomery
- Zip Code:
- 77356
Schools in Montgomery Independent School District
GreatSchools’ Summary Rating calculation is based on 4 of the school’s themed ratings, including test scores, student/academic progress, college readiness, and equity. This information should only be used as a reference. Jome is not affiliated with GreatSchools and does not endorse or guarantee this information. Please reach out to schools directly to verify all information and enrollment eligibility. Data provided by GreatSchools.org © 2025
Places of interest
Getting around
Air quality
Noise level
A Soundscore™ rating is a number between 50 (very loud) and 100 (very quiet) that tells you how loud a location is due to environmental noise.
Natural hazards risk
Climate hazards can impact homes and communities, with risks varying by location. These scores reflect the potential impact of natural disasters and climate-related risks on Montgomery County
Provided by FEMA

Considering this home?
Our expert will guide your tour, in-person or virtual
Need more information?
Text or call (888) 486-2818
Financials
Estimated monthly payment
Similar homes nearby
Recently added communities in this area
Nearby communities in Montgomery
New homes in nearby cities
More New Homes in Montgomery, TX
Legend Home Corporation, MLS 46649717
Copyright © 2025, Houston Realtors Information Service, Inc. The information provided is exclusively for consumers’ personal, non-commercial use, and may not be used for any purpose other than to identify prospective properties consumers may be interested in purchasing. Information is deemed reliable but not guaranteed. All information provided should be independently verified.
Read moreLast checked Dec 5, 8:50 am
- Home
- New homes
- Texas
- Greater Houston Area
- Montgomery County
- Montgomery
- Lake Conroe Area Homes
- 11623 Redbird Ln, Montgomery, TX 77356





































