














Book your tour. Save an average of $18,473. We'll handle the rest.
We collect exclusive builder offers, book your tours, and support you from start to housewarming.
- Confirmed tours
- Get matched & compare top deals
- Expert help, no pressure
- No added fees
Estimated value based on Jome data, T&C apply
























Why tour with Jome?
- No pressure toursTour at your own pace with no sales pressure
- Expert guidanceGet insights from our home buying experts
- Exclusive accessSee homes and deals not available elsewhere
Jome is featured in
- Single-Family
- Quick move-in
- $148.57/sqft
- $1,150/annual HOA
Home description
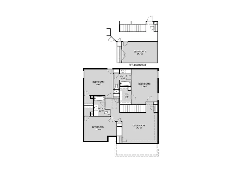
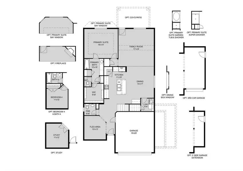
Love where you live in Walden on Lake Conroe! The Lazio floor plan is a spacious 2-story home with 5 bedrooms (2 down, 3 up), 4 bathrooms, dining area, game room, and a 3-car garage. This home has it all, including privacy blinds, wrought iron balusters at the staircase, a fireplace, garage door opener with keyless entry, and vinyl plank flooring throughout the common areas! The gourmet kitchen is sure to please with 42-inch white cabinetry, silestone countertops, stainless-steel appliances, and a box window at the dining area. Retreat to the first-floor Owner's Suite featuring a beautiful bay window, double sinks with silestone countertops, a separate tub and shower, walk-in closet, and a tray ceiling for some dramatic flair. Secondary bedrooms have walk-in closets and secondary baths have silestone countertops! Enjoy the great outdoors with a covered patio! Don’t miss your opportunity to call Walden on Lake Conroe home, schedule a visit today!
Legend Home Corporation, MLS 91476020
May also be listed on the Legend Homes website
Information last verified by Jome: Today at 2:33 AM (February 27, 2026)
Book your tour. Save an average of $18,473. We'll handle the rest.
We collect exclusive builder offers, book your tours, and support you from start to housewarming.
- Confirmed tours
- Get matched & compare top deals
- Expert help, no pressure
- No added fees
Estimated value based on Jome data, T&C apply
Home details
- Property status:
- Move-in ready
- Lot size (acres):
- 0.24
- Size:
- 2,726 sqft
- Stories:
- 2
- Beds:
- 5
- Baths:
- 4
- Half baths:
- 1
- Garage spaces:
- 3
- Facing direction:
- North
Construction details
- Builder Name:
- Legend Homes
- Year Built:
- 2026
- Roof:
- Composition Roofing
Home features & finishes
- Appliances:
- Sprinkler System
- Construction Materials:
- CementBrick
- Cooling:
- Ceiling Fan(s)
- Flooring:
- Vinyl Flooring
- Foundation Details:
- Slab
- Garage/Parking:
- Door OpenerGarageAttached Garage
- Home amenities:
- Green Construction
- Interior Features:
- Walk-In ClosetPantryBreakfast BarWalk-In Pantry
- Kitchen:
- DishwasherMicrowave OvenDisposalKitchen IslandKitchen RangeElectric Oven
- Laundry facilities:
- DryerWasher
- Property amenities:
- BarBackyard
- Rooms:
- Kitchen

Get a consultation with our New Homes Expert
- See how your home builds wealth
- Plan your home-buying roadmap
- Discover hidden gems
Utility information
- Heating:
- Electric Heating
- Utilities:
- HVAC

Community details
Lake Conroe Area Homes
by Legend Homes, Montgomery, TX
- 6 homes
- 13 plans
- 1,516 - 2,734 sqft
View Lake Conroe Area Homes details
More homes in Lake Conroe Area Homes
- Home at address 3030 Poe Dr, Montgomery, TX 77356

The Sienna - Walden on Lake Conroe
$334,990
- 4 bd
- 3 ba
- 2,185 sqft
3030 Poe Dr, Montgomery, TX 77356
- Home at address 3503 Woodland Ln, Montgomery, TX 77356

Home
$344,990
- 4 bd
- 3 ba
- 2,185 sqft
3503 Woodland Ln, Montgomery, TX 77356
- Home at address 12963 Shady Grove Ln, Montgomery, TX 77356

Home
$344,990
- 4 bd
- 3 ba
- 2,185 sqft
12963 Shady Grove Ln, Montgomery, TX 77356
- Home at address 13714 Vail Dr, Montgomery, TX 77356

Home
$359,990
- 4 bd
- 3 ba
- 2,185 sqft
13714 Vail Dr, Montgomery, TX 77356
- Home at address 11623 Redbird Ln, Montgomery, TX 77356

The Tivoli - Walden on Lake Conroe
$389,990
- 4 bd
- 3.5 ba
- 2,331 sqft
11623 Redbird Ln, Montgomery, TX 77356
Floor plans in Lake Conroe Area Homes
- View details for The Bronte - Walden on Lake Conroe

The Bronte - Walden on Lake Conroe
$304,990+- 3 bd
- 2.5 ba
- 1,820 sqft
- View details for The Avola - Walden on Lake Conroe

The Avola - Walden on Lake Conroe
$304,990+- 3 bd
- 2.5 ba
- 1,853 sqft
About the builder - Legend Homes
Neighborhood
Home address
- City:
- Montgomery
- County:
- Montgomery
- Zip Code:
- 77356
Schools in Montgomery Independent School District
- Grades M-MPubliccreekside elementary5.1 mi20774 eva stna
GreatSchools’ Summary Rating calculation is based on 4 of the school’s themed ratings, including test scores, student/academic progress, college readiness, and equity. This information should only be used as a reference. Jome is not affiliated with GreatSchools and does not endorse or guarantee this information. Please reach out to schools directly to verify all information and enrollment eligibility. Data provided by GreatSchools.org © 2025
Places of interest
Getting around
Air quality
Noise level
A Soundscore™ rating is a number between 50 (very loud) and 100 (very quiet) that tells you how loud a location is due to environmental noise.

Considering this home?
Our expert will guide your tour, in-person or virtual
Need more information?
Text or call (888) 488-9243
Financials
Estimated monthly payment
Let us help you find your dream home
How many bedrooms are you looking for?
Similar homes nearby
Recently added communities in this area
Nearby communities in Montgomery
New homes in nearby cities
More New Homes in Montgomery, TX
Legend Home Corporation, MLS 91476020
Copyright © 2025, Houston Realtors Information Service, Inc. The information provided is exclusively for consumers’ personal, non-commercial use, and may not be used for any purpose other than to identify prospective properties consumers may be interested in purchasing. Information is deemed reliable but not guaranteed. All information provided should be independently verified.
Read moreLast checked Feb 27, 2:50 pm
- Jome
- New homes search
- Texas
- Greater Houston Area
- Montgomery County
- Montgomery
- Lake Conroe Area Homes
- 12123 Walden Rd, Montgomery, TX 77356





























