








































- 4 bd
- 3.5 ba
- 3,221 sqft
3940 Fulton Dr, Leander, TX 78641
- Single-Family
- $211.11/sqft
- $70/monthly HOA
- Northwest facing
New Homes for Sale Near 3940 Fulton Dr, Leander, TX 78641
About this Home
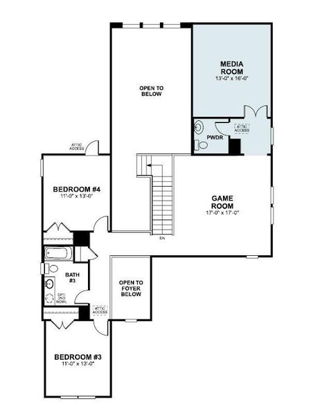
This wonderful Balcones-II plan, known for its open concept, features a private front bedroom and bathroom tucked just off the foyer, perfect for guests. There's a study just a bit farther down the entryway, convenient those who work from home. The kitchen opens to the grand family room with high ceilings. This north facing home has a lot natural light from its 2 stories of windows in the family room. The owners suite is right off the family room, and features a beautiful bay window, two closets in the bathroom, and a dual vanity sink. As you make your way up the beautiful open rail staircase to the 2nd floor, you enter a large game room, which leads you to your own private theater and it's own powder bath. There are also two spacious bedrooms, and a large bathroom upstairs. The backyard of this gorgeous home features an extended covered patio with a gas line, perfect for outdoor cooking and entertaining. Call to schedule a visit to view this home with all of its upgrades and design options. Estimated completion date is in November.
May also be listed on the M/I Homes website
Information last verified by Jome: Wednesday at 6:53 AM (January 7, 2026)
Home details
- Property status:
- Sold
- Lot size (acres):
- 0.14
- Size:
- 3,221 sqft
- Stories:
- 2
- Beds:
- 4
- Baths:
- 3.5
- Garage spaces:
- 2
- Fence:
- Wood Fence, Privacy Fence
- Facing direction:
- Northwest
Construction details
- Builder Name:
- M/I Homes
- Completion Date:
- November, 2025
- Year Built:
- 2025
- Roof:
- Composition Roofing
Home features & finishes
- Construction Materials:
- CementBrickStone
- Cooling:
- Ceiling Fan(s)Central Air
- Flooring:
- Vinyl FlooringCarpet FlooringTile Flooring
- Foundation Details:
- Slab
- Garage/Parking:
- Door OpenerGarageFront Entry Garage/ParkingAttached Garage
- Home amenities:
- Green Construction
- Interior Features:
- Ceiling-HighWalk-In ClosetFoyerPantryBlindsBreakfast BarSound System WiringFrench DoorsDouble Vanity
- Kitchen:
- DishwasherMicrowave OvenOvenDisposalStainless Steel AppliancesGas CooktopBuilt-In OvenSelf Cleaning OvenKitchen IslandCooktopElectric Oven
- Laundry facilities:
- DryerWasherLaundry Facilities On Main LevelUtility/Laundry Room
- Lighting:
- Exterior LightingLighting
- Property amenities:
- BackyardSoaking TubPatioFireplaceYardSmart Home SystemPorch
- Rooms:
- Flex RoomPrimary Bedroom On MainKitchenGame RoomMedia RoomOffice/StudyDining RoomFamily RoomBreakfast AreaOpen Concept FloorplanPrimary Bedroom Downstairs
- Security system:
- Fire Alarm SystemSmoke Detector
Utility information
- Heating:
- Zoned Heating, Water Heater, Central Heating, Gas Heating, Tankless water heater
- Utilities:
- Electricity Available, Natural Gas Available, Underground Utilities, Internet Cable, Internet-Fiber, Phone Available, Cable Available, Sewer Available, Water Available

Community details
Edgewood
by M/I Homes, Leander, TX
- 19 homes
- 14 plans
- 2,327 - 4,688 sqft
View Edgewood details
Community amenities
- Playground
- Community Pool
- Cluster Mailbox
- Sidewalks Available
More homes in Edgewood
- Home at address 3679 Prosper Rd, Leander, TX 78641

$519,990
Move-in ready- 4 bd
- 3 ba
- 2,327 sqft
3679 Prosper Rd, Leander, TX 78641
- Home at address 3713 Prosper Rd, Leander, TX 78641

$530,990
Move-in ready- 4 bd
- 3.5 ba
- 2,575 sqft
3713 Prosper Rd, Leander, TX 78641
- Home at address 3683 Prosper Rd, Leander, TX 78641

$599,990
Move-in ready- 4 bd
- 3.5 ba
- 3,221 sqft
3683 Prosper Rd, Leander, TX 78641
- Home at address 3675 Prosper Rd, Leander, TX 78641

$610,990
Move-in ready- 4 bd
- 3.5 ba
- 3,221 sqft
3675 Prosper Rd, Leander, TX 78641
- Home at address 3936 Fulton Dr, Leander, TX 78641

$629,990
Move-in ready- 5 bd
- 3.5 ba
- 3,365 sqft
3936 Fulton Dr, Leander, TX 78641
- Home at address 820 Purmela St, Leander, TX 78641

$638,990
Under construction- 4 bd
- 3 ba
- 2,821 sqft
820 Purmela St, Leander, TX 78641
Floor plans in Edgewood
About the builder - M/I Homes

- 137communities on Jome
- 1,755homes on Jome
Neighborhood
Home address
- City:
- Leander
- County:
- Williamson
- Zip Code:
- 78641
Schools in Leander Independent School District
GreatSchools’ Summary Rating calculation is based on 4 of the school’s themed ratings, including test scores, student/academic progress, college readiness, and equity. This information should only be used as a reference. Jome is not affiliated with GreatSchools and does not endorse or guarantee this information. Please reach out to schools directly to verify all information and enrollment eligibility. Data provided by GreatSchools.org © 2025
Places of interest
Getting around
Air quality
Financials
Nearby communities in Leander
Homes in Leander by M/I Homes
Recently added communities in this area
Other Builders in Leander, TX
Nearby sold homes
New homes in nearby cities
More New Homes in Leander, TX
- Jome
- New homes search
- Texas
- Greater Austin Area
- Williamson County
- Leander
- Edgewood
- 3940 Fulton Dr, Leander, TX 78641







































































