






























- 5 bd
- 5 ba
- 4,688 sqft
916 Frisco Ln, Leander, TX 78641
- Single-Family
- $164.25/sqft
- $70/monthly HOA
- West facing
New Homes for Sale Near 916 Frisco Ln, Leander, TX 78641
About this Home
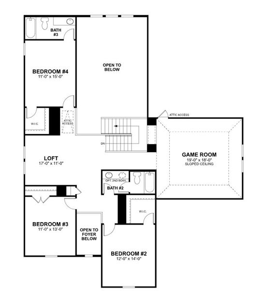
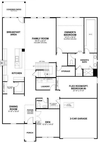
Welcome to the Rio Grande, our largest floorplan offered here in Edgewood. With 4,688 sq ft of space and a 2.5 car garage, 916 Frisco Lane is sure to check all of your boxes! Downstairs, you'll find a guest suite with attached bathroom, study with french doors, formal dining, and a beautiful primary bedroom with bay window. In the living, you have high volume ceilings with 2 rows of windows, letting in lots of natural light! The gourmet kitchen appliaces and quartz countertops make this kitchen perfect for a night of crafting recipes. Upstairs is where this home shines! Travel up the open railing stairs and enter into the loft, with 3 bedrooms surrounding it, 1 bedroom features an attached bathroom, giving you a 2nd guest suite upstairs. The other 2 bedrooms share the 2nd full bath. Down the hall from the loft is the grand Game Room, and tucked off the game room, is the large 21'x17' media room! Perfect for movie nights at home! As for the backyard, you have an 8'x30' covered patio with a gas line, perfect for outdoor cooking. This West facing home will be perfect for those who want to enjoy their backyard in the evenings! Schedule today to come view this popular floorplan and home that will be completed in October 2025!
Upgrades include:
LVP throughout common areas downstairs, quartz counters, media room, and upgraded cabinets throughout.
M/I Homes Realty, MLS 8531218
May also be listed on the M/I Homes website
Information last verified by Jome: Today at 6:53 AM (December 7, 2025)
Home details
- Property status:
- Sold
- Lot size (acres):
- 0.19
- Size:
- 4,688 sqft
- Stories:
- 2
- Beds:
- 5
- Baths:
- 5
- Half baths:
- 2
- Garage spaces:
- 2.5
- Fence:
- Wood Fence, Privacy Fence
- Facing direction:
- West

Floor plan details
Rio Grande - Classic Series
- 4 bd
- 3.5 ba
- 4,109 sqft
View Rio Grande - Classic Series details
Construction details
- Builder Name:
- M/I Homes
- Completion Date:
- October, 2025
- Year Built:
- 2025
- Roof:
- Composition Roofing
Home features & finishes
- Construction Materials:
- StuccoBrickStone
- Cooling:
- Ceiling Fan(s)Central Air
- Flooring:
- Vinyl FlooringCarpet FlooringTile Flooring
- Foundation Details:
- Slab
- Garage/Parking:
- Door OpenerGarageFront Entry Garage/ParkingAttached Garage
- Home amenities:
- Green Construction
- Interior Features:
- Ceiling-HighWalk-In ClosetFoyerPantryBlindsStorageSound System WiringLoftFrench DoorsDouble Vanity
- Kitchen:
- DishwasherMicrowave OvenOvenDisposalGas CooktopBuilt-In OvenSelf Cleaning OvenCook TopKitchen IslandElectric Oven
- Laundry facilities:
- DryerUtility/Laundry Room
- Lighting:
- Exterior LightingLighting
- Property amenities:
- BackyardPatioYardPorch
- Rooms:
- Flex RoomPrimary Bedroom On MainKitchenDen RoomPowder RoomGame RoomDining RoomFamily RoomBreakfast AreaOpen Concept FloorplanPrimary Bedroom Downstairs
- Security system:
- Smoke Detector
Utility information
- Heating:
- Electric Heating, Zoned Heating, Water Heater, Central Heating, Gas Heating, Tankless water heater
- Utilities:
- Electricity Available, Natural Gas Available, Underground Utilities, Internet Cable, Internet-Fiber, Phone Available, Cable Available, Sewer Available, Water Available

Community details
Edgewood
by M/I Homes, Leander, TX
- 25 homes
- 14 plans
- 2,327 - 4,688 sqft
View Edgewood details
Community amenities
- Playground
- Community Pool
- Cluster Mailbox
- Sidewalks Available
More homes in Edgewood
Floor plans in Edgewood
About the builder - M/I Homes
Neighborhood
Home address
- City:
- Leander
- County:
- Williamson
- Zip Code:
- 78641
Schools in Leander Independent School District
GreatSchools’ Summary Rating calculation is based on 4 of the school’s themed ratings, including test scores, student/academic progress, college readiness, and equity. This information should only be used as a reference. Jome is not affiliated with GreatSchools and does not endorse or guarantee this information. Please reach out to schools directly to verify all information and enrollment eligibility. Data provided by GreatSchools.org © 2025
Places of interest
Getting around
Air quality
Natural hazards risk
Climate hazards can impact homes and communities, with risks varying by location. These scores reflect the potential impact of natural disasters and climate-related risks on Williamson County
Provided by FEMA
Financials
Nearby communities in Leander
Homes in Leander by M/I Homes
Recently added communities in this area
Other Builders in Leander, TX
Nearby sold homes
New homes in nearby cities
More New Homes in Leander, TX
M/I Homes Realty, MLS 8531218
Based on information from the Austin Board of REALTORS® (alternatively, from ACTRIS) for the period through 08/13/2024. Neither the Board nor ACTRIS guarantees or is in any way responsible for its accuracy. All data is provided “AS IS” and with all faults. Data maintained by the Board or ACTRIS may not reflect all real estate activity in the market. Information being provided is for consumers’ personal, non-commercial use and may not be used for any purpose other than to identify prospective properties consumers may be interested in purchasing. The Digital Millennium Copyright Act of 1998, 17 U.S.C. § 512 (the “DMCA”) provides recourse for copyright owners who believe that material appearing on the Internet infringes their rights under U.S. copyright law. If you believe in good faith that any content or material made available in connection with our website or services infringes your copyright, you (or your agent) may send us a notice requesting that the content or material be removed, or access to it blocked. Notices must be sent in writing by email to DMCAnotice@MLSGrid.com. The DMCA requires that your notice of alleged copyright infringement include the following information: (1) description of the copyrighted work that is the subject of claimed infringement; (2) description of the alleged infringing content and information sufficient to permit us to locate the content; (3) contact information for you, including your address, telephone number and email address; (4) a statement by you that you have a good faith belief that the content in the manner complained of is not authorized by the copyright owner, or its agent, or by the operation of any law; (5) a statement by you, signed under penalty of perjury, that the information in the notification is accurate and that you have the authority to enforce the copyrights that are claimed to be infringed; and (6) a physical or electronic signature of the copyright owner or a person authorized to act on the copyright owner’s behalf. Failure to include all of the above information may result in the delay of the processing of your complaint.
Read moreLast checked Dec 7, 6:40 pm
- Home
- New homes
- Texas
- Greater Austin Area
- Williamson County
- Leander
- Edgewood
- 916 Frisco Ln, Leander, TX 78641






































































