

























- 4 bd
- 3 ba
- 1,882 sqft
Undisclosed Address
- Single-Family
- $181.44/sqft
- $255/quarterly HOA
- Northeast facing
New Homes for Sale Nearby
About this Home
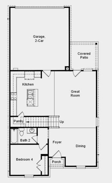
New Construction ~ Ready Now! Built by Taylor Morrison, America's Most Trusted Homebuilder. Welcome to the Bruckner at 516 Emory Crossing Boulevard in Emory Crossing. The Bruckner blends comfort and flexibility across two well-planned levels. The main floor welcomes you with an open dining area, great room, and kitchen—ideal for everything from quiet nights into festive weekends. You'll love the kitchen's stainless-steel appliances, oversized island, and walk-in pantry. A first-floor bedroom and full bath add extra flexibility for guests or work-from-home needs. Upstairs, the spacious primary suite features a walk-in closet, plenty of linen storage, and a bright, airy bathroom. Nestled in a master-planned community in the welcoming Hutto area of Austin, you'll enjoy beautifully landscaped surroundings and unique exterior styles. The amenity center is complete with a pool, splash pad, playground, scenic trails, and a soccer field! Additional Highlights Include: Whole house blinds and upgraded back door.
May also be listed on the Taylor Morrison website
Information last verified by Jome: Wednesday at 8:58 AM (February 4, 2026)
Home details
- Property status:
- Sold
- Collection:
- Emory Crossing 40s
- Lot size (acres):
- 0.10
- Size:
- 1,882 sqft
- Stories:
- 2
- Beds:
- 4
- Baths:
- 3
- Garage spaces:
- 2
- Fence:
- Wood Fence, Privacy Fence
- Facing direction:
- Northeast
Construction details
- Builder Name:
- Taylor Morrison
- Completion Date:
- September, 2025
- Year Built:
- 2025
- Roof:
- Shingle Roofing
Home features & finishes
- Appliances:
- Exhaust Fan Vented
- Construction Materials:
- BrickStone
- Cooling:
- Ceiling Fan(s)Central Air
- Flooring:
- Vinyl FlooringCarpet FlooringTile Flooring
- Foundation Details:
- Slab
- Garage/Parking:
- Door OpenerGarage
- Home amenities:
- Green Construction
- Interior Features:
- Walk-In ClosetBlinds
- Kitchen:
- RefrigeratorStainless Steel AppliancesGas CooktopKitchen IslandGas OvenKitchen RangeElectric Oven
- Laundry facilities:
- DryerWasher
- Lighting:
- Lighting
- Property amenities:
- Patio
- Rooms:
- KitchenOpen Concept Floorplan
- Security system:
- Smoke DetectorCarbon Monoxide Detector
Utility information
- Heating:
- Zoned Heating, Water Heater, Gas Heating
- Utilities:
- Electricity Available, Natural Gas Available, Underground Utilities, Internet Cable, Phone Available, Cable Available, Water Available

Community details
Emory Crossing at Emory Crossing
by Taylor Morrison, Hutto, TX
- 32 homes
- 16 plans
- 1,282 - 2,984 sqft
View Emory Crossing details
Community amenities
- Common Grounds
- Playground
- Club House
- Community Pool
- Conference Room
- Cluster Mailbox
- Sidewalks Available
More homes in Emory Crossing
- Home at address 117 Betsy Rd, Hutto, TX 78634

$330,990
Move-in ready- 4 bd
- 3 ba
- 1,882 sqft
117 Betsy Rd, Hutto, TX 78634
- Home at address 111 Betsy Rd, Hutto, TX 78634

$334,800
Under construction- 4 bd
- 3 ba
- 1,903 sqft
111 Betsy Rd, Hutto, TX 78634
- Home at address 109 Betsy Rd, Hutto, TX 78634

$335,515
Under construction- 4 bd
- 3 ba
- 1,877 sqft
109 Betsy Rd, Hutto, TX 78634
- Home at address 119 Betsy Rd, Hutto, TX 78634

$339,790
Move-in ready- 4 bd
- 3 ba
- 1,932 sqft
119 Betsy Rd, Hutto, TX 78634
- Home at address 203 Makinaw Rd, Hutto, TX 78634

$359,725
Under construction- 4 bd
- 2 ba
- 1,695 sqft
203 Makinaw Rd, Hutto, TX 78634
- Home at address 1011 Vanderscile Rd, Hutto, TX 78634

$365,710
Move-in ready- 4 bd
- 2 ba
- 2,020 sqft
1011 Vanderscile Rd, Hutto, TX 78634
Floor plans in Emory Crossing
About the builder - Taylor Morrison

- 320communities on Jome
- 1,463homes on Jome
Neighborhood
Home address
- City:
- Hutto
- County:
- Williamson
- Zip Code:
- 78634
Schools in Hutto Independent School District
- Grades 07-12Publichutto virtual academy2.0 mi309 e live oak stna
GreatSchools’ Summary Rating calculation is based on 4 of the school’s themed ratings, including test scores, student/academic progress, college readiness, and equity. This information should only be used as a reference. Jome is not affiliated with GreatSchools and does not endorse or guarantee this information. Please reach out to schools directly to verify all information and enrollment eligibility. Data provided by GreatSchools.org © 2025































































