








Book your tour. Save an average of $18,473. We'll handle the rest.
We collect exclusive builder offers, book your tours, and support you from start to housewarming.
- Confirmed tours
- Get matched & compare top deals
- Expert help, no pressure
- No added fees
Estimated value based on Jome data, T&C apply






Why tour with Jome?
- No pressure toursTour at your own pace with no sales pressure
- Expert guidanceGet insights from our home buying experts
- Exclusive accessSee homes and deals not available elsewhere
Jome is featured in
- Single-Family
- Ready by June 2026
- $194.83/sqft
- $270/quarterly HOA
Home description
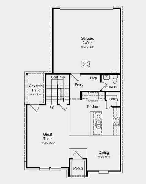
What's Special: Covered Patio | 2nd Floor Laundry Room | Large Kitchen Island | Understairs Storage | New Floor Plan. New Construction - May Completion! Built by Taylor Morrison, America's Most Trusted Home Builder. Welcome to the Grouse at 205 Betsy Road in Emory Crossing! This inviting two-story home offers 3 bedrooms, 2.5 bathrooms, and 1,572 square feet of thoughtfully designed space. Step inside from the charming front porch to an open-concept layout where the great room flows seamlessly into the dining area and modern kitchen. A cozy covered patio extends your living space outdoors, perfect for relaxing evenings. Near the garage, you’ll find a convenient powder room, a drop zone for everyday essentials, and extra storage. Upstairs, two bedrooms share a full bath, while the private primary suite provides a peaceful retreat with its own luxurious bathroom. A master-planned community in the welcoming Hutto area of Austin. Our flexible floor plans feature unique exteriors to create a warm welcome. Beautiful details and well-maintained landscaping are just the beginning. Our Amenity Center is officially complete, featuring a pool, splash pad, playground, nature trails and soccer field! Build a brand-new home in the desirable city of Hutto, with easy access to downtown Austin and nearby major employers. Spacious lots offer the ideal blend of yard space and low-maintenance living. Our new homes are zoned for the excellent Hutto Independent School District. Additional Highlights include: Covered patio.
Alexander Properties, MLS 9286485
May also be listed on the Taylor Morrison website
Information last verified by Jome: Today at 6:15 AM (April 15, 2026)
Home highlights
Mixed‑use retail and entertainment center north of Austin with shops, dining, live events and walkable energy.
Book your tour. Save an average of $18,473. We'll handle the rest.
We collect exclusive builder offers, book your tours, and support you from start to housewarming.
- Confirmed tours
- Get matched & compare top deals
- Expert help, no pressure
- No added fees
Estimated value based on Jome data, T&C apply
Home details
- Property status:
- Under construction
- Collection:
- Emory Crossing 40s
- Lot size (acres):
- 0.11
- Size:
- 1,572 sqft
- Stories:
- 2
- Beds:
- 3
- Baths:
- 2
- Half baths:
- 1
- Garage spaces:
- 2
- Fence:
- Wood Fence
- Facing direction:
- Southwest
Construction details
- Builder Name:
- Taylor Morrison
- Completion Date:
- June, 2026
- Year Built:
- 2026
- Roof:
- Roof Gutter, Shingle Roofing
Home features & finishes
- Cooling:
- Ceiling Fan(s)Central Air
- Flooring:
- Vinyl FlooringCarpet Flooring
- Foundation Details:
- Slab
- Garage/Parking:
- Door OpenerGarage
- Interior Features:
- Walk-In ClosetBlinds
- Kitchen:
- Stainless Steel AppliancesGas CooktopKitchen IslandGas OvenKitchen Range
- Laundry facilities:
- Dryer
- Lighting:
- Lighting
- Property amenities:
- Patio
- Rooms:
- Guest RoomDining RoomOpen Concept Floorplan

Get a consultation with our New Homes Expert
- See how your home builds wealth
- Plan your home-buying roadmap
- Discover hidden gems
Utility information
- Heating:
- Zoned Heating, Central Heating, Gas Heating
- Sewer:
- Public Sewer
- Utilities:
- Electricity Available, Natural Gas Available, Underground Utilities, Internet Cable, Phone Available, Cable Available, Water Available
- Water source:
- Public

Community details
Emory Crossing at Emory Crossing
by Taylor Morrison, Hutto, TX
- 23 homes
- 13 plans
- 1,282 - 2,980 sqft
View Emory Crossing details
Community amenities
- Common Grounds
- Playground
- Club House
- Sport Court
- Community Pool
- Park Nearby
- Picnic Area
- Sport Facility
- Cluster Mailbox
- Sidewalks Available
More homes in Emory Crossing
- Home at address 126 Christy St, Hutto, TX 78634

Capercaillie
SavingsEmory Crossing 40s
$297,975
- 3 bd
- 2 ba
- 1,282 sqft
126 Christy St, Hutto, TX 78634
- Home at address 113 Betsy Rd, Hutto, TX 78634

Capercaillie
SavingsEmory Crossing 40s
$299,430
- 3 bd
- 2 ba
- 1,282 sqft
113 Betsy Rd, Hutto, TX 78634
- Home at address 103 Betsy Rd, Hutto, TX 78634

Capercaillie
SavingsEmory Crossing 40s
$301,515
- 3 bd
- 3 ba
- 1,282 sqft
103 Betsy Rd, Hutto, TX 78634
- Home at address 136 Christy St, Hutto, TX 78634

Capercaillie
SavingsEmory Crossing 40s
$301,515
- 3 bd
- 2 ba
- 1,282 sqft
136 Christy St, Hutto, TX 78634
- Home at address 107 Betsy Rd, Hutto, TX 78634

Partridge
SavingsEmory Crossing 40s
$315,970
- 3 bd
- 2.5 ba
- 1,654 sqft
107 Betsy Rd, Hutto, TX 78634
- Home at address 203 Betsy Rd, Hutto, TX 78634

Partridge
SavingsEmory Crossing 40s
$317,425
- 3 bd
- 2.5 ba
- 1,654 sqft
203 Betsy Rd, Hutto, TX 78634
Floor plans in Emory Crossing
About the builder - Taylor Morrison

- 314communities on Jome
- 1,321homes on Jome
Neighborhood
Home address
- City:
- Hutto
- County:
- Williamson
- Zip Code:
- 78634
Schools in Hutto Independent School District
- Grades 07-12Publichutto virtual academy1.9 mi309 e live oak stna
GreatSchools’ Summary Rating calculation is based on 4 of the school’s themed ratings, including test scores, student/academic progress, college readiness, and equity. This information should only be used as a reference. Jome is not affiliated with GreatSchools and does not endorse or guarantee this information. Please reach out to schools directly to verify all information and enrollment eligibility. Data provided by GreatSchools.org © 2025
Places of interest
Getting around
Air quality

Considering this home?
Our expert will guide your tour, in-person or virtual
Need more information?
Text or call (888) 545-5198
Financials
Estimated monthly payment
Let us help you find your dream home
How many bedrooms are you looking for?
Similar homes nearby
Recently added communities in this area
Nearby communities in Hutto
New homes in nearby cities
More New Homes in Hutto, TX
Alexander Properties, MLS 9286485
Based on information from the Austin Board of REALTORS® (alternatively, from ACTRIS) for the period through 08/13/2024. Neither the Board nor ACTRIS guarantees or is in any way responsible for its accuracy. All data is provided “AS IS” and with all faults. Data maintained by the Board or ACTRIS may not reflect all real estate activity in the market. Information being provided is for consumers’ personal, non-commercial use and may not be used for any purpose other than to identify prospective properties consumers may be interested in purchasing. The Digital Millennium Copyright Act of 1998, 17 U.S.C. § 512 (the “DMCA”) provides recourse for copyright owners who believe that material appearing on the Internet infringes their rights under U.S. copyright law. If you believe in good faith that any content or material made available in connection with our website or services infringes your copyright, you (or your agent) may send us a notice requesting that the content or material be removed, or access to it blocked. Notices must be sent in writing by email to DMCAnotice@MLSGrid.com. The DMCA requires that your notice of alleged copyright infringement include the following information: (1) description of the copyrighted work that is the subject of claimed infringement; (2) description of the alleged infringing content and information sufficient to permit us to locate the content; (3) contact information for you, including your address, telephone number and email address; (4) a statement by you that you have a good faith belief that the content in the manner complained of is not authorized by the copyright owner, or its agent, or by the operation of any law; (5) a statement by you, signed under penalty of perjury, that the information in the notification is accurate and that you have the authority to enforce the copyrights that are claimed to be infringed; and (6) a physical or electronic signature of the copyright owner or a person authorized to act on the copyright owner’s behalf. Failure to include all of the above information may result in the delay of the processing of your complaint.
Read moreLast checked Apr 15, 12:40 pm
- Jome
- New homes search
- Texas
- Greater Austin Area
- Williamson County
- Hutto
- Emory Crossing
- Emory Crossing 40s
- 205 Betsy Rd, Hutto, TX 78634
































